Verkocht onder voorbehoud

Biesen 2 5986 PC Beringe

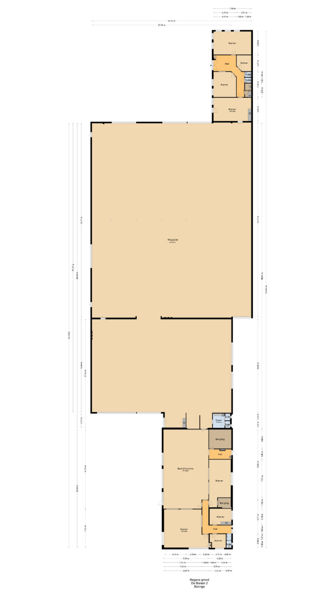
283 m²kantoor 1946 m² bedrijfshal 1.000 m² Bouwjaar 1999

Omschrijving

FUNCTIONEEL BEDRIJFSOBJECT BESTAANDE UIT VIER GESCHAKELDE BEDRIJFSRUIMTEN MET KANTOORRUIMTEN EN EEN RUIM BUITENTERREIN EN UITBREIDINGSMOGELIJKHEID TOT 80% VAN HET BOUWBLOK) EN RUIM ELEKTRISCH CONTRACTVERMOGEN VAN 221KW.

LET OP, OVERDRAAGBARE SDE SUBSIDIE TOT 31 OKTOBER 2033 MET EEN MINIMALE OPBRENGST VAN € 0,147 PER KW (VERSPREIDE CASHFLOW OVER 8 JAAR VAN CA € 200.000,=)

Onderscheidende elementen:
Contractvermogen elektra 221kW.
Gunstig gelegen tussen rijkswegen A2 en A67.
Toegestane milieucategorie 1 t.e.m. 5:
Mogelijkheden voor splitsing.
842 zonnepanelen x 280 WP met SDE-subsidie (jaarlijkse opbrengst ca. 200.000KW)
2x Demag bovenloopkraanbaan 3,2 ton.

Oppervlakte:
Kantoorruimten: circa 283m²
Bedrijfsruimte 1: circa 160m²
Bedrijfsruimte 2: circa 560m²
Bedrijfsruimte 3: circa 613m²
Bedrijfsruimte 4: circa 613m²
Totaal: circa 2.229m²

Er is een NEN2580 meetrapport op aanvraag beschikbaar.

Kadastrale gegevens:
Gemeente: Helden
Sectie: A
Nummers: 8186, 8275 en 8342
Oppervlakte: 4.205m²

Energielabel:
A+++++.

Ligging en bereikbaarheid:
Het bedrijfsobject is gelegen op Bedrijventerrein Beringe. Dit bedrijventerrein is gelegen aan de rand van Beringe en goed bereikbaar vanuit diverse uitvalswegen. Het bedrijventerrein kenmerkt zich door een bovenregionale functie en is bestemd voor middelzware tot zware bedrijven.

Op dit bedrijventerrein zijn o.a. gevestigd DB Schenker, Wildkamp Beringe en Leeijen Trading BV,

Het object is goed bereikbaar vanuit diverse uitvalswegen.
Het bedrijventerrein is direct gelegen aan de provinciale wegen N275 (Nederweert – Beringe).
Provinciale weg N279 (Asten – Meijel) is op korte afstand gelegen.
Van hieruit zijn de rijkswegen A2 (Eindhoven – Maastricht) en A67 (Eindhoven – Venlo / Duitsland) binnen resp. circa 15 en 5 autominuten bereikbaar.

Bestemming:
Ter plaatse geldt het bestemmingsplan “Bedrijventerreinen”.
Het object heeft de bestemming “Bedrijventerreinen -2” met de functieaanduiding “bedrijf tot en met categorie 5”.
Binnen deze bestemming is toegestaan:
Bedrijfsactiviteiten in de milieucategorie 1 t.e.m. 5.
Bron: www.omgevingsloket.nl.

Parkeren:
Er is voldoende parkeergelegenheid op eigen terrein beschikbaar.

Voorzieningen:
Kantoorruimten:
Airconditioning.
Verwarming via radiatoren.
Schoon metselwerkwanden en deels stucwerk.
Systeemplafonds, stucwerk en schroten.
Vloerafwerking tegelvloeren, laminaat en linoleum.
Kantine.

Bedrijfsruimten:
Monolithisch afgewerkte betonvloer.
Vrije hoogte circa 6,70m (twee grootte bedrijfsruimten).
2x Demag bovenloopkraanbaan 3,2 ton.
Persluchtringleiding.
Verwarming via donkerstralers (gasgestookt).
LED verlichting.
Vloerbelasting 2.500kg/m².
Elektrisch bedienbare overheaddeuren.
Geperforeerde stalen dakplaten.

Algemeen:
Alarminstallatie.

KOOPGEGEVENS:
Aanvaarding:
In overleg.

Vraagprijs:
€ 1.375.000,= kosten koper.

Overdrachtsbelasting:
Van toepassing, 10,4%.

SDE-subisidie en zonnepanelen:
Overdraagbaar.
Opbrengst panelen: ca. 200.000Kw per jaar tegen € 0,147 per Kw.

Omzetbelasting:
Niet van toepassing.

Opleveringsniveau:
In huidige staat, leeg en ontruimd.

Zekerheidsstelling:
Waarborgsom of bankgarantie ter grootte van 10% van de koopsom.

Voorbehoud:
Een en ander geschiedt onder aanvaarding en voorbehoud goedkeuring opdrachtgever.

Helaas, dit object is al verkocht

Bekijk hieronder ons actuele aanbod

Bekijk ons aanbod

Bekijk alle BOG objecten in Beringe

Bekijk aanbod

Op zoek naar het perfecte pand voor jouw onderneming of belegging?

Als ondernemer of belegger is het vinden van het juiste pand essentieel voor het succes van je bedrijf of investering. Of je nu een winkelruimte, kantoor, opslagruimte of een commercieel pand zoekt, wij helpen je graag bij elke stap.

Gratis zoekopdracht
Bedrijfspand-verhuren-wetten-en-regels