Willem-Alexanderstraat 39 5731 BD Mierlo
366 m² Bouwjaar 1993€ 3.350 per maand
Omschrijving
MIDDEN IN CENTRUM MIERLO WORDT DEZE RUIME, COMMERCIËLE RUIMTE AANGEBODEN VOOR VERHUUR.
Het object bevindt zich tegenover publiekstrekker Lidl en in de nabije omgeving zijn o.a. diverse winkels, de keurslager en een aantal lunchtenten aanwezig.
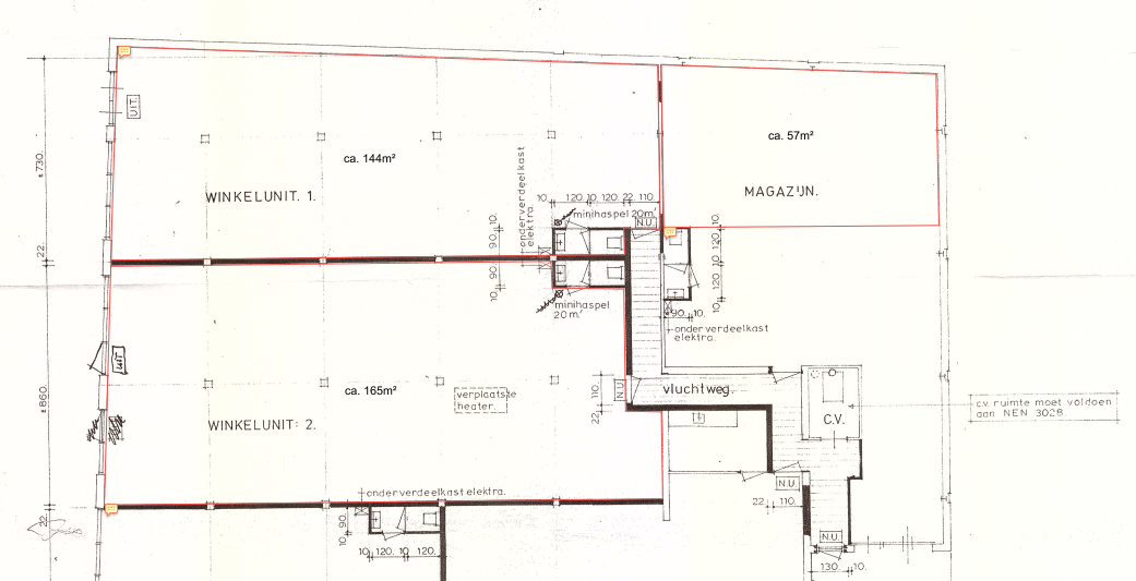
OPPERVLAKTEN
Commerciële ruimte: circa 309m²;
Magazijn: circa 57m²
Totaal: circa 366m²
PARKEREN:
Voor het object is voldoende gratis parkeergelegenheid.
MIERLO IN CIJFERS:
– ca. 5.000 woningen;
– ruim 11.000 inwoners;
VOORZIENINGEN:
Systeemplafond met LED en TL-verlichting
Tegelvloer
2x Toiletruimte
Keukenblok;
Meterkast voorbereid op splitsen in twee units;
Veiligheidsrolluik aanwezig
Elektrische schuifdeur entree.
FRONTBREEDTE:
Circa 16,50m.
BESTEMMING:
Ter plaatse geldt de beheersverordening ‘’Beheersverordening Centrum Mierlo’’
Het object heeft hierbij de bestemming: Detailhandel, Kantoor en Wonen’’
Binnen deze bestemming is toegestaan:
Kantoren,
Detailhandel,
Dienstverlening
Aan detailhandel ondergeschikte horeca.
ENERGIELABEL:
A, geldig tot april 2029
HUURGEGEVENS:
Aanvaarding:
Per direct mogelijk.
Huurprijs geheel:
€ 3.350,= per maand excl. BTW.
In units:
Op aanvraag.
Huurtermijn:
In overleg.
Bijkomende kosten:
Nader te bepalen.
Huurbetaling:
De huurbetaling per maand dient bij vooruitbetaling te worden voldaan.
Zekerheidsstelling:
Bankgarantie of waarborgsom ter grootte van drie maanden huur plus BTW.
Huurindexatie:
De huurprijs zal jaarlijks, voor het eerst één jaar na ingangsdatum van de overeenkomst, worden aangepast op basis van het consumentenindexcijfer (CPI) reeds CPI-Alle Huishoudens (basisjaar 2015=100) gepubliceerd door het Centraal Bureau voor de Statistiek.
Opleveringsniveau:
In de huidige staat. Aan de huurovereenkomst zal een opleveringsrapport gehecht worden welke de opleveringstoestand van het gehuurde weergeeft.
Voorbehoud:
Een en ander geschiedt onder aanvaarding en uitdrukkelijk voorbehoud goedkeuring opdrachtgever.
Omzetbelasting:
Van toepassing.
Interesse?
Voor meer informatie of het plannen van een bezichtiging helpt Richard je graag verder.
Heb je liever direct contact met Richard?
Delen
Kenmerken
Overdacht
| Huurprijs | € 3.350 |
| Verhuurconditie | Per maand |
| Status | Beschikbaar |
| Aanvaarding | Direct |
Bouw
| Type | Winkelruimte |
| Bouwtype | Bestaande bouw |
| Bouwjaar | 1993 |
Oppervlakten
| Oppervlakte | 366 m² |
| Breedte gevel | 1.650 meter |
| Verkoopvloeroppervlakte | 309 m² |
Indeling
| Aantal woonlagen | 1 |
Energie
| Energielabel | A |
Omgeving
| Omgeving | Winkelgebied stadscentrum, Wijkwinkelcentrum, In woonwijk |
Locatie
| Adres | Willem-Alexanderstraat 39 |
| Postcode | 5731 BD |
| Plaats | Mierlo |
| Provincie | Noord-Brabant |
| Land | Nederland |