Ardennen 45 5706 RD Helmond

141 m²wonen 233 m² perceel 5 slaapkamers Bouwjaar 1985

€ 400.000 k.k.

Omschrijving

Zoekt u een uitzonderlijk ruime uitgebouwde twee-onder-een-kapwoning welke op de hoek van een sfeervol en verkeersluw woonhofje gelegen is? Zoek dan niet verder en plan snel uw bezichtiging in bij dit unieke woonhuis op een van de meest gewilde woonlocaties van Mierlo-Hout te Helmond, wij heten u van harte welkom tijdens een exclusieve bezichtiging!

BIJZONDERHEDEN:
– Uitgebouwde twee-onder-een-kapwoning met een uitzonderlijke mate van natuurlijk daglichtinval;
– Brede en diepe achtertuin op het zonnige zuiden met eigen achterom en bergingsruimte;
– Overdekt terras aan de achterzijde van de woning;
– Een groot dakkapel aan de achterzijde verzorgt een totaal getal van maar liefst vijf ruime slaapkamers, tevens te gebruiken als thuiswerkplek of hobbyruimte;
– Gelegen op korte loopafstand van alle gewenste voorzieningen zoals supermarkten, speciaalzaken en horecagelegenheden;
– Het N.S.-station Helmond ’t Hout bevindt zich op korte loopafstand en rijdt direct richting Eindhoven!;

ALGEMEEN:
Deze ruime twee-onder-een-kapwoning is aan de achterzijde over de volledige breedte uitgebouwd en voorzien van een hoge mate van natuurlijk daglichtinval! Een prachtig zonnig beeld zowel intern als extern, mede vanwege de ligging van de grote achtertuin op het zuiden. Daarbij bevindt deze woning zich op de hoek van een gezellig en kleinschalig woonhofje met een eigen parkeerplaats direct tegenover de entree. De woning beschikt over maar liefst vijf grote slaapkamers, een dakterras en een ruim dakkapel.

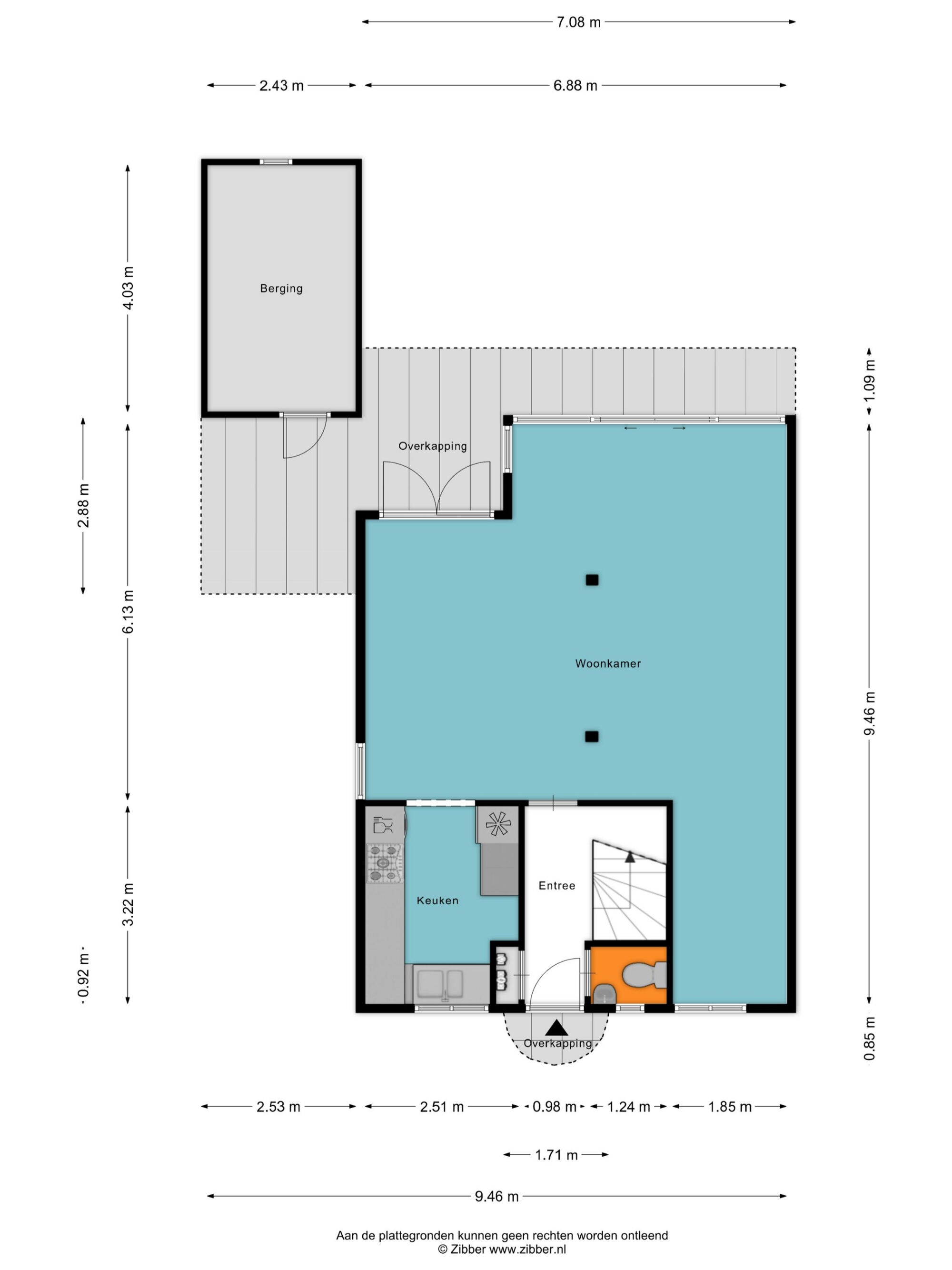
BEGANE GROND
AANKOMST & ENTREE
Bij aankomst aan dit sfeervolle woonhofje parkeert u uw auto op uw eigen parkeerplaats voor de woning. Verder bevinden zich diverse openbare parkeermogelijkheden in de rustige en kindvriendelijke straat. Via de verzorgde voortuin bereikt u de entree van deze woning waaraan gelegen de trapopgang richting de eerste verdieping, toiletruimte, de meterkast en toegang tot de grote woonkamer.

WOONKAMER:
De woonkamer is bijzonder ruim van opzet en voorzien van een hoge mate van natuurlijk daglichtinval! Zowel aan de achterzijde met schuifpui en aan de linkerzijde van deze woning zijn grote raamkozijnen gelegen welke een fijn en licht gevoel creëren.

De woonkamer is uitzonderlijk ruim dankzij de grote uitbouw, deze uitbouw beschikt tevens over een sfeervolle lichtstraat. Aan de voorzijde van de woonkamer heeft u de perfecte gelegenheid een thuiswerkplek, hobbyruimte of een speelruimte te realiseren. Aan de achterzijde heeft u talloze indelingsmogelijkheden voor wat betreft een gezellige diner- en zitruimte. De dubbel openslaande tuindeuren en schuifpui bieden toegang tot het overdekte terras welke tevens overdekte toegang tot de bergingsruimte biedt.

KEUKEN:
Aan de voorzijde van de woning bevindt zich de keuken. De keuken is in verbinding met de woonkamer open gesitueerd en beschikt over veel bergruimte dankzij de aanwezige kasten.

Aan inbouwapparatuur beschikt deze keuken over een groot kookfornuis met geïntegreerde hete lucht oven. De koel-vriescombinatie is losstaand uitgevoerd.

EERSTE VERDIEPING:
Via de vaste trap in de entree van deze leuke woning bereiken we de overloop. Aan deze overloop zijn gelegen de eerste, tweede en derde slaapkamer, de badkamer en de trapopgang richting de overloop van de tweede verdieping.
De voorzijde van de woning beschikt over een sfeervol balkon welke vanuit de overloop toegankelijk is.

SLAAPKAMER I:
Aan de achterzijde van deze eerste verdieping bevindt zich de master-bedroom. Een slaapkamer voorzien van een fijne oppervlakte van maar liefst 15 m²! Deze slaapkamer beschikt over de toegangsdeur richting het dakterras, voorzien van een vlonder en een zuidelijke en derhalve zeer zonnige ligging! Het dak is deels voorzien van sedum
waardoor de woning naast ruim ook duurzaam te noemen is!

SLAAPKAMERS II & III:
Naast deze master-bedroom is de tweede slaapkamer van deze verdieping gelegen, wederom voorzien van lange wanden, veel daglicht en een oppervlakte van circa 12 m². De derde slaapkamer bevindt zich aan de voorzijde en is circa 6 m². De grootte van deze slaapkamers zal u doen verrassen, mede vanwege de lange wanden en kubieke vormen zijn deze slaapkamers perfect in te delen. Om een goede indruk van de fijne afmetingen te verkrijgen verwijzen wij graag naar de bijgevoegde indelingsplattegronden.

BADKAMER:
Aan de linker-/voorzijde van de eerste verdieping bevindt zich de badkamer. Deze badkamer is geheel voorzien van tegelwerk en beschikt over een douche, ligbad, toilet, wastafel en bidet. Voor wat betreft oppervlakte en vorm een fijne ruimte en geschikt voor talloze indelingen!

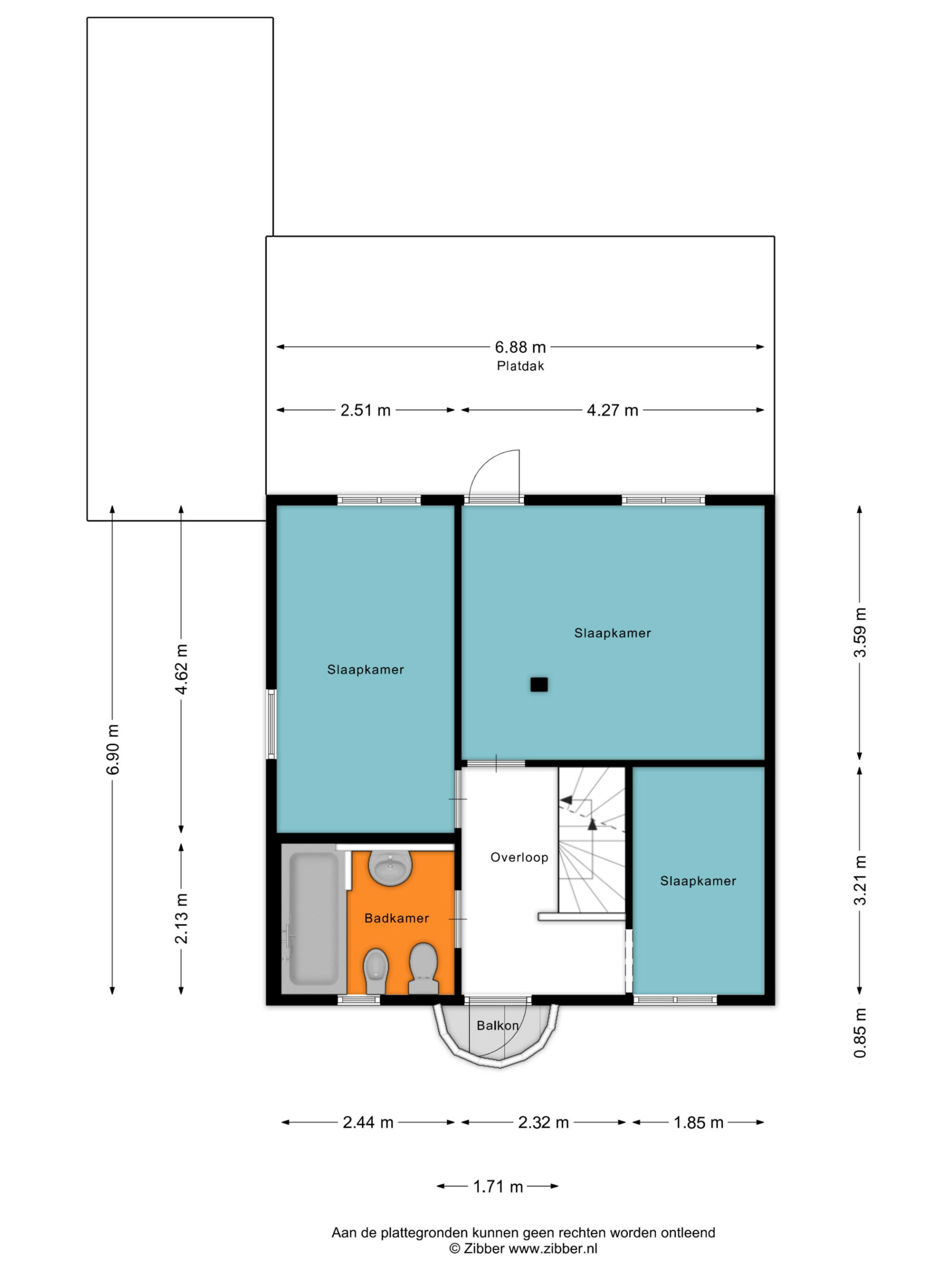
TWEEDE VERDIEPING:
De vaste trap verzorgt toegang tot de overloop van deze ruime tweede verdieping. Aan deze overloop voorzien van lichtkoepel zijn gelegen de vierde en vijfde slaapkamer met bergingsruimte, diverse bergingsmogelijkheden onder de dakschuinte en de C.V.-ketel.

SLAAPKAMERS IV & V:
De achterzijde van deze ruime tweede verdieping beschikt over een breed dakkapel welke in beide slaapkamers een fijne hoogte en oppervlakte te bieden heeft. Zo beschikt de linkerslaapkamer over een oppervlakte van maar liefst circa 17 m²!

Een prachtige kamer en vanwege de aanwezigheid van lange wanden ideaal om uw meubilair te plaatsen. De vijfde slaapkamer is aan de rechterzijde gelegen, deze slaapkamer is ook voorzien van prettige afmetingen, mede vanwege de aanwezige inloopkast! De totaaloppervlakte van deze slaapkamer betreft circa 14 m². Om een goede indruk van de fijne afmetingen van deze slaapkamers te verkrijgen verwijzen wij graag naar de bijgevoegde indelingsplattegronden.

TUIN:
Een prachtig gelegen, rustige en vooral groene achtertuin welke op het zonnige zuiden gelegen is met een dergelijke oppervlakte zien wij maar zelden! Dat heeft mede te maken met de afwezigheid van directe buren aan de linkerzijde van de woning. Zo is deze woning niet alleen rustig maar ook gunstig gelegen gelet op de gewenste privacy.

Daarbij beschikt de achtertuin over volwassen begroeiing, een nette terreinafscheiding en diverse terrassen (overdekt) om uw tuinmeubilair te kunnen plaatsen. Aan de linkerzijde van de woning bevindt zich een vrijstaande bergingsruimte t.b.v. het plaatsen van uw fietsen en/of tuingereedschap. De eigen achterom is voor deze bergingsruimte gelegen waardoor u altijd eenvoudig achterom de tuin kunt betreden.

Interesse?

Voor meer informatie of het plannen van een bezichtiging helpen we je graag verder.

Heb je liever direct contact met ons team?
Deel deze woning

Kenmerken

Overdacht
Vraagprijs € 400.000
Prijs per m² € 2.837
Koopconditie Kosten koper
Status Beschikbaar
Aanvaarding In overleg
Bouw
Object type Twee onder een kapwoning
Type Twee onder een kapwoning
Soort Eengezinswoning
Bouwtype Bestaande bouw
Bouwjaar 1985
Soort dak Samengesteld dak
Oppervlakten en inhoud
Wonen 141 m²
Gebouwgebonden buitenruimte 21 m²
Externe bergruimte 10 m²
Perceel 233 m²
Inhoud 499 m²
Indeling
Aantal kamers 6
Aantal slaapkamers 5
Aantal badkamers 1
Aantal woonlagen 2
Balkon Ja
Dakterras Ja
Voorzieningen Tv kabel, Natuurlijke ventilatie
Energie
Energielabel C
Verwarming CV Ketel
Warm water CV Ketel
CV Ketel
Brandstof Gas
Eigendom Eigendom
Kadastrale gegevens
Helmond T 5446
Oppervlakte 233 m²
Eigendomssituatie Volle eigendom
Buitenruimte
Liggingen Aan rustige weg, In woonwijk
Tuin Achtertuin, Voortuin, Zijtuin
Oppervlakte 120 m²
Breedte 14 meter
Diepte 9 meter
Ligging tuin Zuid
Heeft achterom Ja
Berging
Soort Vrijstaand hout
Voorzieningen Voorzien van elektra
Parkeergelegenheid
Soort parkeergelegenheid Openbaar parkeren, Op eigen terrein
Locatie
Adres Ardennen 45
Postcode 5706 RD
Plaats Helmond
Provincie Noord-Brabant
Land Nederland

Bekijk alle woningen in Helmond

Bekijk aanbod

Niet gevonden wat je zocht?

We helpen je graag met het zoeken naar de perfecte woning voor jou!

Gratis zoekopdracht

Gratis waardebepaling

Wil je graag jouw huis verkopen in Helmond, Eindhoven, de Peel of de Kempen en ben je benieuwd wat jouw huis waard is? Ontvang binnen 5 minuten de geschatte waarde van jouw woning.

Bereken het nu
Adriaan van den Heuvel - Agrarisch - Sfeerbeeld 3