de Middenloop 37 5704 JD Helmond
115 m²wonen 243 m² perceel 4 slaapkamers Bouwjaar 1984€ 415.000 k.k.
Omschrijving
Verrassend ruime hoekwoning op rustige, verkeersvrije woonlocatie aan het park van de geliefde en gewilde wijk Brouwhuis te Helmond, op steenworp afstand van alle benodigde voorzieningen gelegen met de mogelijkheid op eigen afgesloten terrein en overdekt te parkeren! Kom deze woning dan ook zeker snel bekijken, wij heten u van harte welkom!
BIJZONDERHEDEN:
– Grote hoekwoning met ruime dinerruimte aan de linkerzijde welke in open verbinding staat met de woonkamer;
– Maar liefst vier goed formaat slaapkamers, allen uitermate rustig gelegen;
– Tuin op het westen, voorzien van een terrasoverkapping en een afsluitbare carport waardoor u op eigen terrein kunt parkeren;
– Gelegen op steenworp afstand van scholen, supermarkten en horecagelegenheden;
– N.S.-station Helmond Brouwhuis is op loopafstand gelegen;
ALGEMEEN:
Deze hoekwoning bevindt zich in alle rust en omringd door groen, de woning kenmerkt zich door een verkeersarm karakter, ideaal voor (jonge) gezinnen. Daarbij bevinden zich een basisschool op korte loopafstand, ook de winkelkern van de wijk Brouwhuis, bekend als winkelcentrum ‘’Brouwhorst’’ bevindt zich op loopafstand. Brouwhuis is ook voorzien van een N.S.-treinstation welke richting Helmond centrum, Eindhoven en Venlo rijdt.
BEGANE GROND
HAL & ENTREE:
Bij aankomst parkeert u uw auto onder de carport op eigen terrein, vanuit deze carport welke overdekte en afsluitbare parkeermogelijkheid biedt.
Vanuit deze carport kunt u de woning betreden, vanuit de straat aan de voorzijde bereiken we via een verzorgde en omheinde voortuin (mogelijkheid tot parkeren van fietsen) de entree van deze woning waaraan gelegen zijn, de moderne en geheel betegelde toiletruimte voorzien van wandcloset en fonteintje, meterkast met stadsverwarmingsinstallatie, trapopgang en toegang tot de woonkamer met open keuken.
WOONKAMER:
Via de entree bereiken we de woonkamer welke in open verbinding staat met de keuken, deze woonkamer is ontzettend ruim, circa 20 m², en biedt u de gelegenheid een ruime en gezellige zithoek te creëren, mede vanwege de aanbouw aan de linkerzijde van deze woning waar een dinerruimte gerealiseerd is. Deze ruimte is een ware toevoeging en ideaal te gebruiken voor talloze doeleinden. Een speelhoek voor kinderen, een thuiswerplek met uitzicht over het park of een grote dinerruimte behoren allen tot de mogelijkheden! De zithoek in de woonkamer staat in open verbinding met de keuken en onder de trap bevindt zich provisieruimte.
OPEN KEUKEN:
In U-opstelling bevindt zich tegen de wanden, en met uitzicht over het park aan de voorzijde, deze open keuken. Voorzien van uitermate veel werk- en bergruimte dankzij de aanwezige kastruimte. Aan inbouwapparatuur treffen we:
– Koelkast;
– Vriezer;
– Vaatwasser (op hoogte);
– Combi-oven;
– Elektrische kookplaat;
– Afzuigkap.
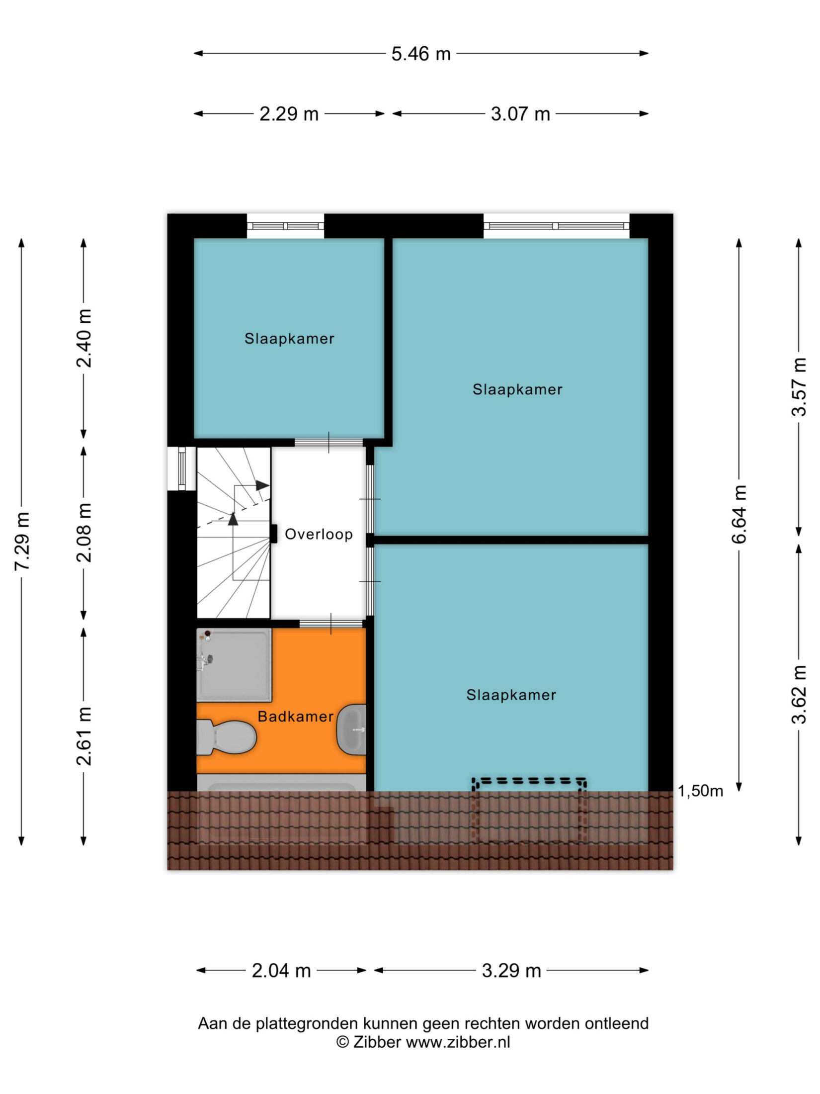
EERSTE VERDIEPING:
De vaste trap in de entree biedt toegang tot de overloop van de eerste verdieping. Aan deze overloop zijn gelegen de drie slaapkamers, badkamer en vaste trapopgang richting de tweede verdieping.
SLAAPKAMERS I, II & III:
Aan de rechter-/achterzijde bevindt zich de grootste slaapkamer, voorzien van de mogelijkheid een kast te plaatsen en tevens voorzien van diverse lange wanden waardoor het plaatsen van uw meubilair eenvoudig is, aan de rechter-/voorzijde bevindt zich de tweede slaapkamer.
Wederom goed van formaat en eenvoudig in te delen, daarbij ook voorzien van een fijn uitzicht over het park. Aan de linker-/achterzijde bevindt zich de derde slaapkamer. Deze slaapkamer biedt naast de mogelijkheid een slaapkamer te hanteren ook de mogelijkheid een thuiswerplek in te richten!
BADKAMER:
De badkamer beschikt over een groot ligbad, een wastafel met kastruimte, toilet en een inloopdouche. De oppervlakte van deze badkamer van circa 5 m² biedt de gewenste indelingsmogelijkheden en -opties.
TWEEDE VERDIEPING:
Via de vaste trap op de overloop van de eerste verdieping bereiken we de tweede verdieping. Deze tweede verdieping is opgedeeld in een overloop/wasruimte, waar de benodigde witgoedaansluitingen te vinden zijn. Vanuit deze wasruimte krijgen we toegang tot de vierde slaapkamer. Deze verdieping wordt uitermate praktisch vanwege de aanwezigheid van het grote dakkapel over nagenoeg de gehele breedte. Aan bergingsruimte geen gebrek, onder de dak schuinte bevinden zich knieschotten over de gehele breedte.
TUIN:
Fijne op het westen gelegen en derhalve zonnige achtertuin! Deze achtertuin is naast zonnig ook onderhoudsvriendelijk uitgevoerd en voorzien van net straatwerk.
Vanuit de zitruimte in de woonkamer bereiken we het overdekt terras, grenzend aan de woning. Ideaal om tot laat in het jaar te genieten van het buitenleven. De tuin is ruim van opzet en beschikt ook over een vrijstaande bergingsruimte voor het stallen van fietsen en/of opbergen van uw tuinmaterialen. Aan deze bergingsruimte grenst een carport welke afsluitbaar is en aan het parkeerterrein achter de woningen grenst.
Interesse?
Voor meer informatie of het plannen van een bezichtiging helpen we je graag verder.
Heb je liever direct contact met ons team?
Deel deze woning
Kenmerken
Overdacht
| Vraagprijs | € 415.000 |
| Prijs per m² | € 3.609 |
| Koopconditie | Kosten koper |
| Status | Beschikbaar |
| Aanvaarding | In overleg |
Bouw
| Object type | Hoekwoning |
| Type | Hoekwoning |
| Soort | Eengezinswoning |
| Bouwtype | Bestaande bouw |
| Bouwjaar | 1984 |
| Soort dak | Samengesteld dak |
Oppervlakten en inhoud
| Wonen | 115 m² |
| Gebouwgebonden buitenruimte | 20 m² |
| Externe bergruimte | 7 m² |
| Perceel | 243 m² |
| Inhoud | 407 m² |
Indeling
| Aantal kamers | 6 |
| Aantal slaapkamers | 4 |
| Aantal badkamers | 1 |
| Aantal woonlagen | 2 |
| Voorzieningen | Tv kabel |
Energie
| Energielabel | B |
| Isolatie | Dakisolatie, Muurisolatie, Dubbel glas |
| Verwarming | Stadsverwarming |
| Warm water | Stadsverwarming |
Kadastrale gegevens
| Helmond Q 963 | |
| Oppervlakte | 243 m² |
| Eigendomssituatie | Volle eigendom |
Buitenruimte
| Liggingen | Aan rustige weg, In woonwijk |
| Tuin | Achtertuin, Voortuin |
| Oppervlakte | 110 m² |
| Breedte | 9 meter |
| Diepte | 13 meter |
| Ligging tuin | West |
| Heeft achterom | Ja |
Berging
| Soort | Vrijstaand steen |
| Voorzieningen | Voorzien van elektra |
Parkeergelegenheid
| Soort parkeergelegenheid | Openbaar parkeren, Op eigen terrein, Op afgesloten terrein |
Locatie
| Adres | de Middenloop 37 |
| Postcode | 5704 JD |
| Plaats | Helmond |
| Provincie | Noord-Brabant |
| Land | Nederland |
Vergelijkbaar in de buurt
Bekijk alle woningen in Helmond
Bekijk aanbodNiet gevonden wat je zocht?
We helpen je graag met het zoeken naar de perfecte woning voor jou!
Gratis zoekopdracht