Drs. den Uyllaan 39 5707 KH Helmond
101 m²wonen 190 m² perceel 3 slaapkamers Bouwjaar 1997€ 449.000 k.k.
Omschrijving
Zeer goed onderhouden tweekapper met overdekt terras, berging en fijne ligging in het gewilde Mierlo-Hout.
BIJZONDERHEDEN:
– Tweekapper in de kindvriendelijke wijk “Kroon”
– Moderne keuken, badkamer en toilet;
– Fraai overdekt terras;
– Instapklaar!
– 3 slaapkamers op de eerste verdieping;
– Extra ruimte met dakkapel op zolder, ideaal als vierde slaapkamer;
ALGEMEEN:
Ontdek deze prachtige twee-onder-een-kapwoning in de kindvriendelijke wijk “Kroon” in Mierlo-Hout / Helmond. Deze woning is top onderhouden met een ruime woonkamer, een mooie keuken en badkamer en een ideaal overdekt terras.
Op de eerste verdieping bevinden zich 3 slaapkamers en een badkamer, terwijl de zolder een extra ruimte biedt die perfect kan dienen als extra slaapkamer. Wat deze woning verder ook bijzonder maakt, is de ideale locatie. Met het station, diverse scholen en winkels in de buurt, hoef je nooit ver te reizen voor je dagelijkse behoeften. Daarnaast heerst er een geweldige sfeer in Mierlo-Hout, waar je je direct thuis zult voelen.
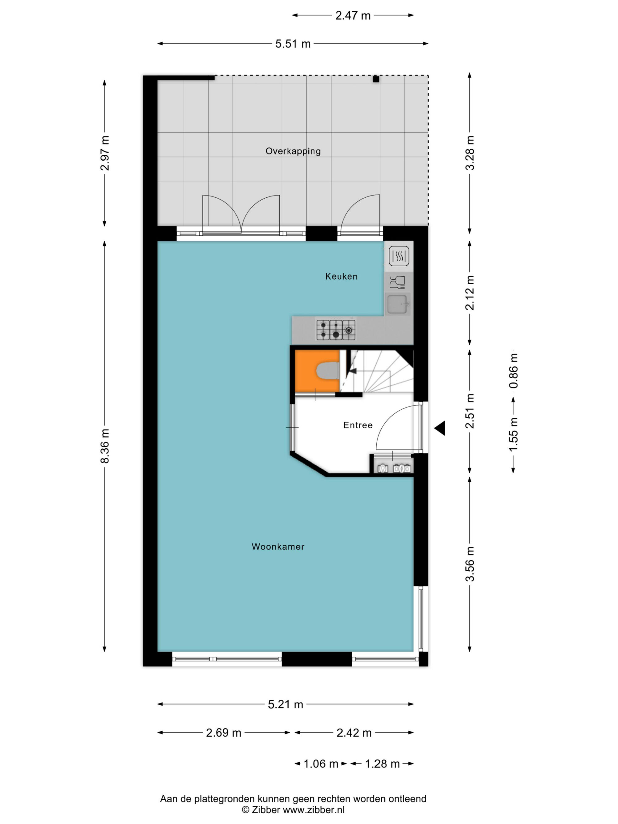
BEGANE GROND
HAL & ENTREE:
Zijentree met toegang tot de hal. Hier vind je de trap naar boven, een modern toilet met wandcloset en de meterkast. Er is ook voldoende ruimte voor je kapstok, zodat je al je jassen netjes kunt ophangen. Op de vloer ligt een laminaat vloer die keurig wordt doorgetrokken naar de woonkamer.
WOONKAMER:
De woonkamer is royaal te noemen en door de grote ramen aan zowel de voor- als achterzijde is er zeer veel lichtinval en heeft het geheel een ruim en open karakter. Openslaande tuindeuren geven toegang tot het overdekt terras en de achtertuin.
KEUKEN:
De open keuken is voorzien van een mooie inrichting in hoekopstelling en is voorzien van diverse inbouwapparatuur
zoals:
• 5-pitsgaskookplaat (met wokbrander)
• RVS-afzuigkap
• Combi-magnetron
• Koelkast
• Vaatwasser
Er is meer dan voldoende kastruimte en het natuurstenen aanrechtblad draagt bij aan een duurzame en luxe uitstraling.
EERSTE VERDIEPING:
Op de eerste verdieping vind je 3 slaapkamers en de badkamer. De ouderslaapkamer ligt aan de voorzijde en biedt de mogelijkheid voor het plaatsen van een grote kast. Alle slaapkamers zijn voorzien van een vinyl vloer en hebben veel lichtinval. De hele bovenverdieping is voorzien van rolluiken.
BADKAMER:
De moderne, ruime badkamer is voorzien van een ruime inloopdouche, een wandcloset en een fraai badmeubel met wastafel. Een groot raam zorgt voor veel lichtinval en geeft de mogelijkheid tot natuurlijk ventileren.
ZOLDER:
Op de zolder vind je een grote ruimte. Hier vind je de aansluiting voor je wasmachine en droogtrommel. De zolder heeft een groot velux dakraam. Je kunt hier gemakkelijk een vierde slaapkamer maken, door een wand te plaatsen en de ruimte te scheiden, zodat je een voorzolder krijgt voor je witgoed.
TUIN:
De tuin is mooi aangelegd, met een groot (overdekt) terras, plantenborders, grasperk, erfafscheidingrondom en een eigen achterom. Het overdekte terras is voorzien van een buitenkeuken (zonder apparatuur) zodat u gedurende het gehele jaar kunt genieten van uw tuin! Achter in de tuin bevindt zich een berging welke aan de voorzijde is voorzien van een extra overkapping. U kunt dus altijd uw ideale plekje opzoeken in de tuin!
Interesse?
Voor meer informatie of het plannen van een bezichtiging helpen we je graag verder.
Heb je liever direct contact met ons team?
Deel deze woning
Kenmerken
Overdacht
| Vraagprijs | € 449.000 |
| Prijs per m² | € 4.446 |
| Koopconditie | Kosten koper |
| Status | Beschikbaar |
| Aanvaarding | In overleg |
Bouw
| Object type | Twee onder een kapwoning |
| Type | Twee onder een kapwoning |
| Soort | Eengezinswoning |
| Bouwtype | Bestaande bouw |
| Bouwjaar | 1997 |
| Soort dak | Zadeldak |
Oppervlakten en inhoud
| Wonen | 101 m² |
| Gebouwgebonden buitenruimte | 17 m² |
| Externe bergruimte | 5 m² |
| Perceel | 190 m² |
| Inhoud | 359 m² |
Indeling
| Aantal kamers | 5 |
| Aantal slaapkamers | 3 |
| Aantal badkamers | 1 |
| Aantal woonlagen | 2 |
| Voorzieningen | Rolluiken, Dakraam |
Energie
| Energielabel | B |
| Isolatie | Dakisolatie, Muurisolatie, Vloerisolatie, Dubbel glas |
| Verwarming | CV Ketel |
| Warm water | CV Ketel |
CV Ketel
| Brandstof | Gas |
| Bouwjaar | 2024 |
| Eigendom | Lease |
| Type | Intergas |
Kadastrale gegevens
| Helmond T 5832 | |
| Oppervlakte | 190 m² |
| Eigendomssituatie | Volle eigendom |
Buitenruimte
| Tuin | Achtertuin, Voortuin |
| Oppervlakte | 101 m² |
| Breedte | 8 meter |
| Diepte | 14 meter |
| Ligging tuin | West |
| Heeft achterom | Ja |
Berging
| Soort | Vrijstaand steen |
| Voorzieningen | Voorzien van elektra |
Parkeergelegenheid
| Soort parkeergelegenheid | Openbaar parkeren |
Locatie
| Adres | Drs. den Uyllaan 39 |
| Postcode | 5707 KH |
| Plaats | Helmond |
| Provincie | Noord-Brabant |
| Land | Nederland |
Open huis
| Startdatum | 2026-03-28 11:00:00 |
| Einddatum | 2026-03-28 15:00:00 |
Vergelijkbaar in de buurt
Bekijk alle woningen in Helmond
Bekijk aanbodNiet gevonden wat je zocht?
We helpen je graag met het zoeken naar de perfecte woning voor jou!
Gratis zoekopdracht