Verkocht onder voorbehoud

Hannie Schaftplein 9 5701 DA Helmond

87 m²wonen 113 m² perceel 4 slaapkamers Bouwjaar 1986

Omschrijving

Bent u op zoek naar een instapklare, strak afgewerkte en centraal gelegen woning, compleet met twee dakkapellen, vier grote slaapkamers, een fijne tuin en de mogelijkheid om op eigen terrein afgesloten te kunnen parkeren onder de carport? Kom dan snel kijken bij deze leuke woning, wij heten u van harte welkom!

BIJZONDERHEDEN:
– Twee dakkapellen aan de voor- en achterzijde, waardoor de tweede verdieping uitzonderlijk groot geworden is;
– Voorzien van een overdekte parkeerplaats (carport) achter de woning op eigen terrein;
– Maar liefst vier grote slaapkamers en moderne badkamer-, toilet- en keukeninrichting;
– Vrije parkeergelegenheid aan de voorzijde van de woning, maar naast het woonhofje gelegen;
– Gelegen nabij verschillende basis- en middelbare scholen;
– Voorzien van een prettige zuidelijke en zeer zonnige achtertuin;
– Centraal gelegen in Helmond met een zeer hoogwaardig voorzieningsniveau in de directe omgeving;

ALGEMEEN:
Wonen in het centrum van Helmond betekent wonen te midden van alle gewenste voorzieningen. Deze woning bevindt zich op een rustige woonlocatie op korte afstand van het bruisende centrum van Helmond. Supermarkten, horecagelegenheden, speciaalzaken, scholen, kinderdagverblijven, bevinden zich allen op loopafstand, kortom een ideale locatie! Helmond is voorzien van meerdere NS-stations en binnen enkele minuten zijn verschillende uitvalswegen richting o.a. Eindhoven, Deurne en Veghel te bereiken.

Dat maakt de woning ook ideaal geschikt voor een ieder welke op zoek is naar een centraal gelegen woning. Daarbij is de woning gelegen aan een rustig woonhofje waar geen auto’s rijden, dichtbij bevindt zich een Albert Heijn, gelegen aan de Dijksestraat.

BEGANE GROND
HAL & ENTREE:
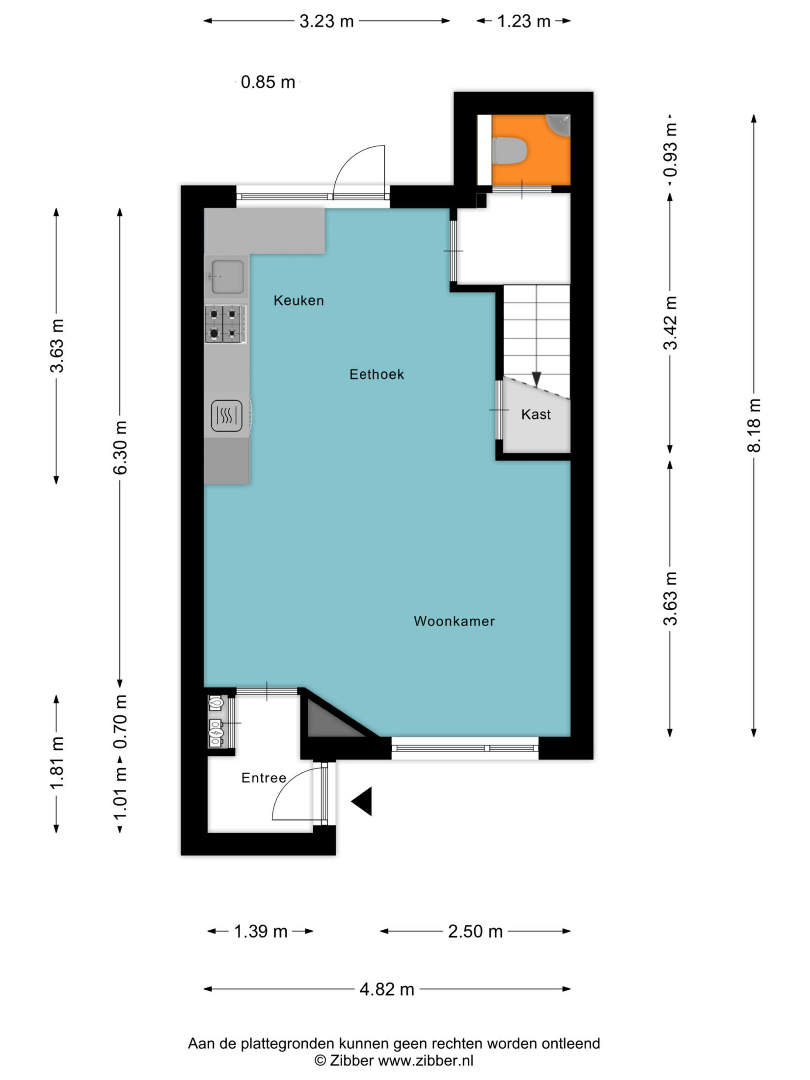
Bij aankomst parkeert u uw auto op de afsluitbare parkeergelegenheid op eigen terrein aan de achterzijde van de woning, aan de voorzijde heeft u tevens de mogelijkheid te parkeren aan de rand van het rustige woonhofje, via de verzorgde voortuin komt u bij de entree, deze biedt toegang tot de ruime hal, prachtig afgewerkt met hoogwaardig stucwerk. De hal geeft u toegang tot de meterkast, de garderobe en de woonkamer met open keuken.

WOONKAMER:
Aan de voorzijde van de woonkamer treft u de zithoek. Deze ruimte is voorzien van grote raampartijen waardoor de woonkamer veel daglichttoetreding geniet. Tevens beschikt u over talloze indelingsmogelijkheden m.b.t. het creëren van deze gewenste zithoek. Daarbij biedt de zithoek uitzicht over het aan de voorzijde gelegen veldje van het woonhofje.

KEUKEN:
De open keuken is aan de achterzijde van de woning gelegen en staat in verbinding met de rest van de begane grond. De keuken is uitermate praktisch ingedeeld, tegen de lange wand geplaatst en voorzien van veel bergings- en werkruimte. De grote raampartijen in de achtergevel geven de ruimte haar zonnige karakter. De keuken is voorzien van inbouwapparatuur, te weten:

– Combi-oven;
– Magnetron;
– Koelkast;
– Vriezer;
– Gaskookplaat;
– Vaatwasser;
– Afzuigkap.

PORTAAL MET TOILETRUIMTE:
Vanuit de keuken krijgen we toegang tot het portaal aan de achterzijde. Vanuit dit portaal krijgt u toegang tot de toiletruimte, geheel betegeld, voorzien van wandcloset en fonteintje en de nette, beklede trapopgang richting de overloop van de eerste verdieping.

EERSTE VERDIEPING:
Via de trapopgang in het portaal van de begane grond komt u op de overloop waaraan een tweetal grote slaapkamers, een wasruimte (mogelijk te gebruiken als slaapkamer of thuiswerkplek) en de badkamer gelegen zijn. Via de vaste trap bereikt u de tweede verdieping van deze woning.

SLAAPKAMERS I & II:
Deze woning is op de eerste verdieping voorzien van een tweetal grote slaapkamers. De master-bedroom is gelegen aan de voorzijde van de woning en voorzien van een rustig uitzicht over het woonhofje. De tweede slaapkamer bevindt zich ook aan de voorzijde. Beide slaapkamers zijn perfect te gebruiken dankzij de prettige en ruime afmetingen, hierdoor beschikt u over talloze indelings- en gebruiksmogelijkheden! Om een goede indruk van deze fijne afmetingen te verkrijgen verwijzen wij graag naar de bijgevoegde indelingsplattegronden.

WASRUIMTE:
Op de eerste verdieping bevindt zich een separate wasruimte met inbouwkast, tevens mogelijk te gebruiken als kinderkamer of thuiswerkplek. De aanwezigheid van deze separate wasruimte is uitermate praktisch en fijn in gebruik!

BADKAMER:
Aan de achterzijde van deze verdieping treft u de badkamer. De badkamer is geheel modern en strak betegeld en voorzien van een grote inloopdouche met regen- en handdouche en een wastafelmeubel met veel bergingsruimte. Het geheel oogt modern en is zeer goed onderhouden.

TWEEDE VERDIEPING:
Via de vaste trap op de overloop van de eerste verdieping bereiken we de tweede verdieping van deze prachtige woning. Deze tweede verdieping beschikt over maar liefst twee grote dakkapellen voorzien van kunststof kozijnen met HR++ beglazing, spotjes en zeer strak stucwerk! Onder de dakkapellen heeft u de mogelijkheid uw spullen te kunnen bergen. Verder biedt deze verdieping u talloze indelings- en gebruiksmogelijkheden dankzij zijn ruime oppervlakte. Om een goede indruk van de mogelijkheden te verkrijgen verwijzen wij graag naar de bijgevoegde indelingsplattegronden waaruit alle opties blijken, een ruimte welke u beslist eens gezien moet hebben.

TUIN:
Via de loopdeur aan de achterzijde van de keukenruimte bereikt u de onderhoudsvriendelijke en de op het zonnige zuiden gelegen achtertuin. De achtertuin is voorzien van diverse terrassen en nette terreinafscheidingen. Vanuit deze terrassen bereiken we de bergingsruimte en de overdekte parkeerplaats op eigen terrein. Deze achtertuin biedt privacy en rust vanwege het uitblijven van directe achterburen en dat tezamen met een gunstige zonnige ligging!

Helaas, dit object is al verkocht

Bekijk hieronder ons actuele aanbod

Bekijk ons aanbod

Bekijk alle woningen in Helmond

Bekijk aanbod

Niet gevonden wat je zocht?

We helpen je graag met het zoeken naar de perfecte woning voor jou!

Gratis zoekopdracht