Harmoniestraat 35 5702 JB Helmond
162 m²wonen 283 m² perceel 4 slaapkamers Bouwjaar 1973€ 499.000 k.k.
Omschrijving
Luxe, comfort en ruimte – alles komt samen in deze prachtige en zeer royale (liefst 162 m²) hoekwoning in Helmond Noord!
BIJZONDERHEDEN:
– Fantastische hoekwoning met garage en carport;
– Multifunctionele ruimte (chillruimte/kantoor/hobbyruimte;
– Vier slaapkamers, waarvan één met dakkapel;
– Diverse rolluiken aanwezig;
– Luxe badkamer en verzorgde afwerking;
– Gelegen in een groene, rustige en kindvriendelijke woonomgeving;
– Dichtbij natuurgebied De Bundertjes en alle wenselijke voorzieningen.
ALGEMEEN:
In een rustige, groene woonomgeving in Helmond Noord, op steenworp afstand van natuurgebied De Bundertjes, staat deze fantastische en zeer goed onderhouden hoekwoning met garage, carport, multifunctionele ruimte en een fraaie tuinkamer. Een woning waar luxe, comfort en functionaliteit naadloos samenkomen – ideaal voor gezinnen, thuiswerkers én levensgenieters.
De woning ligt in het gewilde Helmond Noord, een kindvriendelijke en groene wijk met volop voorzieningen in de directe omgeving. Op korte afstand vind je winkels, scholen, sportfaciliteiten, speeltuintjes en openbaar vervoer. Natuurliefhebbers kunnen hun hart ophalen in het prachtige natuurgebied De Bundertjes, waar je heerlijk kunt wandelen en fietsen. Ook het centrum van Helmond en uitvalswegen richting Eindhoven zijn snel en eenvoudig bereikbaar.
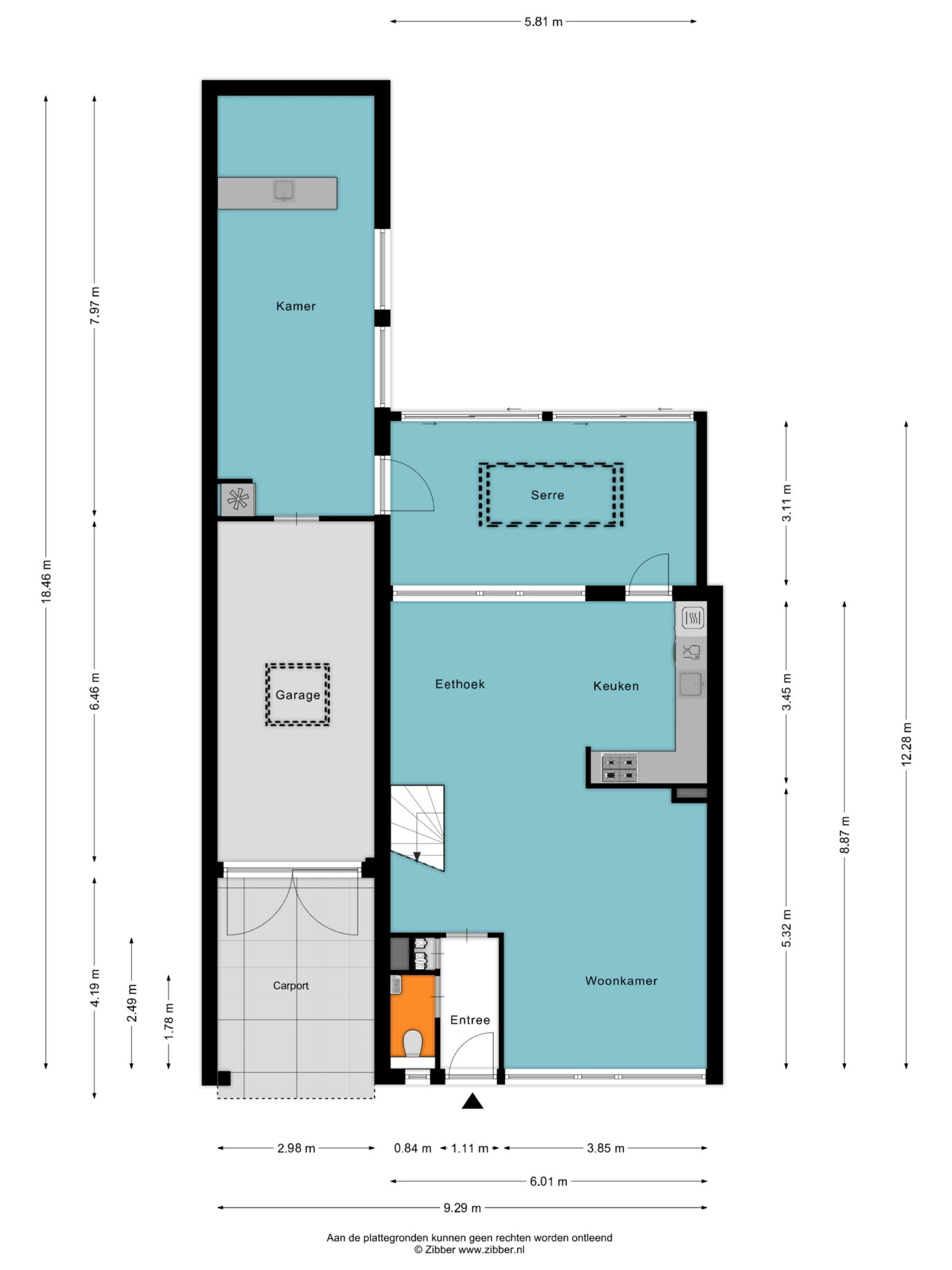
BEGANE GROND
HAL & ENTREE:
Grote eigen oprit met carport voor het plaatsen uw auto. Voorentree met toegang tot de hal. In de hal bevinden zich het moderne deels betegelde toilet met wandcloset en de meterkast met uitgebreide groepeninstallatie. Op de vloer ligt een fraaie PVC-vloer die keurig wordt doorgetrokken naar de woonkamer en de keuken. Direct bij binnenkomst valt direct op hoe verzorgd en stijlvol deze woning is afgewerkt.
WOONKAMER:
De erg ruime doorzon woonkamer met moderne afwerking biedt volop ruimte voor een gezellige zithoek en eethoek met uitzicht op de fraaie tuin. Door de grote raampartijen aan zowel de voor- als achterzijde van de woonkamer is er veel lichtinval en heeft het geheel een ruim en open karakter.
KEUKEN:
De luxe open keuken is voorzien van een moderne inrichting in hoekopstelling welke is voorzien van hoogwaardige inbouwapparatuur zoals:
• 5-pits gaskookplaat;
• Combi-magnetron;
• Afzuigkap;
• Vaatwasser;
• Koelkast.
Er is meer dan voldoende bergruimte en het moderne aanrechtblad geeft de keuken een luxe en duurzame uitstraling.
EERSTE VERDIEPING:
Op de eerste verdieping bevinden zich drie royale slaapkamers, elk met grote raampartijen die zorgen voor een aangename lichtinval en een gevoel van ruimte. De kamers bieden volop mogelijkheden voor een comfortabele inrichting, bijvoorbeeld als hoofdslaapkamer, kinderkamer of thuiskantoor.
BADKAMER:
De badkamer is voorzien van een ruime inloopdouche, een vrijstaand ligbad en een fraai badmeubel met dubbele wastafel. Hoogwaardige materialen en een verzorgde afwerking geven deze badkamer een luxe uitstraling en maken het tot een heerlijke plek om te ontspannen.
TWEEDE VERDIEPING:
De tweede verdieping biedt nog eens een vierde slaapkamer met groot dakkapel en extra bergruimte – een ideale plek voor een tienerkamer, logeerkamer of rustige werkplek.
TUIN:
Aan de achterzijde bevindt zich een mooie tuinkamer, met een grote lichtkoepel en een glazen schuifpui – perfect om het hele jaar door te genieten van het buitenleven. Verder is de achtertuin fraai en onderhoudsvriendelijk aangelegd met mooie sierbestrating, erfafscheiding en een eigen achterom. Aangrenzend vind je de fantastische multifunctionele ruimte, die uitstekend dienst kan doen als chillruimte, kantoor, hobbykamer of speelkamer – een echte bonus voor wie flexibel wonen belangrijk vindt.
Vanuit de multifunctionele ruimte bereikt u de ruime inpandige garage, ideaal voor de opslag van uw spullen en/of het plaatsen van uw auto.
Interesse?
Voor meer informatie of het plannen van een bezichtiging helpen we je graag verder.
Heb je liever direct contact met ons team?
Deel deze woning
Kenmerken
Overdacht
| Vraagprijs | € 499.000 |
| Prijs per m² | € 3.080 |
| Koopconditie | Kosten koper |
| Status | Beschikbaar |
| Aanvaarding | In overleg |
Bouw
| Object type | Hoekwoning |
| Type | Hoekwoning |
| Soort | Eengezinswoning |
| Bouwtype | Bestaande bouw |
| Bouwjaar | 1973 |
| Soort dak | Zadeldak |
Oppervlakten en inhoud
| Wonen | 162 m² |
| Gebouwgebonden buitenruimte | 31 m² |
| Perceel | 283 m² |
| Inhoud | 643 m² |
Indeling
| Aantal kamers | 5 |
| Aantal slaapkamers | 4 |
| Aantal badkamers | 1 |
| Aantal woonlagen | 2 |
| Voorzieningen | Rolluiken, Airconditioning, Natuurlijke ventilatie |
Energie
| Energielabel | C |
| Isolatie | Dakisolatie, Muurisolatie |
| Verwarming | CV Ketel, Vloerverwarming gedeeltelijk |
| Warm water | CV Ketel |
CV Ketel
| Brandstof | Gas |
| Bouwjaar | 2017 |
| Eigendom | Eigendom |
| Type | NEFIT |
Kadastrale gegevens
| Helmond B 5732 | |
| Oppervlakte | 38 m² |
| Eigendomssituatie | Volle eigendom |
| Helmond B 5255 | |
| Oppervlakte | 245 m² |
| Eigendomssituatie | Volle eigendom |
Buitenruimte
| Liggingen | Aan park, In woonwijk |
| Tuin | Achtertuin, Voortuin |
| Oppervlakte | 63 m² |
| Breedte | 6 meter |
| Diepte | 11 meter |
| Ligging tuin | Oost |
| Heeft achterom | Ja |
Parkeergelegenheid
| Soort parkeergelegenheid | Openbaar parkeren, Op eigen terrein |
Locatie
| Adres | Harmoniestraat 35 |
| Postcode | 5702 JB |
| Plaats | Helmond |
| Provincie | Noord-Brabant |
| Land | Nederland |
Vergelijkbaar in de buurt
Bekijk alle woningen in Helmond
Bekijk aanbodNiet gevonden wat je zocht?
We helpen je graag met het zoeken naar de perfecte woning voor jou!
Gratis zoekopdracht