Inktvisstraat 14 5706 CR Helmond
92 m²wonen 179 m² perceel 4 slaapkamers Bouwjaar 1970€ 395.000 k.k.
Omschrijving
In een gewilde en bijzonder rustige woonbuurt ligt deze leuke hoekwoning. De woning beschikt over een overkapping en een ruime berging, ideaal voor extra opslag of hobbyruimte!
BIJZONDERHEDEN:
– Sfeervolle hoekwoning in een geliefde woonomgeving in Mierlo-Hout;
– De woning is voorzien van een praktische berging en een eigen achterom;
– Gelegen op loopafstand van het gezellige centrum van Mierlo-Hout, met diverse voorzieningen zoals supermarkten, winkels, het NS-station, scholen en (sport)verenigingen;
– De woning beschikt over kunststof kozijnen en dubbele beglazing.
ALGEMEEN:
Royale hoekwoning met berging en tuin met eigen achterom. De woning is gelegen aan de Inktvisstraat 14 in de wijk Mierlo-Hout te Helmond. De woning ligt aan een brede straat met parkeerhavens, op loopafstand van de basisschool, winkelcentrum De Karper, de sportvelden en natuurgebied ’t Goor. NS-station ’t Hout en de overige winkelvoorzieningen zijn op fietsafstand gelegen.
BEGANE GROND
HAL & ENTREE:
Ruime hal/entree met meterkast en toiletruimte. In de hal bevinden zich tevens de trapopgang naar de eerste verdieping en een praktische trapkast met extra bergruimte. Vanuit de hal heeft u toegang tot de keuken, die op zijn beurt weer toegang geeft tot de woonkamer.
WOONKAMER:
De woonkamer is ruim opgezet en heeft een prettige indeling met voldoende plaats voor een zit- en eethoek. Door de grote ramen komt er veel daglicht binnen, wat zorgt voor een aangename sfeer. De houten plafondbalken en de deels schoonmetselwerk muur geven de ruimte een karakteristieke uitstraling. De kamer sluit aan op de eetruimte en keuken, waardoor er een goede verbinding is tussen de verschillende leefruimtes. Al met al een fijne, praktische woonkamer met veel mogelijkheden om naar eigen smaak in te richten.
KEUKEN:
De keuken is praktisch ingedeeld en uitgevoerd in een lichte kleurstelling, wat zorgt voor een frisse en ruime uitstraling. Er is voldoende werk- en opbergruimte dankzij de vele kasten en lades. De keuken is voorzien van een gaskookplaat, afzuigkap, koelkast en spoelbak. Naast de keuken is ruimte voor een eettafel. Via de deur is er directe toegang tot de tuin, wat zorgt voor extra lichtinval en een prettige verbinding met buiten.
EERSTE VERDIEPING:
De overloop op de eerste verdieping biedt toegang tot drie ruime slaapkamers, elk voorzien van voldoende daglicht en praktische indeling. Vanaf de overloop is ook de badkamer bereikbaar.
BADKAMER:
De badkamer is voorzien van een douche en een wastafel en beschikt over een raam, wat zorgt voor natuurlijke ventilatie en lichtinval. Ook is er ruimte voor de wasmachine.
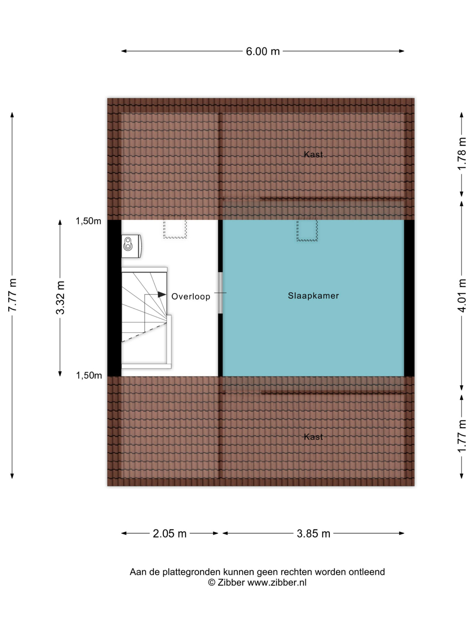
TWEEDE VERDIEPING:
Op de tweede verdieping vindt u een overloop die toegang biedt tot de stookruimte en een extra slaapkamer. Deze slaapkamer is ruim genoeg voor diverse indelingsmogelijkheden en biedt extra flexibiliteit, bijvoorbeeld als werk-, hobby- of logeerkamer. De praktische indeling van deze verdieping maakt het mogelijk om het woongenot verder te vergroten.
TUIN & BERGING:
De woning beschikt over een royale tuin met overkapping en een berging, waarin u meer dan voldoende bergruimte vindt. Omdat het een hoekwoning betreft, geniet u van een breder perceel en extra buitenruimte. De tuin is toegankelijk via een eigen achterom, wat het geheel praktisch en overzichtelijk maakt.
Interesse?
Voor meer informatie of het plannen van een bezichtiging helpen we je graag verder.
Heb je liever direct contact met ons team?
Deel deze woning
Kenmerken
Overdacht
| Vraagprijs | € 395.000 |
| Prijs per m² | € 4.293 |
| Koopconditie | Kosten koper |
| Status | Beschikbaar |
| Aanvaarding | In overleg |
Bouw
| Object type | Hoekwoning |
| Type | Hoekwoning |
| Soort | Eengezinswoning |
| Bouwtype | Bestaande bouw |
| Bouwjaar | 1970 |
| Soort dak | Zadeldak |
Oppervlakten en inhoud
| Wonen | 92 m² |
| Gebouwgebonden buitenruimte | 18 m² |
| Externe bergruimte | 11 m² |
| Perceel | 179 m² |
| Inhoud | 396 m² |
Indeling
| Aantal kamers | 5 |
| Aantal slaapkamers | 4 |
| Aantal badkamers | 1 |
| Aantal woonlagen | 2 |
| Voorzieningen | Rolluiken, Dakraam |
Energie
| Energielabel | D |
| Isolatie | Dubbel glas |
| Verwarming | CV Ketel |
| Warm water | CV Ketel |
CV Ketel
| Brandstof | Gas |
| Bouwjaar | 2024 |
| Eigendom | Eigendom |
| Type | Vaillant |
Kadastrale gegevens
| Helmond U 2803 | |
| Oppervlakte | 179 m² |
| Eigendomssituatie | Volle eigendom |
Buitenruimte
| Liggingen | Aan rustige weg, In woonwijk |
| Tuin | Achtertuin, Voortuin |
| Oppervlakte | 53 m² |
| Breedte | 8 meter |
| Diepte | 7 meter |
| Ligging tuin | Oost |
| Heeft achterom | Ja |
Berging
| Soort | Vrijstaand steen |
Parkeergelegenheid
| Soort parkeergelegenheid | Openbaar parkeren |
Locatie
| Adres | Inktvisstraat 14 |
| Postcode | 5706 CR |
| Plaats | Helmond |
| Provincie | Noord-Brabant |
| Land | Nederland |
Vergelijkbaar in de buurt
Bekijk alle woningen in Helmond
Bekijk aanbodNiet gevonden wat je zocht?
We helpen je graag met het zoeken naar de perfecte woning voor jou!
Gratis zoekopdracht