Johanna van Heverleestraat 9 5706 PX Helmond

176 m²wonen 280 m² perceel 5 slaapkamers Bouwjaar 2012

€ 675.000 k.k.

Omschrijving

Moderne, verrassend royale tweekapper met garage en zonnige tuin gelegen in gewilde wijk Akkers aan verkeersarme, kindvriendelijke straat grenzend aan brede groenstrook.

BIJZONDERHEDEN:
– Verrassend ruime woning met maar liefst vijf volwaardige slaapkamers en twee badkamers;
– Van top tot teen verzorgd afgewerkt en uitstekend onderhouden;
– Royale tuin op het zonnige zuiden;
– Fijne kindvriendelijke locatie grenzend aan brede groenstrook;
– Voorzien van 21 zonnepanelen en een zonneboiler;
– Energielabel A;

ALGEMEEN:
Deze verrassend royale en bovendien moderne tweekapper dien je beslist eens van binnen te zien. Veel ruimte voor een groot (samengesteld) gezin én fraai afgewerkt en goed onderhouden. Daarnaast heeft de woning een fijne ligging aan een doodlopende straat, grenzend aan een brede groenstrook. Als je met je auto komt aanrijden valt meteen de goed parkeermogelijkheden op zowel aan de openbare weg als op de eigen inrit waar met gemak 3 auto’s kunnen staan.

BEGANE GROND
HAL & ENTREE:
Vervolgens ga je via de zijentree naar de hal. De vloer is in 2024 voorzien van een fraaie PVC-vloer in plankenmotief, die doorloopt naar de living en uiteraard is uitgerust met vloerverwarming. In de hal bevinden zich tevens de meterkast en de deels betegelde toiletruimte met wandcloset en fonteintje.

KEUKEN:
Aan de voorzijde bevindt zich de royale open keuken. Naast dat je hier een ruime eettafel kunt plaatsen, valt ook de grote hoeveelheid lichtinval op, wat overigens voor de rest van de woning eveneens geldt. De prachtige keuken met kookeiland en wandopstelling is van alle gemakken voorzien, zoals twee koelkasten (waarvan één met vriesvak), twee combimagnetrons, een 5-pits kooktoestel met wokbrander en een in het plafond geïntegreerde afzuigkap. Het geheel is zeer modern en strak afgewerkt.

WOONKAMER:
Aan de achterzijde bevindt zich de royale living. Ook hier valt de verrassend goede lichtinval op. De brede schuifpui geeft toegang tot het terras en de tuin.

SPEEL-/WERRKAMER:
Vanuit de living ga je naar de opvallend ruime voormalige bijkeuken welke ideaal dienst doet als speel- of werkkamer door zijn grootte. De vloer is hier ook weer belegd met de fraaie pvc vloer maar hier niet voorzien van vloerverwarming maar is een airco aanwezig voor zowel verwarming als verkoeling. Vanuit deze ruimte bereik je de achtertuin en de inpandige garage.

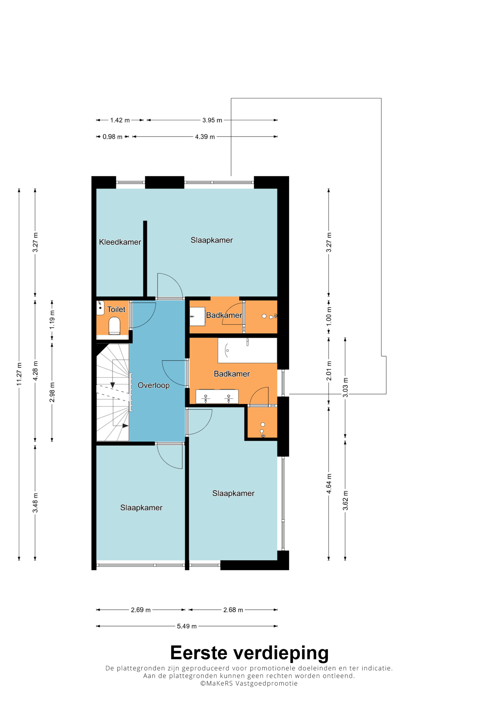
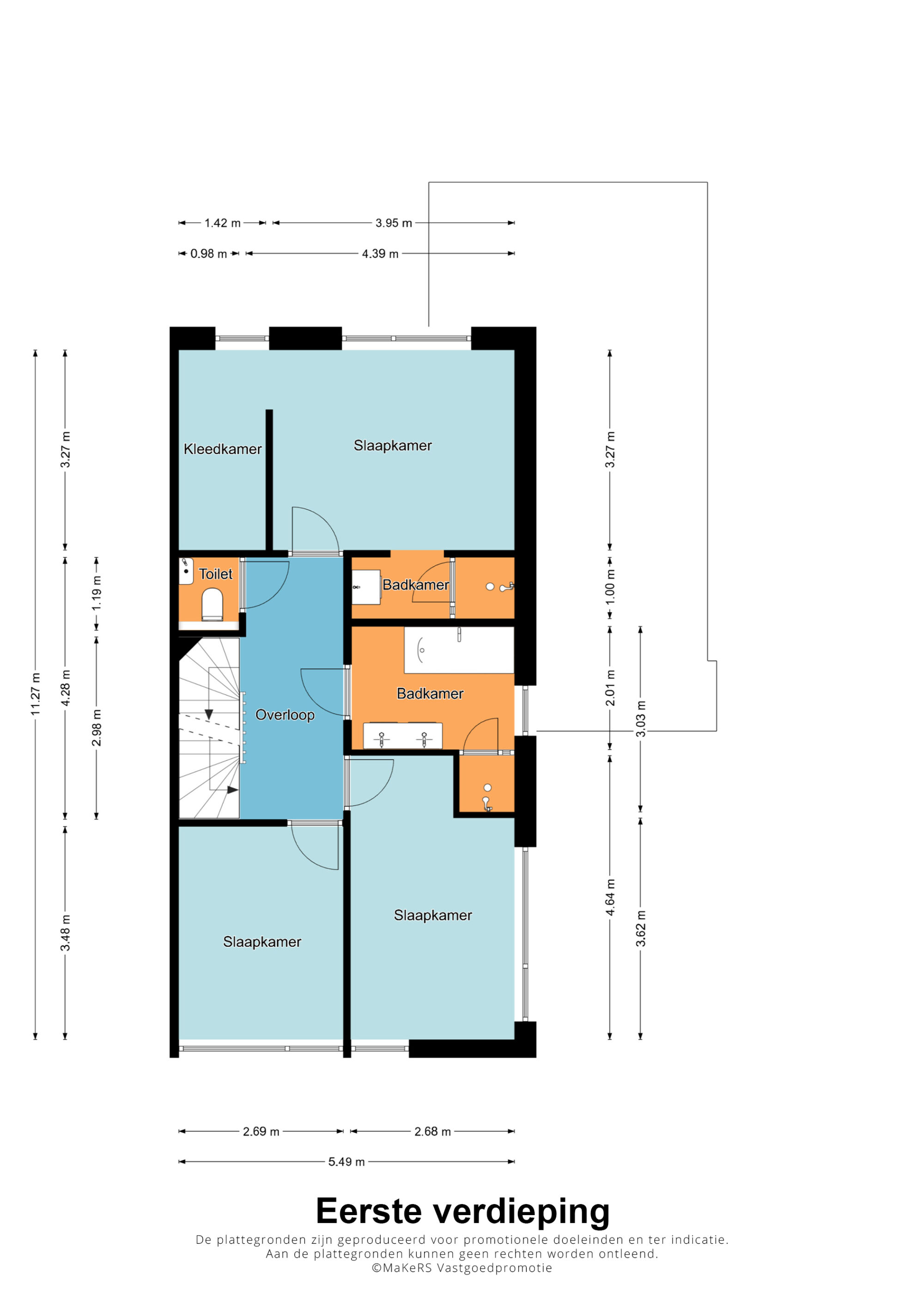
EERSTE VERDIEPING:
Via een schuifdeur in de living bereik je de trap naar de eerste verdieping. Aan de achterzijde bevindt zich de royale
masterbedroom, voorzien van een fijne inloopkast en een eigen badkamer met inloopdouche (met glazen deur) en een wastafel met meubel. Daarnaast beschikt deze slaapkamer over een airco-unit, geschikt voor zowel koelen als verwarmen. Aan de voorzijde liggen slaapkamer 2 en 3, die beide eveneens ruim zijn opgezet en uitstekend dienen als volwaardige tienerslaapkamers.

BADKAMER:
De eerste verdieping beschikt over een luxe badkamer en een aparte toiletruimte. De fraaie hoofdbadkamer is van alle gemakken voorzien, met een whirlpool, een inloopdouche met glazen scherm en een badmeubel met twee wastafels en een grote, brede spiegel. Het grote raam aan de zijkant zorgt voor veel natuurlijke lichtinval en extra ventilatie, terwijl de mechanische ventilatie het comfort compleet maakt.

Daarnaast is er vanaf de overloop een moderne, aparte toiletruimte bereikbaar, uitgerust met een wandcloset en een fonteintje.

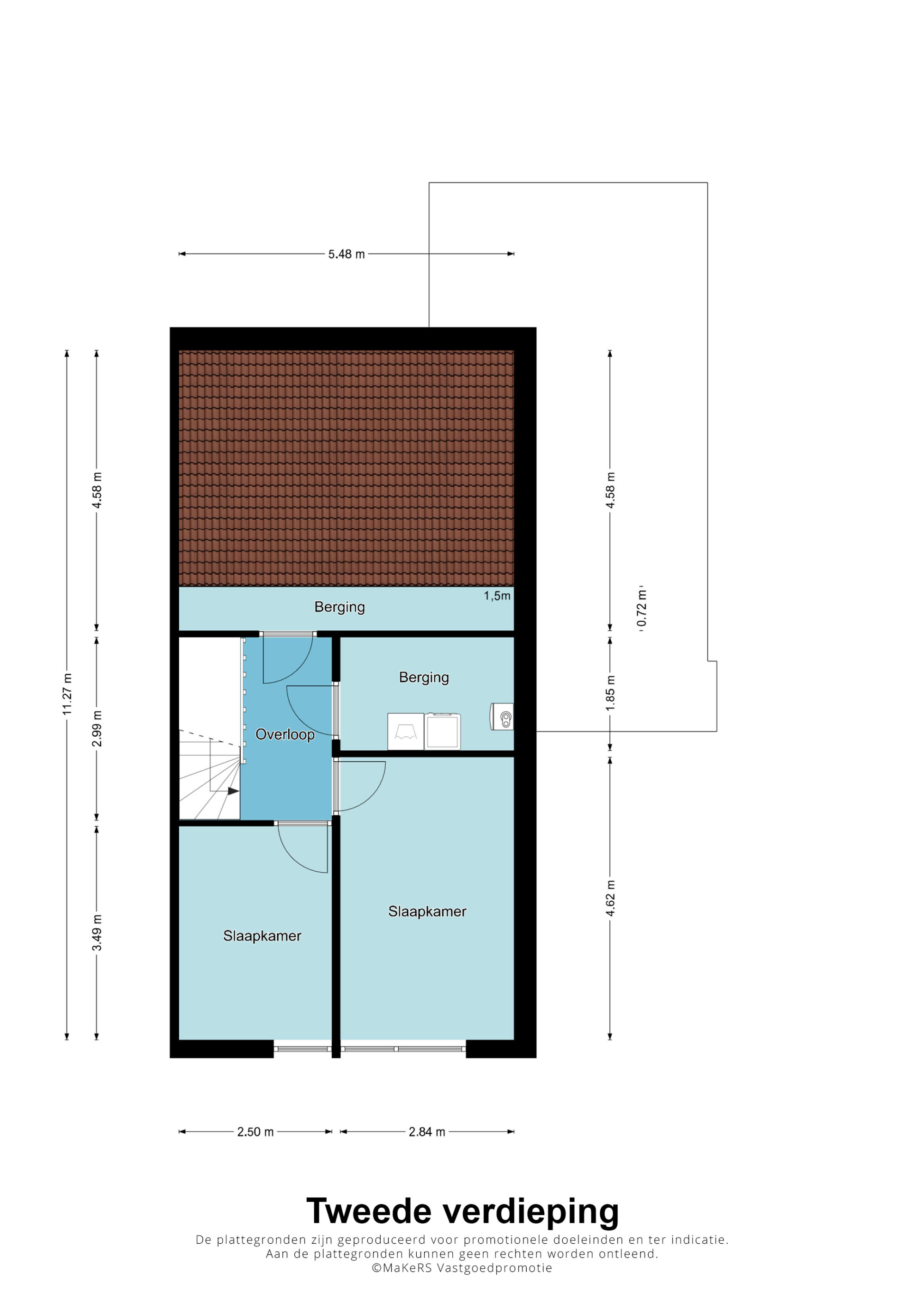
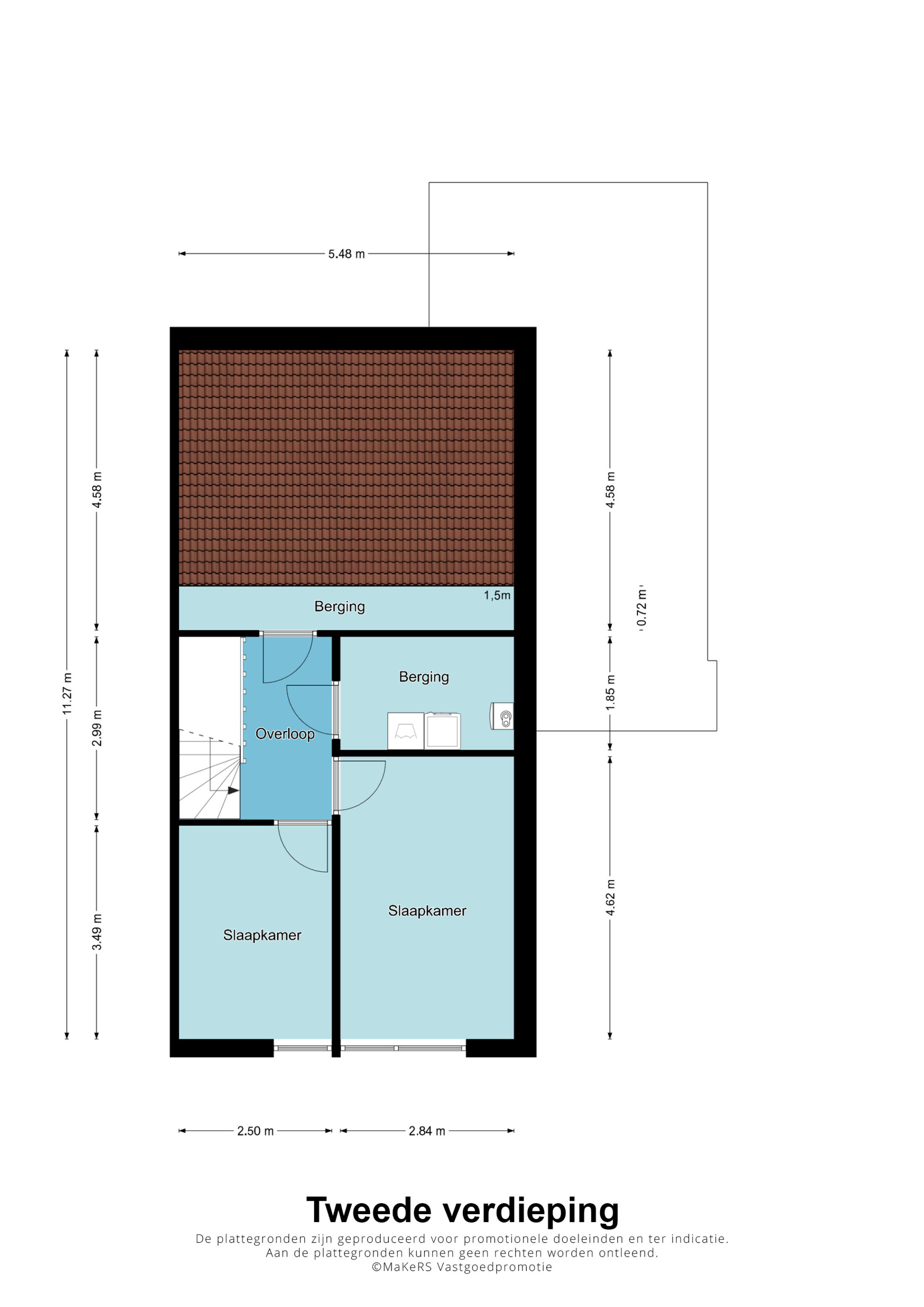
TWEEDE VERDIEPING:
Vaste trap naar de tweede verdieping: De overloop biedt toegang tot slaapkamer 4 en slaapkamer 5, een zeer grote berging onder de schuinte aan de achterzijde en een aparte wasruimte.

SLAAPKAMERS:
Ook de vierde en vijfde slaapkamer zijn, net als de overige drie, volwaardige tienerslaapkamers. Achter in deze brochure zijn de afmetingen terug te vinden. Alle slaapkamers dus ook de vierde en vijfde hebben geen schuine wanden, waardoor er een zee van ruimte ontstaat. Ideaal voor een kindrijk gezin!

TUIN:
De prachtig aangelegde tuin is bovendien zonnig gelegen op het zuiden. De geheel omheinde achtertuin van circa 13 meter diep en 9 meter breed biedt niet alleen veel ruimte, maar ook veel privacy. Direct bij de achtergevel van het huis bevindt zich een groot terras, en achterin de tuin staat een fraaie overkapping met terras en bar.

Interesse?

Voor meer informatie of het plannen van een bezichtiging helpen we je graag verder.

Heb je liever direct contact met ons team?
Deel deze woning

Kenmerken

Overdacht
Vraagprijs € 675.000
Prijs per m² € 3.835
Koopconditie Kosten koper
Status Beschikbaar
Aanvaarding In overleg
Bouw
Object type Twee onder een kapwoning
Type Twee onder een kapwoning
Soort Eengezinswoning
Bouwtype Bestaande bouw
Bouwjaar 2012
Soort dak Lessenaardak
Oppervlakten en inhoud
Wonen 176 m²
Perceel 280 m²
Inhoud 720 m²
Indeling
Aantal kamers 7
Aantal slaapkamers 5
Aantal badkamers 2
Aantal woonlagen 2
Energie
Energielabel A
Verwarming CV Ketel
Warm water Zonneboiler, Zonnecollectoren
CV Ketel
Brandstof Gas
Kadastrale gegevens
Helmond U 6600
Oppervlakte 280 m²
Eigendomssituatie Volle eigendom
Buitenruimte
Tuin Achtertuin
Oppervlakte 117 m²
Breedte 9 meter
Diepte 13 meter
Ligging tuin Zuid
Parkeergelegenheid
Soort parkeergelegenheid Openbaar parkeren, Op eigen terrein
Locatie
Adres Johanna van Heverleestraat 9
Postcode 5706 PX
Plaats Helmond
Provincie Noord-Brabant
Land Nederland

Bekijk alle woningen in Helmond

Bekijk aanbod

Niet gevonden wat je zocht?

We helpen je graag met het zoeken naar de perfecte woning voor jou!

Gratis zoekopdracht

Gratis waardebepaling

Wil je graag jouw huis verkopen in Helmond, Eindhoven, de Peel of de Kempen en ben je benieuwd wat jouw huis waard is? Ontvang binnen 5 minuten de geschatte waarde van jouw woning.

Bereken het nu
Adriaan van den Heuvel - Agrarisch - Sfeerbeeld 3