Verkocht onder voorbehoud

Klarenbeemden 46 5706 NG Helmond

124 m²wonen 212 m² perceel 4 slaapkamers Bouwjaar 2007

Omschrijving

Bent u op zoek naar een prachtige en ruime geschakelde woning met garage gelegen in de geliefde wijk Brandevoort met alle voorzieningen nabij?

Zoek dan niet verder en bezoek deze uitzonderlijke woning aan Klarenbeemden 46, een unieke kans in de zoektocht naar uw droomwoning! Graag tot binnenkort, wij heten u van harte welkom.

BIJZONDERHEDEN
– Uitstekend onderhouden geschakelde woning op een van de mooiste woonlocaties van de gewilde wijk Brandevoort;
– Omringd door alle benodigde voorzieningen binnen ‘’De Veste’’, zoals supermarkten, speciaalzaken en een N.S.-station;
– De woning beschikt over een uitbouw over de volledige breedte aan de achterzijde;
– Voorzien van de mogelijkheid om vier ruime slaapkamers te creëren;
– In 2019 is de C.V.-ketel geheel vernieuwd en is de airco geplaatst;
– Privacy biedende en op het westen gelegen achtertuin welke onderhoudsvriendelijk ingericht is.

SITUERING
Vanwege de centrale ligging in Brandevoort is deze fijne woning op korte afstand van alle benodigde voorzieningen gelegen. Het winkelcentrum van centrumgebied ‘’De Veste’’ beschikt over diverse supermarkten met overdekte ruimte parkeergelegenheid, horecagelegenheden, speciaalzaken, een drogisterij, diverse basisscholen, een middelbare school en het N.S.-station (Helmond Brandevoort) waarmee u binnen 7 minuten in het Centrum van Eindhoven uitstapt. Uitvalswegen naar Eindhoven en Helmond zijn eveneens op korte afstand van de woning gelegen. De groene ‘’Eco-Zone’’ gelegen
in het midden van Brandevoort biedt deze wijk ook een prachtige omgeving om te wandelen en te genieten van de natuur.

AANKOMST & ENTREE
Bij aankomst parkeert u uw auto’s op de ruime oprit waar u met gemak meerdere auto’s parkeert. Deze oprit grenst aan de garage welke voorzien is van elektrische overheaddeur (met afstandsbediening) en via de voordeur in de zijgevel bereiken we de entree van deze woning.

De entree is ruim, strak uitgevoerd en voorzien van modern schilderwerk welke doorgetrokken wordt in de gehele woning alsook het houtwerk welke allen in perfecte conditie zijn! De entree biedt toegang tot de modern ingerichte meterkast, toiletruimte voorzien van strak tegelwerk, een fonteintje en een wandcloset, de trapopgang richting de eerste verdieping en de toegang tot de woonkamer met open keuken aan de voorzijde.

WOONKAMER
Vanuit de fijne entree krijgen we toegang tot de bijzonder ruime woonkamer. Deze woonkamer staat in open verbinding met de dinerruimte aan de voorzijde welke beschikt over een hoge mate van natuurlijk daglichtinval! Daarbij is de woonkamer voorzien van strak stucwerk, moderne afwerking en een stijlvolle houten vloer welke de woning een prachtig natuurlijk gevoel bieden. Aan de achterzijde bevindt zich over de gehele breedte een ruime uitbouw waarin de zitruimte gerealiseerd is. De tuindeuren aan de achterzijde bieden toegang tot de op het westen gelegen en prachtig aangelegde achtertuin! Vanwege de grote oppervlakte heeft u ook ruimte om een werkplek of speelruimte in te
richten in deze fijne woonkamer.

OPEN KEUKEN
Aan de voorzijde van de woning bevindt zich de open keuken, prachtig ruim van opzet en voorzien van een hoge mate natuurlijk daglichtinval dankzij de sfeervolle raamkozijnen! De keuken is voorzien van een installatiewand, veel werkruimte en een eiland. Aan inbouwapparatuur treffen we:
– Koelkast;
– Vriezer;
– Vaatwasser;
– Oven;
– Gaskookplaat;
– Design afzuigkap.

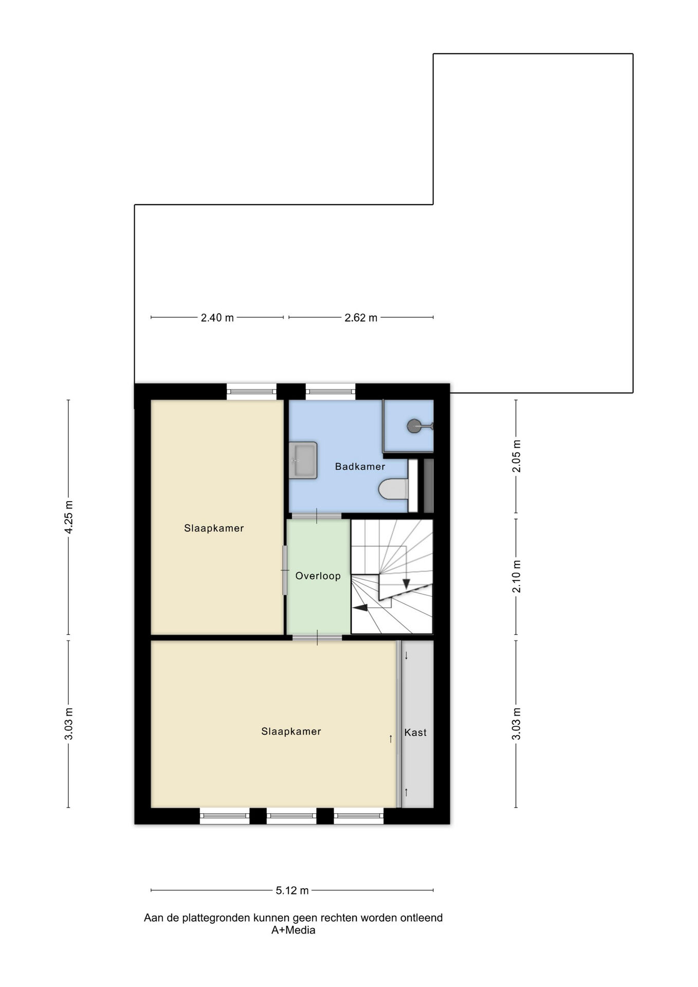
EERSTE VERDIEPING
De hoogwaardig onderhouden en strak uitgevoerde trapopgang biedt toegang tot de overloop van de eerste verdieping. Aan deze overloop zijn gelegen de eerste en tweede slaapkamer, de badkamer en de vaste trapopgang richting de tweede verdieping.

SLAAPKAMERS I & II
Over de volledige breedte van de voorzijde bevindt zich de eerste slaapkamer. Deze slaapkamer is uitzonderlijk ruim van opzet en betreft de master-bedroom. Voorzien van een oppervlakte van circa 18 m² biedt deze slaapkamer talloze mogelijkheden om uw meubilair te plaatsen. Aan de achterzijde bevindt zich de tweede slaapkamer. Deze slaapkamer is wederom prettig van formaat en beschikt over een oppervlakte van circa 9 m². Beide slaapkamers zijn voorzien van ruime daglichttoetreding en hoge plafonds. Om een goede indruk van de fijne afmetingen te verkrijgen verwijzen wij graag naar de bijgevoegde indelingsplattegronden.

BADKAMER
Aan de achterzijde van de eerste verdieping bevindt zich de badkamer. De badkamer is geheel voorzien van tegelwerk, is strak uitgevoerd en goed onderhouden. Aan sanitair beschikt de badkamer over een inloopdouche, een tweede toilet in de vorm van een wandcloset, douche en wastafelmeubel.

TWEEDE VERDIEPING
De vaste trap op de overloop van de eerste verdieping verzorgt de toegang richting de tweede verdieping. Deze tweede verdieping is ingericht in de vorm van een zolderruimte waar momenteel een thuiswerkplek gerealiseerd is, hetgeen de multifunctionaliteit van deze ruimte perfect in kaart brengt! Naast deze thuiswerkplek bevindt zich een technische-/wasruimte, hier treffen we de installaties zoals de C.V.-ketel en de WTW-installatie, tevens bevinden zich de witgoedaansluitingen in deze ruimte en heeft u de mogelijkheid uw spullen op te bergen. Boven de slaapkamers van deze verdieping beschikt de woning over meer bergruimte in de vorm van een open vliering met veel ruimte.

SLAAPKAMERS III & IV
De derde slaapkamer bevindt zich aan de voorzijde van de tweede verdieping en is wederom over de gehele breedte
gesitueerd. Deze slaapkamer beschikt over een goede mate van daglicht! Wederom een uitstekende slaapkamer. Op deze tweede verdieping bevindt zich een thuiswerkplek welke de perfecte gelegenheid biedt een vierde slaapkamer te realiseren! Om een goede indruk van de mogelijkheden van deze tweede verdieping te verkrijgen verwijzen wij graag naar de bijgevoegde indelingsplattegronden.

TUIN
Via de sfeervolle openslaande tuindeuren bereiken we het terras van deze prettige achtertuin. Deze achtertuin is gelegen op het zonnige westen en beschikt over een hoge mate van privacy dankzij de aanwezige nette beschutting alsook zijn volwassen beplanting. De achtertuin is hoogwaardig aangelegd en onderhoudsvriendelijk, waardoor u geniet van het buitenleven. Deze tuin beschikt over een fijne oppervlakte en biedt derhalve ook meerdere indelingsmogelijkheden! Vanuit de achtertuin is tevens de achterdeur van de garage toegankelijk.

GARAGE
De aan de woning grenzende garage is voorzien van zowel dak- en spouwmuurisolatie, ook beschikt de garage over een betonvloer en een oppervlakte van circa 17 m²! Een perfecte extra ruimte voor opslag van uw tuingereedschap, hobbymaterialen of fietsen. Ook bestaat de mogelijkheid om de garage bij de woonkamer te betrekken of deze in te richten als praktijk- of kantoorruimte aan huis. De elektrische overheaddeur grenzend aan de oprit verzorgt de toegang aan de voorzijde.

Helaas, dit object is al verkocht

Bekijk hieronder ons actuele aanbod

Bekijk ons aanbod

Bekijk alle woningen in Helmond

Bekijk aanbod

Niet gevonden wat je zocht?

We helpen je graag met het zoeken naar de perfecte woning voor jou!

Gratis zoekopdracht

Gratis waardebepaling

Wil je graag jouw huis verkopen in Helmond, Eindhoven, de Peel of de Kempen en ben je benieuwd wat jouw huis waard is? Ontvang binnen 5 minuten de geschatte waarde van jouw woning.

Bereken het nu
Adriaan van den Heuvel - Agrarisch - Sfeerbeeld 3