Onder bod

Kromme Haagdijk 32 5706 LM Helmond

101 m²wonen 1314 m² perceel 4 slaapkamers Bouwjaar 1935

€ 549.000 k.k.

Omschrijving

Karakteristieke vrijstaande woning met Franse kap, gelegen aan de rand van’t Hout in een groenrijke omgeving met voorzieningen dichtbij, op een royaal perceel van 1.314 m². De woning biedt een ruime eigen oprit, volop mogelijkheden voor modernisering of uitbreiding!

BIJZONDERHEDEN:
– Gelegen aan de rand van ’t Hout met een groenrijke omgeving én de dagelijkse voorzieningen kortbij;
– Royaal en diep perceel van maar liefst 1.314 m²;
– Mogelijkheden voor bouw/verbouw afhankelijk van bestemmingsplan; zelf te toetsen bij gemeente Helmond;
– Ruime eigen oprit, geschikt voor meerdere voertuigen, caravan, aanhanger of werkbus;
– Ideaal voor de handige klusser of kandidaat die wil moderniseren of zelf wil bouwen;

ALGEMEEN:
Op een prachtige en rustige locatie aan de Kromme Haagdijk in Helmond staat deze karakteristieke vrijstaande woning met Franse kap, gelegen op een royaal en diep perceel van ruim 1.300 m². De woning biedt een unieke kans voor liefhebbers van vrijstaand wonen met het gevoel van ruimte. Dankzij de vrije ligging en slechts één naastgelegen woning geniet je hier van een rustig woongevoel.

De ligging aan de rand van ’t Hout is ideaal: binnen enkele minuten sta je midden in een groenrijke omgeving, perfect voor wandel- en natuurliefhebbers. Tegelijkertijd bevinden alle dagelijkse voorzieningen zich op korte afstand, met de dorpskern van Mierlo-Hout binnen handbereik.

De woning verdient weer de nodige liefde en aandacht en is daarmee bij uitstek geschikt voor de handige klusser of de koper die droomt van het realiseren van een eigen woonwens. Ook biedt het perceel interessante mogelijkheden voor
herontwikkeling of (gedeeltelijke) zelfbouw. Kandidaten dienen deze mogelijkheden altijd zelf te toetsen aan het geldende bestemmingsplan en/of navraag te doen bij de gemeente Helmond.

ENTREE:
Via de entree betreed je de woning, waar zich de meterkast bevindt evenals de vaste trapopgang naar de eerste verdieping. Vanuit de hal is er toegang tot zowel de woonkamer als een extra
kamer op de begane grond, welke zich uitstekend leent als slaap-,
werk- of hobbyruimte.

WOONKAMER:
Vanuit de entreehal bereikt u de woonkamer, welke wordt gekenmerkt door een prettige lichtinval dankzij de grote raampartijen aan weerszijden. Deze ruimte heeft een aangenaam formaat en biedt volop mogelijkheden om geheel naar eigen smaak en woonwensen in te richten.

Daarnaast bestaat de mogelijkheid om de woonkamer verder te vergroten door de naastgelegen (slaap-)kamer op de begane grond bij de woonruimte te betrekken. Hiermee kan eenvoudig een royale en open leefruimte worden gecreëerd, passend bij de woonwensen van deze tijd.

KAMER:
Op de begane grond bevindt zich daarnaast een extra kamer, welke in gebruik is geweest als slaapkamer. Zoals eerder benoemd, biedt deze ruimte tevens de mogelijkheid om bij de woonkamer te betrekken door deze open te breken, waardoor een aanzienlijk grotere leefruimte kan worden gerealiseerd. Tot slot is er nog een praktische inbouwkast aanwezig, gesitueerd onder de vaste trap, die zorgt voor extra bergruimte.

KEUKEN:
Vanuit de woonkamer loopt u door naar de keuken, welke is gesitueerd in het aangebouwde gedeelte van de woning. Deze ruimte heeft een prettig formaat en is voorzien van een keukenopstelling over de volledige breedte aan één zijde.

De keuken biedt daarnaast volop mogelijkheden tot modernisering en herindeling. Zo is het goed denkbaar om deze ruimte bij de woonkamer te betrekken, waardoor een royale en open leefruimte ontstaat die volledig aansluit bij de woonwensen van deze tijd.

BIJKEUKEN MET SANITAIR:
Vanuit de keuken heeft u toegang tot de bijkeuken, welke is voorzien van diverse praktische en sanitaire voorzieningen. Deze ruimte doet voornamelijk dienst als functionele berg- en werkruimte, met voldoende plek voor het opslaan van huishoudelijke spullen. Daarnaast bevinden zich hier de aansluitingen voor de wasmachine en droger, evenals de opstelling van de warmtevoorzieningen. Tot slot is de begane grond hier voorzien van sanitaire voorzieningen, waaronder een separate doucheruimte en een toilet. Beide ruimtes zijn van elkaar gescheiden.

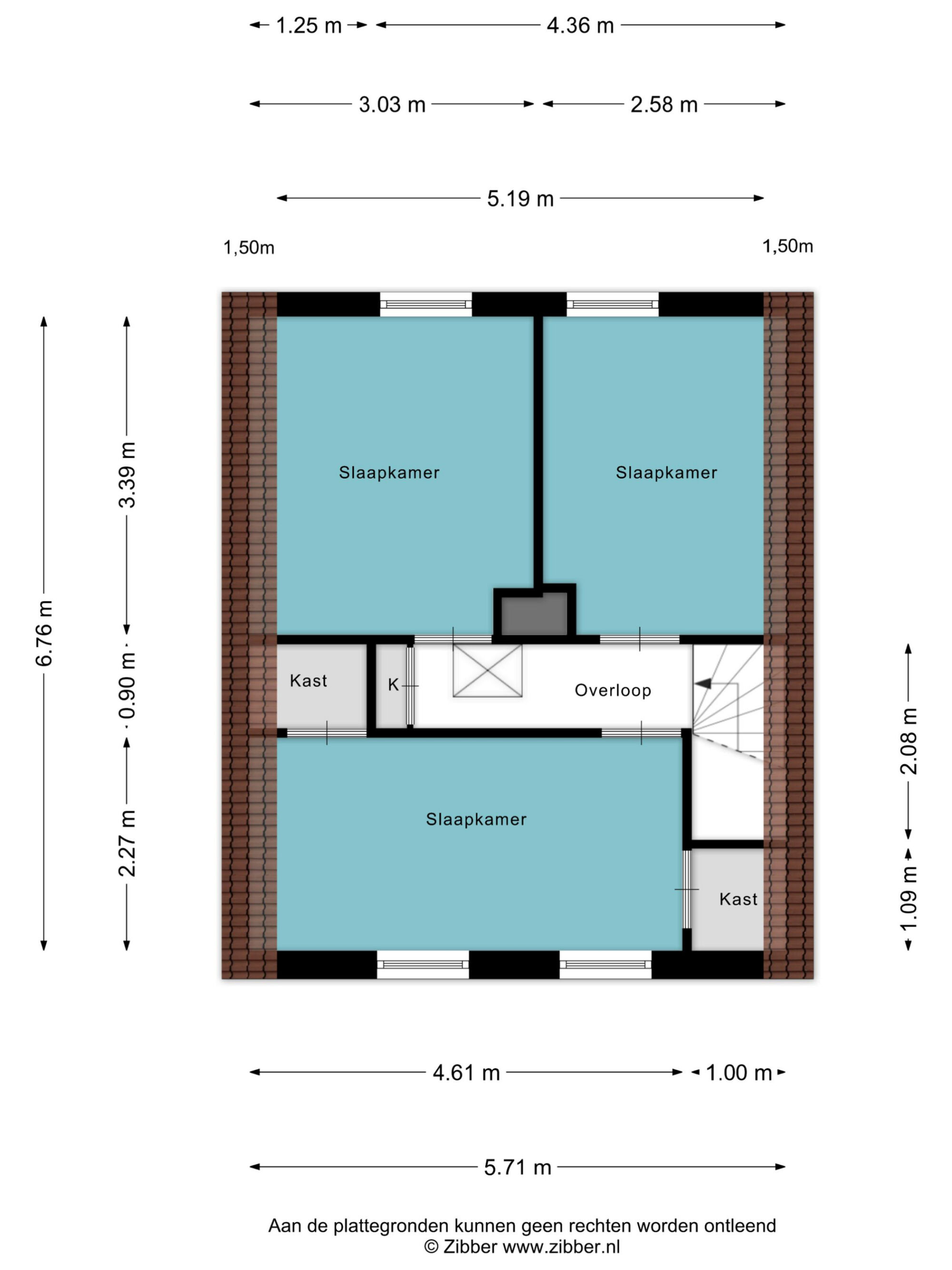
EERSTE VERDIEPING:
Via de vaste trap in de entreehal bereikt u de eerste verdieping, die bestaat uit drie volwaardige slaapkamers. Alle kamers zijn van een prima formaat en bieden voldoende ruimte om naar eigen wens in te richten. Dankzij de karakteristieke Franse kap heeft deze verdieping net wat meer stahoogte en bruikbare leefmeters. Twee van de slaapkamers beschikken over een praktische vaste kast, ideaal voor extra bergruimte.

Op de overloop is eveneens een vaste kast aanwezig, en via het vlizoluik is de opbergzolder toegankelijk, waardoor er nog extra ruimte beschikbaar is voor opslag.

TUIN:
Het absolute pluspunt van deze woning is de royale buitenruimte. Het diepe perceel geeft aan de achterzijde van de woning een rustige en vrije sfeer, waarbij volop mogelijkheden bestaan om de tuin geheel naar eigen wens en architectonisch inzicht in te richten. Het perceel is omsloten door een groene heg, waardoor de privacy volledig gewaarborgd kan blijven. Daarnaast beschikt de woning over een ruime eigen oprit naast de woning.

Op het perceel bevinden zich tevens nog twee bijgebouwen, die in de toekomst ideaal kunnen worden gebruikt of omgebouwd tot garage, schuur of extra werkruimte.

Interesse?

Voor meer informatie of het plannen van een bezichtiging helpen we je graag verder.

Heb je liever direct contact met ons team?
Deel deze woning

Kenmerken

Overdacht
Vraagprijs € 549.000
Prijs per m² € 5.436
Koopconditie Kosten koper
Status Onder bod
Aanvaarding In overleg
Bouw
Object type Vrijstaande woning
Type Vrijstaande woning
Soort Eengezinswoning
Bouwtype Bestaande bouw
Bouwjaar 1935
Soort dak Mansardedak
Oppervlakten en inhoud
Wonen 101 m²
Externe bergruimte 52 m²
Perceel 1.314 m²
Inhoud 395 m²
Indeling
Aantal kamers 4
Aantal slaapkamers 4
Aantal woonlagen 1
Energie
Energielabel G
Isolatie Dubbel glas
Verwarming CV Ketel
Warm water CV Ketel
CV Ketel
Eigendom Eigendom
Kadastrale gegevens
Helmond U 1578
Oppervlakte 1.314 m²
Eigendomssituatie Volle eigendom
Buitenruimte
Liggingen Aan rustige weg, In woonwijk
Tuin Tuin rondom
Heeft achterom Ja
Locatie
Adres Kromme Haagdijk 32
Postcode 5706 LM
Plaats Helmond
Provincie Noord-Brabant
Land Nederland

Bekijk alle woningen in Helmond

Bekijk aanbod

Niet gevonden wat je zocht?

We helpen je graag met het zoeken naar de perfecte woning voor jou!

Gratis zoekopdracht

Gratis waardebepaling

Wil je graag jouw huis verkopen in Helmond, Eindhoven, de Peel of de Kempen en ben je benieuwd wat jouw huis waard is? Ontvang binnen 5 minuten de geschatte waarde van jouw woning.

Bereken het nu
Adriaan van den Heuvel - Agrarisch - Sfeerbeeld 3