Verkocht onder voorbehoud

Melvert 6 5706 KV Helmond

203 m²wonen 444 m² perceel 4 slaapkamers Bouwjaar 2001

Omschrijving

Zoekt u een fors uitgebouwd vrijstaand woonhuis met hoogwaardige afwerkingen gelegen op fraai zonnig en groot perceel, met ruime slaapkamers? Dan is deze royale vrijstaande woning een fantastische mogelijkheid.

BIJZONDERHEDEN:
– Zeer ruime vrijstaande woning met prachtige tuin en luxe overkapping.
– De begane grond is maar liefst 6,45 meter breed en net geen 15 meter diep!
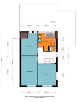
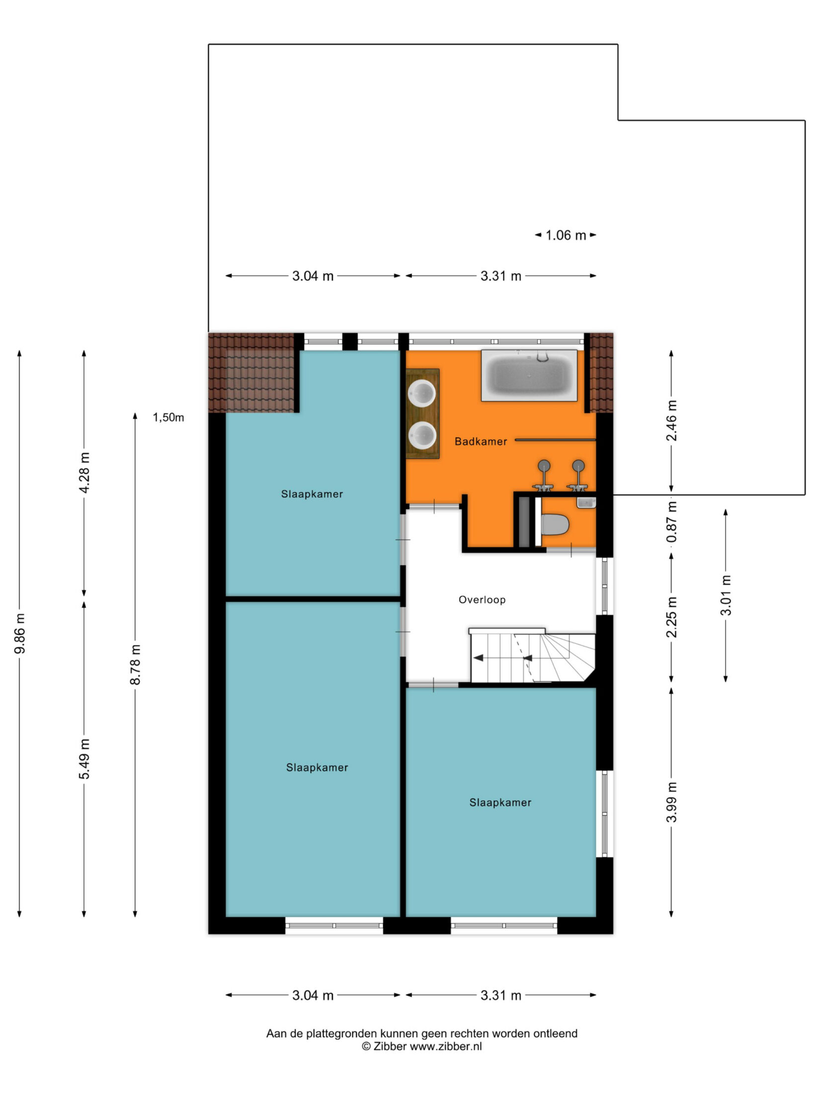
– 3 volwaardige slaapkamers op de 1e verdieping en een grote zolder waar u met gemak extra kamers kan creëren.
– De achtertuin is ca. 16 meter diep en 14 meter breed.
– Mooie woonlocatie in Brandevoort. – Met een NS-station op loopafstand, enkele bushaltes op fietsafstand, een snelfietsweg in de directe omgeving én verschillende uitvalswegen op korte afstand is deze woning uitstekend bereikbaar! Ook in de directe omgeving vindt u verschillende huisartsenpraktijken en apotheken.
– De woning is voorzien van een oud energielabel B, echter zijn er 19 zonnepanelen geplaatst in 2021. Tevens is de cv ketel in 2025 vervangen.

ALGEMEEN:
Zoekt u een fors uitgebouwd vrijstaand woonhuis met hoogwaardige afwerking en gelegen op fraai zonnig en groot perceel, met ruime slaapkamers? Dan is deze royale vrijstaande woning een fantastische mogelijkheid. De Melvert 6 ligt op een uitstekende locatie in de geliefde wijk Brandevoort. Op korte loopafstand vindt u winkelcentrum De Plaetse, met een breed en gevarieerd aanbod aan winkels en horecagelegenheden. In de directe omgeving zijn meerdere scholen en kinderopvangcentra aanwezig, wat deze plek ideaal maakt voor gezinnen.

Ook qua bereikbaarheid zit u hier perfect: het treinstation van Brandevoort ligt op slechts enkele honderden meters afstand, en zowel Eindhoven als het centrum van Helmond zijn snel te bereiken met trein, bus of auto. De wijk zelf biedt een ruime, groene woonomgeving met volop parkeergelegenheid.

BEGANE GROND
HAL & ENTREE:
Hal / entree met een moderne toiletruimte, een nette meterkasten een stijlvolle trapopgang. De hal vormt een prettige binnenkomst en biedt direct toegang tot zowel het toilet als de verdieping via de fraai afgewerkte trap.

WOONKAMER:
Vervolgens de zeer ruime woonkamer en leefkeuken. De woonkamer is aan de voorzijde gelegen en de leefkeuken aan de achterzijde. Door de breedte van de woonkamer bent u flexibel in het opstellen van uw meubels. De woonkamer en keuken worden gescheiden door een prachtige openslaande stalen deur. Zo creëert u toch wat extra privacy wanneer nodig.

De woonkamer is voorzien van een prachtige pvc vloer welke in Weense punt is gelegd. Bij dit patroon worden de planken onder een minder scherpe hoek geplaatst waardoor de punten net niet in elkaar overgaan. Dit zorgt voor een subtieler effect.

LEEFKEUKEN:
De leefkeuken is écht een gezellige ruimte om te vertoeven met vrienden en familie. Het plaatsen van een grote eettafel met 10 of 12 stoelen is geen enkel probleem. De dakkoepels zorgen voor extra licht inval buiten de achtergevel die zo goed als geheel is voorzien van glas. De openslaande deuren geven toegang tot de tuin. De keuken is voorzien van een kookeiland met AEG kookplaat. Het kookeiland voorzien verder in diverse laden en kasten en u kunt hier met 2 barkrukken aanschuiven voor de borrel of kop koffie.

De achterwand voorziet in een oven, een combi-oven/magnetron, een vaatwasser, kokend water kraan (Howat) koffiezetapparaat en een losse Amerikaanse koelkast. De lava stone vloer geeft het geheel een moderne en industriële uitstraling.

BIJKEUKEN:
Vanuit de keuken is de voormalige garage te bereiken. Deze is nu gesplitst in een bijkeuken en een berging. In de bijkeuken kunt u wassen en drogen. Tevens staat hier nog een keukenblok. De openslaande deuren aan de voorzijde geven toegang tot de inrit.

EERSTE VERDIEPING
SLAAPKAMERS:
Overloop met daaraan gelegen drie forse slaapkamers, een luxe badkamer en een moderne toiletruimte. De toiletruimte is in dezelfde stijl als de badkamer gemoderniseerd. Aan de achterzijde is een dakkapel geplaatst, waarvan de achterste slaapkamer en de badkamer ruimschoots profiteren.

BADKAMER:
De badkamer is in 2020 verbouwd en nu beschikt over een inloopdouche met 2 regendouches en een handdouche. De kranen zijn mooi weggewerkt in de muur. Verder is er nog een ligbad en een wastafelmeubel met daarop 2
moderne waskommen.

TWEEDE VERDIEPING:
De open zolder is in gebruik als ouderslaapkamer. De dakkapel en het zijraam zorgen voor veel lichtinval. De airco zorgt voor een comfortabel klimaat op deze verdieping. De Remeha cv-ketel is weggewerkt in de kast en is in 2025 nog vervangen.

TUIN:
Als u op zoek bent naar een gezellige en ruime tuin dan bent u op de Melvert 6 aan het juiste adres. De tuin is volledig op de schop gegaan. Door de locatie en ligging heeft u hier veel privacy! In het midden van de tuin is een overkapping (met extra berging) geplaatst die aan beide zijden is voorzien van glazen schuifwand. Hier kunt u heerlijk loungen onder het genot van een drankje welke u uit de ingebouwde koelkast kan pakken. Aan de achterzijde van de tuin treffen we nog een plunge pool met jetstreams en een jacuzzi aanwezig.

Helaas, dit object is al verkocht

Bekijk hieronder ons actuele aanbod

Bekijk ons aanbod

Bekijk alle woningen in Helmond

Bekijk aanbod

Niet gevonden wat je zocht?

We helpen je graag met het zoeken naar de perfecte woning voor jou!

Gratis zoekopdracht