Verkocht onder voorbehoud

Neerwal 66 5708 ZA Helmond

162 m²wonen 110 m² perceel 4 slaapkamers Bouwjaar 2001

Omschrijving

Royale herenwoning met blijvend vrij uitzicht over de eco-zone. Volledig gemoderniseerde leefkeuken en grote woonkamer met dakterras vier volwaardige slaapkamers, twee badkamers en eigen parkeerplaats!

BIJZONDERHEDEN:
– Prachtige ligging met blijvend vrij uitzicht over de eco-zone;
– Zo goed als de gehele begane grond is gemoderniseerd in 2024. Zo beschikt u nu over een super-de-luxe keuken!
– Grote woonkamer op de 1e verdieping met dakterras;
– 4 volwaardige slaapkamers en 2 badkamers!
– Eigen parkeerplaats op het binnenterrein. Hier betaald u € 20 per maand voor. Ook is er een laadpaal aanwezig;
– Mooie woonlocatie in Brandevoort. – Met een NS-station op loopafstand, enkele bushaltes op fietsafstand, een snelfietsweg in de directe omgeving én verschillende uitvalswegen op korte afstand is deze woning uitstekend bereikbaar! Ook in de directe omgeving vindt u verschillende huisartsenpraktijken en apotheken. U staat binnen 15 minuten in Eindhoven en Helmond!

ALGEMEEN:
Deze royale herenhuizen hebben een erg leuke indeling en zijn bepaald niet standaard te noemen. De begane grond is namelijk in gebruik als leefkeuken en de 1e verdieping wordt gebruikt als woonkamer. Doordat de woonkamer op de 1e verdieping is gevestigd heb je prachtig uitzicht over de eco-zone! De slaapkamers zijn allemaal goed in te delen en parkeren is geen probleem op het afgesloten binnenterrein. Kortom een speelse en ruime gezinswoning op mooie woonlocatie tegen de rand van de Veste.

BEGANE GROND
HAL & ENTREE:
De ontvangsthal is ruim. Het extra hoge plafond zorgt voor een statig gevoel. Deze ontvangsthal heeft een brede voordeur met glas-in-lood ramen en met twee hoge bovenramen. De meterkast, het gastentoilet, de trapopgang en een ruime bergkast zijn in deze hal gelegen.

LEEFKEUKEN:
Vanuit de hal komt u in de prachtige leefkeuken. Deze hele ruimte is grondig verbouwd in 2024. De keuken en kasten zijn geheel op maat gemaakt en zijn tot in de puntjes verzorgd. Het kookeiland is voorzien van een Bora-kookplaat met afzuiging en de kasten zorgen voor voldoende bergruimte. De vaste kastenwand is tot het plafond gemaakt. Hier beschikt u over een vaatwasser, koffieapparaat, combi-oven/magnetron en koelkast en vriezer. De PVC-vloer ligt in Hongaarse punt en geeft het geheel een moderne uitstraling.

EERSTE VERDIEPING
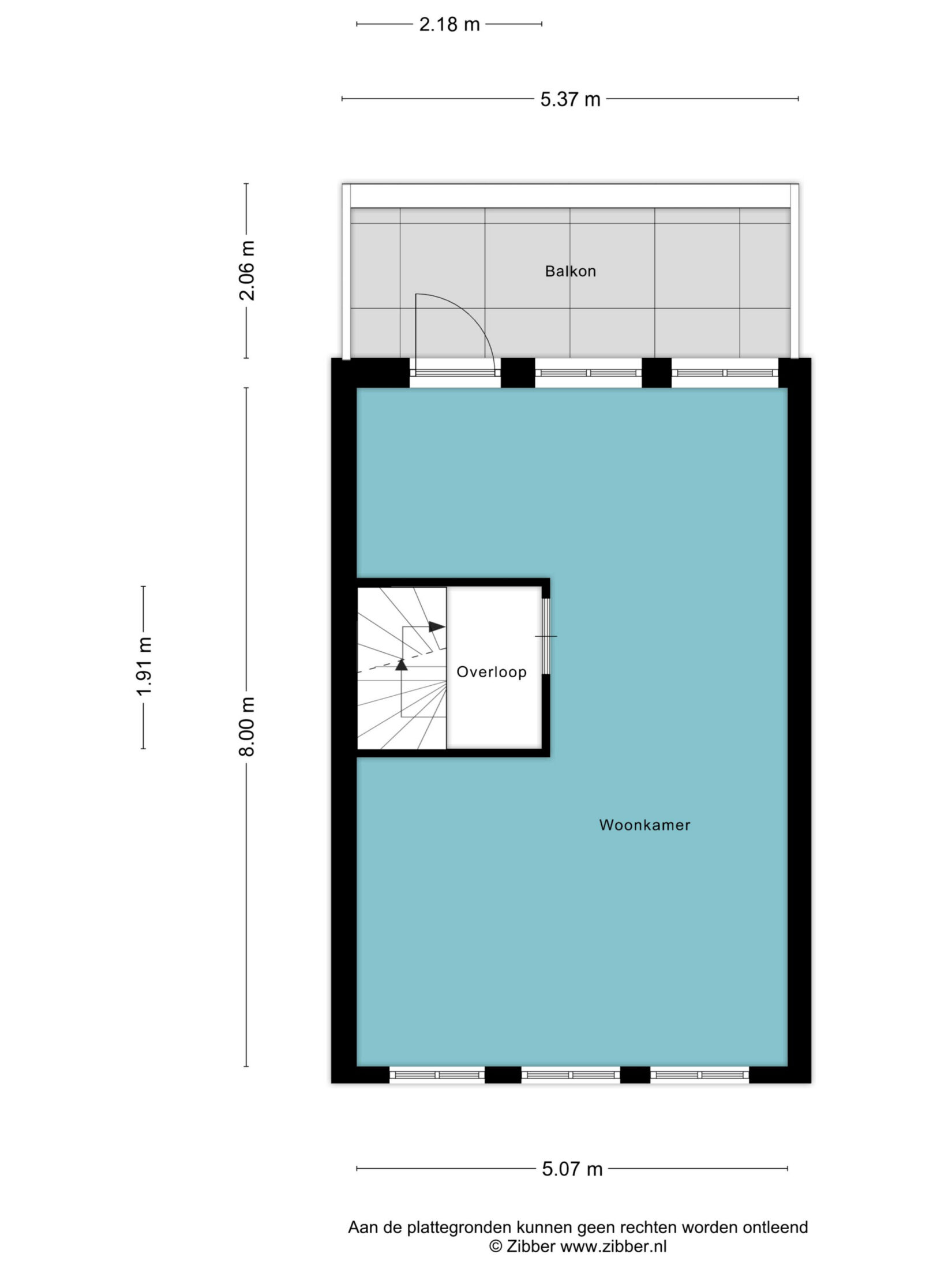
WOONKAMER:
De grote raampartij aan de voorzijde in combinatie met twee dubbele ramen en een balkondeur aan de achterzijde zorgen voor een zeer veel licht in deze ruime living. De gestuukte wanden en het gestuukte plafond versterken het gevoel van licht en ruimte. Op de vloer is massief eikenhout gelegen.

Omdat de ramen aan de voorzijde erg laag beginnen kunt u ook vanuit een zitpositie naar het mooie groen kijken aan de voorzijde. Het brede balkon aan de achterzijde geeft u de gelegenheid om ook op deze verdieping op een mooie zomerse avond buiten te gaan zitten.

TWEEDE VERDIEPING
SLAAPKAMERS:
De overloop geeft toegang tot twee van de in totaal vier slaapkamers, de lichte badkamer en de trapopgang naar de derde verdieping.

De grootste slaapkamer bevindt zich aan de voorzijde van de woning en beschikt over drie dubbele ramen, waardoor er veel natuurlijk licht binnenvalt. Aan de achterzijde ligt een tweede, eveneens ruime slaapkamer, voorzien van twee dubbele ramen en een airco voor extra comfort. Op de vloer van zowel de overloop als de slaapkamers ligt comfortabele vloerbedekking, wat voor een warme en rustige uitstraling zorgt. Daarnaast is er op zowel de tweede als de derde verdieping een airconditioningsysteem aanwezig.

BADKAMER:
In de badkamer met raam valt direct de mozaïek betegeling op. Deze betegeling geeft een toepasselijke uitstraling aan deze badkamer. Deze complete badkamer heeft een ruime douche met douchewand, een 2e toilet, een ligbad en een wastafel.

DERDE VERDIEPING:
Via de overloop komt u in de 2 slaapkamers, de 2e badkamer en de technische ruimte terecht. De wasmachine en droger staan in de 2e badkamer. De HR-ketel (Nefit 2019) en de mechanische ventilatie-unit met warmteterugwinning vindt u in een aparte bergruimte. Zowel aan de slaapkamer aan de voorzijde als ook de slaapkamer aan de achterzijde zijn een dakkapel en radiator aanwezig. Hierdoor spreken we over volwaardige slaapkamers. Via een vlizotrap is er nog een bergzolder bereikbaar.

TUIN:
Deze gezellige stadstuin biedt opvallend veel privacy, waardoor u hier in alle rust kunt genieten van het buitenleven. De tuin is verzorgd aangelegd en biedt voldoende ruimte voor zowel een loungehoek als een eettafel. De ruime stenen berging is voorzien van elektra, ideaal voor het stallen van fietsen en het opbergen van tuingereedschap. Via de hoge poort achter in de tuin bereikt u het binnenterrein, waar uw eigen parkeerplaats is gelegen.

Helaas, dit object is al verkocht

Bekijk hieronder ons actuele aanbod

Bekijk ons aanbod

Bekijk alle woningen in Helmond

Bekijk aanbod

Niet gevonden wat je zocht?

We helpen je graag met het zoeken naar de perfecte woning voor jou!

Gratis zoekopdracht