Peeleik 23A 5704 AP Helmond
169 m²wonen 672 m² perceel 4 slaapkamers Bouwjaar 1991€ 749.000 k.k.
Omschrijving
Vrijstaand wonen op toplocatie in Brouwhuis. Royale woning met slaapkamer en luxe badkamer op de begane grond. Energielabel B, zonnepanelen én airco — duurzaam en comfortabel. Ruime serre, grote garage en zonnige tuin op het zuiden.
BIJZONDERHEDEN:
– Fraaie ligging aan de rand van Brouwhuis;
– Slaapkamer en luxe badkamer op begane grond;
– Energielabel B, o.a. voorzien van 18 zonnepanelen en airco;
– Eigen oprit geschikt voor vier auto’s en voorzien van lader;
– Grote Inpandige garage met bergzolder, verwarming en water;
– Ruime en fijne serre met glazen schuifdeuren;
– Twee slaapkamers en badkamer op 1e verdieping;
– Tuin met ligging op het zuiden.
ALGEMEEN:
Wonen in Brouwhuis, met alle basisvoorzieningen in het winkelcentrum Brouwhorst op korte afstand van de woning evenals het NS treinstation. Ook het stadscentrum van Helmond en de uitvalswegen zijn snel bereikbaar. Brouwhuis beschikt over basisscholen en de middelbare scholen van Helmond zijn op fietsafstand gelegen. Daarnaast heeft de wijk een rijk verenigingsleven op het gebied van o.a. sport.
De woning is gebouwd in 1991. De woning is zeer netjes bewoond en onderhouden. De kozijnen zijn van hout met dubbele beglazing. Tijdens de bouw is de woning ook voorzien van dak-, spouw- en vloerisolatie. In 2015 is het dak voorzien van nieuwe dakpannen en dakgoten. De cv ketel is van het merk Nefit en is in 2022 geplaatst. In 2023 zijn er 18 zonnepanelen en een airco geplaatst. Hierdoor is het een zeer comfortabele en energiezuinige woning geworden.
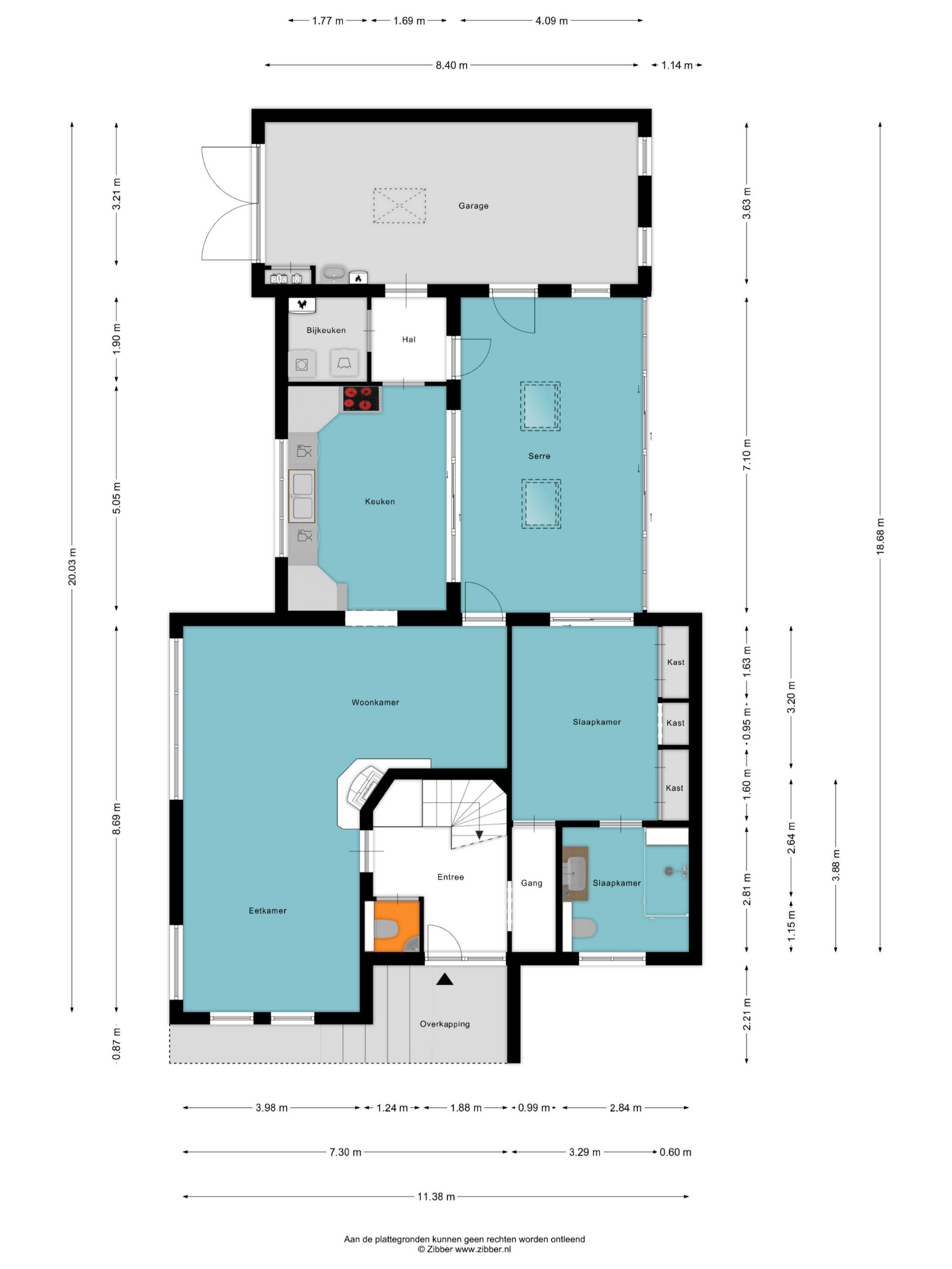
BEGANE GROND
HAL & ENTREE:
Het looppad door de voortuin brengt u naar de voordeur die toegang geeft tot de ruime hal met aparte garderobehoek. Aan deze hal grenzen de toiletruimte met toilet en fonteintje en de trapopgang naar de eerste verdieping. Tevens biedt de hal toegang het slaapgedeelte en de woonkamer. De vloer is voorzien van tegels met vloerverwarming, welke doorgelegd is naar de woonkamer, keuken en bijkeuken.
WOONKAMER:
Wat u direct zal opvallen bij het betreden van de woonkamer is de ruimte die geboden wordt. Met een grootte van circa 50 m² is deze L vorm kamer ruim te noemen, waarbij de grote raampartijen veel lichtinval verzorgen. Er is meer dan voldoende gelegenheid voor het plaatsen van zowel een zit- als eethoek. De gashaard zorgt voor sfeer en warmte in de koudere dagen.
KEUKEN:
Een leefkeuken waar u de ochtend start met een kopje koffie aan de keukentafel en ’s avonds bij het avondeten de dag samen bespreekt. De raampartij aan de voorzijde biedt uitzicht over het straatbeeld, de schuifpui biedt direct toegang tot de serre in de achtertuin.
Het keukenblok is uitgevoerd met een granieten blad met meer dan voldoende werkruimte. Naast de kastruimte is de volgende apparatuur aanwezig: inductie kookplaat, afzuigkap, koelkast en vaatwasser.
BIJKEUKEN:
Dit portaal bereikt u vanuit de keuken en biedt toegang tot de bijkeuken, garage en achtertuin. De bijkeuken is de ruimte waar u de wasmachine en de droger kunt plaatsen. Tevens zijn hier de opstellingen van de cv-ketel en unit voor de vloerverwarming geplaatst.
INPANDIGE GARAGE:
Met een grootte van ruim 30 m² is deze garage multifunctioneel in gebruik. Uiteraard kunt u uw auto en de fietsen plaatsen, maar ook als hobby- of werkruimte is deze garage meer dan geschikt. De bergzolder is middels de vlizotrap bereikbaar en biedt een ideale opslagmogelijkheid voor de spullen welke u niet dagelijks nodig heeft.
De vloer is voorzien van tegels. Aan de voorzijde bieden de dubbelen houten deuren toegang tot de oprit en de loopdeur aan de achterzijde tot de achtertuin. De meterkast is ook in de garage gelegen.
SLAAPKAMER I:
De slaapkamer is vanuit de entree / hal bereikbaar en heeft een ruime opzet. Naast de ruimte voor een tweepersoons bed bieden de vaste kasten ruimte voor de kleding. De schuifpui komt uit bij de achtertuin. De vloer is voorzien van pvc met daaronder vloerverwarming.
BADKAMER 1:
De luxe badkamer is direct vanuit de slaapkamer bereikbaar en is in 2016 geheel vernieuwd. Naast de wastafel met meubel is een ruime inloopdouche met spatschermen aanwezig en het spoeltoilet (wandcloset). De verwarming vindt plaatst middels vloerverwarming en de designradiator. De fijne raampartij biedt naast lichtinval ook de extra ventilatie mogelijkheid. Mechanische ventilatie is ook aanwezig.
EERSTE VERDIEPING:
Via de trapopgang komt u op de ruime overloop welke toegang geeft tot de twee slaapkamers, de badkamer en het balkon aan de voorzijde van de woning. Er ligt een tapijtvloerbedekking op de gehele verdieping.
SLAAPKAMER II & III:
De slaapkamers zijn redelijk gelijk aan elkaar qua oppervlakte (circa 15 m²) en bieden de gelegenheid voor het plaatsen een tweepersoons slaapkamer inrichting. De dakkappelen verzorgen een prettig lichtinval en de (inloop)kasten extra bergruimte. Op één van de slaapkamers is de vlizotrap naar de vliering bereikbaar.
BADKAMER:
Deze tweede badkamer is in neutrale kleurstelling betegeld en beschikt over een douche, toilet, wastafel, designradiator en vaste bergkast.
TUIN & SERRE:
De privacy biedende achtertuin met vrije achterom is gelegen op het zuiden en is onderhoudsvriendelijk doch sfeervol aangelegd. De fraaie serre is bereikbaar vanuit zowel de keuken, slaapkamer als garage en zorgt ervoor dat u van vroeg in het voorjaar tot laat in het najaar kunt genieten van de tuin. De lichtkoepels verzorgen extra lichtinval, ook indirect in de keuken. Achterin de tuin staat een houten tuinhuis welke ideaal is voor de opslag van de tuinspullen. De tuin is middels twee zijden met de ‘vrije achterom’ bereikbaar.
Interesse?
Voor meer informatie of het plannen van een bezichtiging helpen we je graag verder.
Heb je liever direct contact met ons team?
Deel deze woning
Kenmerken
Overdacht
| Vraagprijs | € 749.000 |
| Prijs per m² | € 4.432 |
| Koopconditie | Kosten koper |
| Status | Beschikbaar |
| Aanvaarding | In overleg |
Bouw
| Object type | Vrijstaande woning |
| Type | Vrijstaande woning |
| Soort | Eengezinswoning |
| Bouwtype | Bestaande bouw |
| Bouwjaar | 1991 |
| Soort dak | Schilddak |
Oppervlakten en inhoud
| Wonen | 169 m² |
| Gebouwgebonden buitenruimte | 43 m² |
| Externe bergruimte | 11 m² |
| Perceel | 672 m² |
| Inhoud | 836 m² |
Indeling
| Aantal kamers | 4 |
| Aantal slaapkamers | 4 |
| Aantal badkamers | 2 |
| Aantal woonlagen | 2 |
| Balkon | Ja |
| Voorzieningen | Mechanische ventilatie, Airconditioning, Schuifpui, Zonnepanelen |
Energie
| Energielabel | B |
| Isolatie | Dakisolatie, Muurisolatie, Vloerisolatie, Dubbel glas |
| Verwarming | CV Ketel, Vloerverwarming gedeeltelijk, Gashaard |
| Warm water | CV Ketel |
CV Ketel
| Brandstof | Gas |
| Bouwjaar | 2022 |
| Eigendom | Eigendom |
| Type | Nefit |
Kadastrale gegevens
| Helmond X 1576 | |
| Oppervlakte | 672 m² |
| Eigendomssituatie | Volle eigendom |
Buitenruimte
| Liggingen | In woonwijk, Vrij uitzicht |
| Tuin | Achtertuin, Voortuin, Zijtuin |
| Oppervlakte | 110 m² |
| Breedte | 20 meter |
| Diepte | 6 meter |
| Ligging tuin | Zuid |
| Heeft achterom | Ja |
Berging
| Soort | Vrijstaand hout |
Parkeergelegenheid
| Soort parkeergelegenheid | Op eigen terrein |
Locatie
| Adres | Peeleik 23A |
| Postcode | 5704 AP |
| Plaats | Helmond |
| Provincie | Noord-Brabant |
| Land | Nederland |
Open huis
| Startdatum | 2025-10-04 11:00:00 |
| Einddatum | 2025-10-04 15:00:00 |
Vergelijkbaar in de buurt
Bekijk alle woningen in Helmond
Bekijk aanbodNiet gevonden wat je zocht?
We helpen je graag met het zoeken naar de perfecte woning voor jou!
Gratis zoekopdracht