Wildenborchlaan 22 5709 RR Helmond
84 m²wonen 140 m² perceel 4 slaapkamers Bouwjaar 1998€ 405.000 k.k.
Omschrijving
Instapklare en volledig gemoderniseerde tussenwoning in het geliefde Dierdonk! Deze uitstekend onderhouden woning ligt op een rustige locatie nabij bosrand en speelveldje. Voorzien van een moderne keuken, fraaie badkamer en zonnige tuin met overkapping. Een perfecte gezinswoning op een fijne woonlocatie!
BIJZONDERHEDEN:
– Uitstekend onderhouden en volledig geïsoleerde middenwoning in Dierdonk;
– De woning is in de afgelopen jaren nagenoeg gemoderniseerd en daarom instapklaar;
– Een moderne en complete keuken en mooie badkamer zijn aanwezig;
– De woning is rustig gelegen nabij een speelveldje en de bosrand van Dierdonk;
– Zonnige tuin met berging en gezellige overkapping.
– Kortom een smaakvol gemoderniseerde woning op fijne woonlocatie!
ALGEMEEN:
Altijd willen wonen in gewild woonpark Dierdonk ? Dan is dit je kans in een betaalbare prijsklasse en instapklaar ! Maak een afspraak zodat je een goede indruk van deze fraaie woning kunt krijgen. Je woont in een moderne en ruim opgezette woonwijk, aan een brede laan met veel groen en voldoende parkeergelegenheid.
Op korte afstand vind je o.a. winkels, kinderopvang, scholen en sportvoorzieningen. De ligging maakt dat je in enkele minuten naar een uitgestrekt buitengebied wandelt, ideaal voor hondenbezitters en buitensporters! Het gezellige centrum van Helmond is gemakkelijk per fiets bereikbaar en via de uitvalswegen heb je snel toegang tot steden als Eindhoven, Den Bosch en Nijmegen.
BEGANE GROND
HAL:
Middels de keurig verzorgde voortuin is de entree van de woning bereikbaar. De hal is voorzien van de meterkast en garderobe. Op de begane grond is de woning aan zowel de voor- als achterzijde voorzien van rolluiken.
WOONKAMER:
De woonkamer is ruim van opzet en biedt voldoende ruimte voor een prettige zithoek aan de voorzijde en een eethoek aan de achterzijde welke in direct contact staat met de open keuken. In het midden van de woonkamer is de trapkast gesitueerd welke voldoende provisieruimte biedt. De gehele benedenverdieping is voorzien van een prachtige houten vloer.
KEUKEN:
De greeploze keuken is in een hoekopstelling geplaatst. De keuken is voorzien van diverse apparatuur, zoals een geïntegreerde vaatwasser, gaskookplaat, afzuigkap, combi-oven, koelkast en een spoelbak met kraan. Diverse lades en kasten zorgen voor voldoende opbergruimte. Zoals u kunt zien is het plaatsen van een grote eettafel geen enkel probleem. Hier kunt u gezellig tafelen met vrienden en familie. Vanuit de keuken is middels een deur toegang tot de achtertuin.
PORTAAL:
Een portaal in het midden van de woning geeft toegang tot de moderne toiletruimte en de trapopgang naar de eerste verdieping.
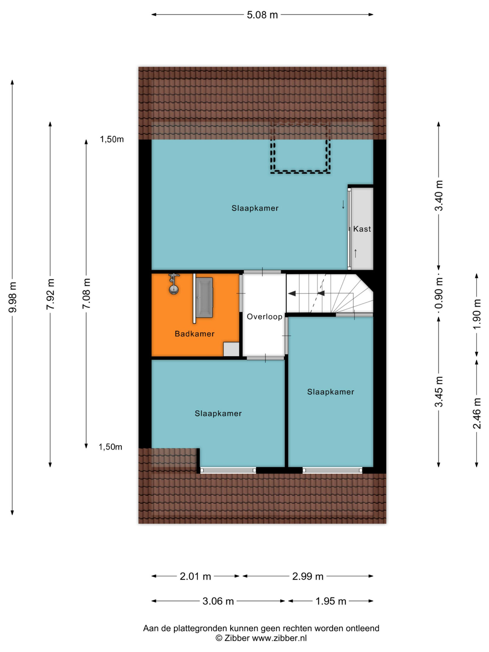
EERSTE VERDIEPING:
Vanaf de overloop zijn drie slaapkamers en de badkamer bereikbaar. De royale hoofdslaapkamer aan de achterzijde beslaat de volle breedte van de woning en beschikt over een laminaatvloer, inbouwkast en groot dakraam. De slaapkamers aan de voorkant zijn voorzien van rolluiken. Slaapkamer 2 en 3 liggen aan de voorzijde en hebben beide een dakkapel. Vanuit de derde slaapkamer leidt een vaste trap naar de tweede verdieping.
BADKAMER:
De in 2015 geheel vernieuwde badkamer is modern en praktisch ingedeeld. De badkamer is geheel in warme tinten betegeld en beschikt over een inloopdouche (met regendouche en handdouche) en wastafel met bijpassende meubels.
TWEEDE VERDIEPING:
Middels een vaste trap vanuit de 3e slaapkamer is de zolderverdieping bereikbaar. Hier bevinden zich de opstellingen voor de cv-ketel (Nefit 2011), de ventilatie-unit en de aansluitingen voor de wasapparatuur. De zolder is keurig afgewerkt en voorzien van een dakraam, vinylvloer en bergruimte onder de kapschuinte.
TUIN:
De fraai aangelegde en zonnige achtertuin, gelegen op het zuidwesten, beschikt over een overkapping die tegen de berging is geplaatst. Daarnaast is de tuin uitgerust met een brede, elektrisch bedienbare zonneluifel. Hier kunt u heerlijk zitten tijdens lange zomeravonden. We spreken hier oprecht van een gezellige tuin! Een eigen achterom geeft toegang tot het gemeenschappelijk achterpad.
Interesse?
Voor meer informatie of het plannen van een bezichtiging helpen we je graag verder.
Heb je liever direct contact met ons team?
Deel deze woning
Kenmerken
Overdacht
| Vraagprijs | € 405.000 |
| Prijs per m² | € 4.821 |
| Koopconditie | Kosten koper |
| Status | Beschikbaar |
| Aanvaarding | In overleg |
Bouw
| Object type | Tussenwoning |
| Type | Tussenwoning |
| Soort | Eengezinswoning |
| Bouwtype | Bestaande bouw |
| Bouwjaar | 1998 |
| Soort dak | Zadeldak |
Oppervlakten en inhoud
| Wonen | 84 m² |
| Gebouwgebonden buitenruimte | 5 m² |
| Externe bergruimte | 8 m² |
| Perceel | 140 m² |
| Inhoud | 333 m² |
Indeling
| Aantal kamers | 5 |
| Aantal slaapkamers | 4 |
| Aantal badkamers | 1 |
| Aantal woonlagen | 2 |
| Voorzieningen | Mechanische ventilatie, Buitenzonwering, Dakraam |
Energie
| Energielabel | A |
| Isolatie | Dakisolatie, Muurisolatie, Vloerisolatie, Dubbel glas |
| Verwarming | CV Ketel |
| Warm water | CV Ketel |
CV Ketel
| Brandstof | Gas |
| Bouwjaar | 2011 |
| Eigendom | Eigendom |
| Type | Nefit |
Kadastrale gegevens
| Helmond Q 1876 | |
| Oppervlakte | 140 m² |
| Eigendomssituatie | Volle eigendom |
Buitenruimte
| Liggingen | Aan rustige weg, In woonwijk |
| Tuin | Achtertuin, Voortuin |
| Oppervlakte | 36 m² |
| Breedte | 5 meter |
| Diepte | 7 meter |
| Ligging tuin | Zuid-west |
| Heeft achterom | Ja |
Berging
| Soort | Vrijstaand hout |
| Voorzieningen | Voorzien van elektra |
Parkeergelegenheid
| Soort parkeergelegenheid | Openbaar parkeren |
Locatie
| Adres | Wildenborchlaan 22 |
| Postcode | 5709 RR |
| Plaats | Helmond |
| Provincie | Noord-Brabant |
| Land | Nederland |
Vergelijkbaar in de buurt
Bekijk alle woningen in Helmond
Bekijk aanbodNiet gevonden wat je zocht?
We helpen je graag met het zoeken naar de perfecte woning voor jou!
Gratis zoekopdracht