Wolfstraat 138 5701 JJ Helmond
149 m²wonen 289 m² perceel 4 slaapkamers Bouwjaar 1932€ 350.000 k.k.
Omschrijving
Bent u op zoek naar een vrijstaande woning op loopafstand van het bruisende stadscentrum van Helmond welke u geheel naar eigen smaak kunt inrichten en afwerken? Zoek dan niet verder en kom zeker kijken bij deze vrijstaande woning, een unieke kans!
BIJZONDERHEDEN:
– Grote vrijstaande woning met volop kansen t.b.v. modernisatie en renovatie, een unieke kans om van dit prachtige object uw thuis te kunnen maken!;
– Deze woning biedt een karakteristieke jaren ’30 stijl en deze stijl kan behouden worden tijdens een aanstaande renovatie;
– De woning is voorzien van een grote tuin rondom, een dakterras en een garage;
– Maar liefst 4 grote slaapkamers en een ruime badkamer;
– Vrij parkeren in de straat;
– De woning wordt verkocht onder het regime ‘as is where is’;
ALGEMEEN:
Een unieke kans om deze vrijstaande woning op een goede woonlocatie, op steenworp afstand van het stadscentrum van Helmond, volledig naar eigen smaak en stijl af te werken. De woning ligt op een ruim perceel en biedt volop privacy aan de achterzijde, met grote binnenruimtes en een karakteristieke jaren ’30 bouwstijl. Dat alles op een fijne woonlocatie met volop mogelijkheden voor eigen invulling. Zo is het bovendien mogelijk om naast de woning afgesloten te parkeren.
INDELING
BEGANE GROND:
Bij aankomst parkeert u uw auto in de straat op een van de ruime parkeervakken, het creëren van een eigen oprit behoort tevens tot de mogelijkheden. Zo is het mogelijk om naast de woning (afgesloten) te parkeren. Vanuit de bestrate voortuin bereiken we de entree van deze woning.
De entree ademt sfeer en karakter welke in de gehele woning terug te vinden is, deze woning beschikt over de jaren ’30 stijl, wat voornamelijk ervaren wordt door de hoge plafonds en ruime binnenruimten! Deze entree verbindt de trapopgang, meterkast, woonkamer en keuken met elkaar.
WOONKAMER:
Over de gehele diepte bevindt zich deze fijne woonkamer welke een type doorzon betreft. Vanwege de erker aan de voorzijde geniet u van ruime daglichttoetreding in deze fijne ruimte. Vanuit de woonkamer voorzien van open haard bereiken we de dichte keuken aan de achterzijde van de woning.
KEUKEN:
Vanuit de woonkamer alsook vanuit de gang bereiken we de ruime dichte keuken welke eenvoudig bij de woonkamer te betrekken is, de keuken is ingericht en tegen twee wanden geplaatst met uizicht over het terras van de achtertuin. Aan werk- en bergruimte geen gebrek in deze grote ruimte. De kelder is vanuit de keuken toegankelijk en biedt de mogelijkheid uw provisie optimaal en koel te bewaren.
BIJKEUKEN:
Achter de keuken bevindt zich de bijkeuken, vanuit deze bijkeuken krijgen we toegang tot de achtertuin en de achtergelegen badkamer. In deze bijkeuken bevinden zich ook de witgoedaansluitingen en de opstelling van de C.V.-ketel welke in 2017 vernieuwd is.
BADKAMER:
Aan de achterzijde van de woning bevindt zich de badkamer, deze is ruim van opzet voorzien van strak tegelwerk en biedt ruimte/plek aan sanitair een wastafelmeubel, toilet en inloopdouche.
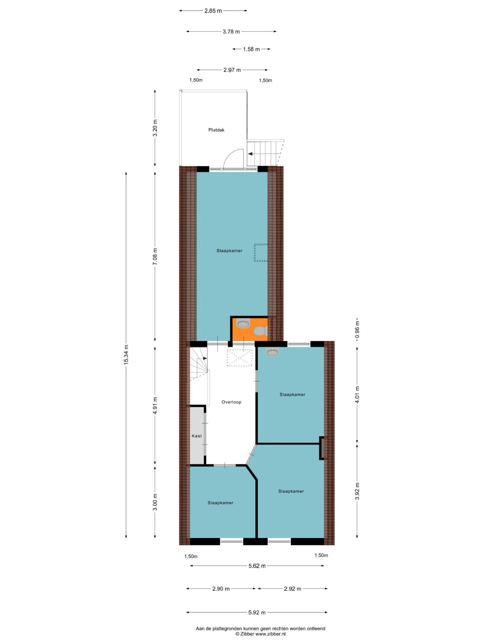
EERSTE VERDIEPING:
Via de vaste trap gelegen aan de entree van deze woning bereiken we de overloop van de eerste verdieping. Deze overloop verbindt de vier slaapkamers en de toiletruimte op de etage met elkaar.
SLAAPKAMERS:
Aan de achterzijde van de woning bevindt zich over de gehele diepte de grootste slaapkamer, dit betreft de master-bedroom en is perfect geschikt voor onderhavig doel. De slaapkamer biedt tevens toegang tot het dakterras aan de achterzijde van de woning. Verder zijn de tweede, derde en vierde slaapkamer op deze verdieping eenvoudig toegankelijk en voorzien van fijne afmetingen t.b.v. indeling en gebruiksmogelijkheden. Om een goede indruk van deze afmetingen te verkrijgen verwijzen wij graag naar de bijgevoegde indelingsplattegronden.
TOILET:
Op de verdieping, naast de master-bedroom, bevindt zich een separate toiletruimte. Voorzien van tegelwerk en staand toilet.
TWEEDE VERDIEPING:
De tweede verdieping is per vlizotrap aan de overloop van de eerste verdieping toegankelijk. De tweede verdieping betreft een bergzolder en is uitermate ruim van opzet!
TUIN:
Deze vrijstaande woning beschikt over een rondom gelegen tuin. Het plaatsen van een carport behoort tevens tot de mogelijkheden! Verder is de tuin ruim van opzet, voorzien van een ruim terras en een garage aan de achterzijde welke tevens ideaal dienen als bergingsruimte. Boven de badkamer bevindt zich een dakterras welke via de buitenzijde per trap bereikbaar is. De tuin biedt verder volop privacy en is rustig en zonnig gelegen.
Interesse?
Voor meer informatie of het plannen van een bezichtiging helpen we je graag verder.
Heb je liever direct contact met ons team?
Deel deze woning
Kenmerken
Overdacht
| Vraagprijs | € 350.000 |
| Prijs per m² | € 2.349 |
| Koopconditie | Kosten koper |
| Status | Beschikbaar |
| Aanvaarding | In overleg |
Bouw
| Object type | Vrijstaande woning |
| Type | Vrijstaande woning |
| Soort | Eengezinswoning |
| Bouwtype | Bestaande bouw |
| Bouwjaar | 1932 |
| Soort dak | Samengesteld dak |
Oppervlakten en inhoud
| Wonen | 149 m² |
| Gebouwgebonden buitenruimte | 2 m² |
| Externe bergruimte | 22 m² |
| Perceel | 289 m² |
| Inhoud | 586 m² |
Indeling
| Aantal kamers | 6 |
| Aantal slaapkamers | 4 |
| Aantal badkamers | 1 |
| Aantal woonlagen | 1 |
| Dakterras | Ja |
| Voorzieningen | Natuurlijke ventilatie |
Energie
| Energielabel | F |
| Isolatie | Grotendeels dubbelglas |
| Verwarming | CV Ketel |
| Warm water | CV Ketel |
CV Ketel
| Brandstof | Gas |
| Bouwjaar | 2017 |
| Eigendom | Eigendom |
| Type | ATAG |
Kadastrale gegevens
| Helmond E 126 | |
| Oppervlakte | 289 m² |
| Eigendomssituatie | Volle eigendom |
Buitenruimte
| Liggingen | Aan rustige weg, In woonwijk |
| Tuin | Achtertuin, Voortuin |
| Oppervlakte | 167 m² |
| Breedte | 9 meter |
| Diepte | 30 meter |
| Ligging tuin | Zuid-oost |
| Heeft achterom | Ja |
Parkeergelegenheid
| Soort parkeergelegenheid | Openbaar parkeren, Op eigen terrein, Op afgesloten terrein |
Locatie
| Adres | Wolfstraat 138 |
| Postcode | 5701 JJ |
| Plaats | Helmond |
| Provincie | Noord-Brabant |
| Land | Nederland |
Vergelijkbaar in de buurt
Bekijk alle woningen in Helmond
Bekijk aanbodNiet gevonden wat je zocht?
We helpen je graag met het zoeken naar de perfecte woning voor jou!
Gratis zoekopdracht