Kattevlaas 7 5763 PE Milheeze
20.570 m² Overig agrarisch€ 1.395.000 k.k.
Omschrijving
Bent u op zoek naar een locatie waar u uw droom kunt realiseren als paardenliefhebber? Zoek dan niet verder! In het buitengebied van Milheeze bieden wij u deze prachtige woonboerderij met bijgebouwen aan!
De woning is gelegen op een perceel van ca. 02,05.70 ha en biedt ruimte voor onder andere het ontwikkelen van een paardenhouderij.
BIJZONDERHEDEN
– Er is een tijdelijke vergunning (tot 2034) aanwezig ten behoeve van statische opslag.
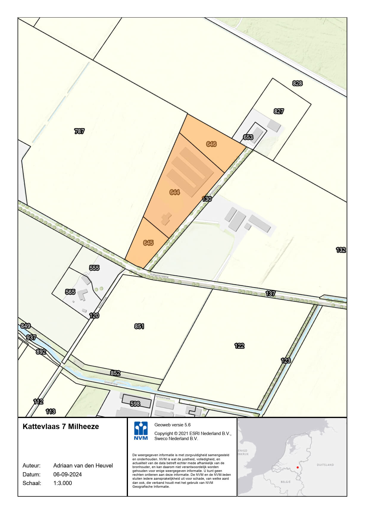
– De woning ligt aan een doodlopende straat. Dit betekent dat er alleen bestemmingsverkeer langs komt. Het is dus rustig en landelijk wonen.
– Op de locatie rust nog een agrarische bestemming met milieuvergunning voor het houden van vee. Onder voorwaarden kan deze omgezet worden in wonen, kleinschalige bedrijvigheid dan wel paardenhouderij.
– Aan de voorzijde van de woning ligt de dierenweide. Dit zorgt voor een blijvend vrij uitzicht.
– Door de erfbeplanting worden de woning en de bedrijfsgebouwen gescheiden.
ALGEMEEN
De woning is gelegen op een ruim bemeten perceel en beschikt over multifunctionele agrarische bedrijfsgebouwen welke zich perfect lenen voor het houden van uw eigen paarden aan huis!
De bedrijfsgebouwen mogen tijdelijk gebruikt worden voor statische opslag.
Wilt u deze plek met eigen ogen zien en ontdekken hoe het is om uw paarden aan huis te hebben in een mooie, rustige omgeving? Maak dan snel een afspraak voor een bezichtiging
LIGGING EN BEREIKBAARHEID
Het object is gelegen in buurtschap “De Klef” ten Noordoosten van Milheeze dichtbij natuurgebied de “Stippelberg”, met veel wandel- en fietsmogelijkheden en een golfbaan.
Milheeze is een sfeervol dorp gelegen in de provincie Noord-Brabant. Het dorp staat bekend om zijn rustige en landelijke karakter. Milheeze is een heerlijke plek om te wandelen of te fietsen, ook zijn er diverse paarden wandelroutes beschikbaar. Met zijn historische gebouwen en vriendelijke gemeenschap is Milheeze zeker een plek voor iedereen die op zoek is naar een stukje authentieke charme.
INDELING
BEGANE GROND
Middels de voordeur komt u in de hal welke is voorzien van een toiletruimte met urinoir, meterkast, garderobe en trapopgang naar de eerste verdieping.
Vanuit de hal is de royale woonkamer bereikbaar.
WOONKAMER
Vanuit de hal bereikt u de royale L-vormige woonkamer welke plaats biedt voor een ruime zit- en eethoek.
De woonkamer is voorzien van een schuifpui, natuurstenen vloer, sierlijsten, ruime erker en een gashaard. Door de grote ramen en de schuifpui is er een uniek vrij uitzicht over de tuin en naastgelegen landerijen.
KEUKEN
Direct vanuit de woonkamer is er toegang tot de ruime woonkeuken. De tegelvloer, welke ook is gelegen in de woonkamer, is in zijn geheel doorgetrokken in de keuken. De keuken is geplaatst in hoekopstelling en is voorzien van de volgende apparatuur: hogedruk stoomoven, oven, vaatwasser, koelkast, inductiekookplaat, 1,5 spoelbak met Quooker.
Aangrenzend aan de keuken is de tuinkamer aanwezig waar u tot in de late avonduren met vrienden en familie culinair kunt genieten van de ondergaande zon maar ook van het wild dat in de schemering te voorschijn komt.
Tevens zijn vanuit de keuken de extra “tv”kamer, royale stahoge kelder en het kantoor bereikbaar.
PORTAAL, WASRUIMTE EN TOILET
Het portaal geeft toegang tot de wasruimte (welke is voorzien van witgoedaansluitingen) met uitstortgootsteen en het toilet met urinoir en fonteintje.
In het portaal bevindt zich ook een bergkast met de verdeler voor de vloerverwarming.
INPANDIGE GARAGE
De inpandige garage is voorzien van elektriciteit, een tegelvloer en elektrische overheaddeur. Tevens bevindt zich in de garage het centraal stofzuigsysteem.
1E VERDIEPING
Vanuit de hal is er middels de vaste trap toegang tot de eerste verdieping. De overloop biedt toegang tot 4 slaapkamers, een toiletruimte en een badkamer.
De overloop en de slaapkamers zijn allen voorzien van een laminaatvloer. De masterbedroom beschikt over een badkamer ensuite en inbouwkasten.
BADKAMER
De badkamer is bereikbaar vanuit de masterbedroom en de overloop. Deze is voorzien van een ligbad, douche, dubbele wastafel en vloerverwarming.
Tevens is de aparte toiletruimte ook voorzien van vloerverwarming.
ZOLDER
Op de 1e verdieping is een zolderruimte beschikbaar. Deze ruimte biedt de mogelijkheid om ingericht te worden als extra slaapkamer. Tevens bevindt zich hier de cv-ruimte (ATAG 2018) en mechanische ventilatie.
Op de overloop is een vlizotrap aanwezig naar de zolder.
TUIN EN BUITENVOORZIENINGEN
De ruime tuin biedt tal van mogelijkheden en een weids uitzicht over landerijen en natuur. Door het geplaatste terras is het mogelijk om extra lang van het buitenleven te genieten!
Ook zijn er twee aparte dierenweides aanwezig voor het houden van hobbydieren.
Tevens is er een beregeningsinstallatie aanwezig.
VARKENS- EN PLUIMVEESTALLEN
De stallen, met een gezamenlijke oppervlakte van ca. 2.900 m², zijn in spouwmetselwerk opgetrokken, voorzien van stalen spanten en gedekt met asbesthoudende golfplaten. De twee
voormalige pluimveestallen zijn voorzien van een vlakke betonvloer. De voormalige varkensstal is voorzien van een betonroostervloer waaronder een mestput aanwezig is.
De royale gebouwen bieden dan ook de mogelijkheid om naar eigen inzicht ingedeeld te worden. Het realiseren van diverse stallen en andere paardenbenodigdheden behoort dan ook tot de mogelijkheden.
Aan de voorzijde van de voormalige varkensstal is inpandig een noodwoning aanwezig welke gebruikt kan worden als kantoor, kantine of B&B.
Op de stallen rust een ruime milieu en natuurbeschermingswetvergunning waardoor het ontwikkelen van een paardenhouderij tot de mogelijkheden behoort. De stallen kunnen eventueel ook gebruikt worden als statische opslag. Op deze manier behoort het combineren van wonen en werk aan huis tot een van de vele mogelijkheden.
Door de drie separate inritten naar de bedrijfsgebouwen is het verhuren van de stallen mogelijk zonder dat er overlast wordt veroorzaakt.
Voor de nieuwe stal is een vergunning verleend, ook is het mogelijk om een herontwikkeling op de locatie te verwezenlijken.
BESTEMMING
Het object is gelegen in het bestemmingsplan “Gemert-Bakel Buitengebied 2017” en heeft
hierin de bestemming: Agrarisch – Agrarisch bedrijf
Met aanduiding:
– Functieaanduiding; intensieve veehouderij
– Gebiedsaanduiding; luchtvaartverkeerzone – ihcs
– Gebiedsaanduiding; overige zone – beperkingen veehouderij
– Gebiedsaanduiding; geluidzone – ke zonering
– Gebiedsaanduiding; luchtvaartverkeerzone – ihcs
– Gebiedsaanduiding; geluidzone – industrie
De locatie is voorzien van een tijdelijke vergunning voor statische opslag.
Voor meer informatie verwijzen wij u door naar de gemeente Gemert-Bakel.
Interesse?
Voor meer informatie of het plannen van een bezichtiging helpen we je graag verder.
Heb je liever direct contact met ons A&LV team?
Delen
Kenmerken
Overdacht
| Vraagprijs | € 1.395.000 |
| Koopconditie | Kosten koper |
| Status | Beschikbaar |
| Aanvaarding | In overleg |
Onderneming
| Type | Overig agrarisch |
Oppervlakte
| Oppervlakte | 20.570 m² |
Bouw
| Bouwtype | Bestaande bouw |
Kadastrale gegevens
| Bakel en Milheeze S 644 | |
| Oppervlakte | 12.090 m² |
| Eigendomssituatie | Geheel perceel |
| Bakel en Milheeze S 645 | |
| Oppervlakte | 3.410 m² |
| Eigendomssituatie | Geheel perceel |
| Bakel en Milheeze S 646 | |
| Oppervlakte | 5.070 m² |
| Eigendomssituatie | Geheel perceel |
Locatie
| Adres | Kattevlaas 7 |
| Postcode | 5763 PE |
| Plaats | Milheeze |
| Land | Nederland |