Foto's 12

Wintelresedijk 0 5507 PP Veldhoven

8.990 m² Cultuurgrond

€ 120.000 k.k.

Omschrijving

TE KOOP
Perceel cultuurgrond gelegen aan de Wintelresedijk ong. te Veldhoven met een grootte van 0,89.90 ha.

LIGGING EN BEREIKBAARHEID
Het kadastrale perceel is gelegen in het buitengebied van Veldhoven aan de Wintelresedijk, direct achter Zoo Veldhoven.
Het perceel is daarbij goed bereikbaar via een semiverharde zandweg die aansluit op zowel de Kleine Vliet/Hoogeind als de Kerkheide.

KADASTER
Het perceel is kadastraal bekend als gemeente Veldhoven
Sectie L, nummer 73, met een grootte van 0,89.90 ha.

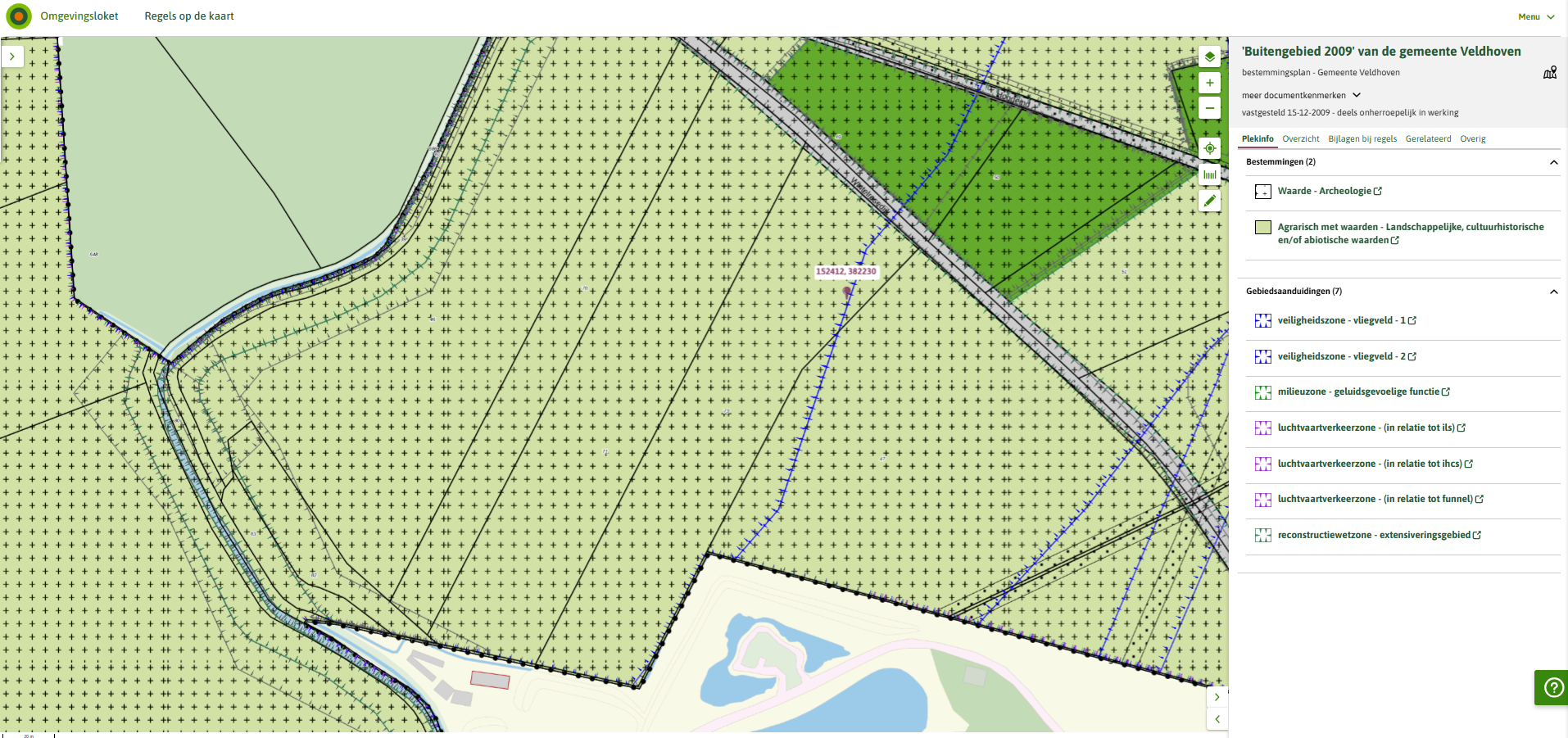
BESTEMMINGSPLAN
Het perceel is gelegen in het bestemmingsplan “‘Buitengebied 2009’ van de gemeente Veldhoven” en is vastgesteld door de Raad van gemeente Veldhoven 15 december 2009. Identificatie: NL.IMRO.0861.041100BGEBIED2009-0402

Met aanduiding:
– Waarde – Archeologie
– Gebiedsaanduiding: veiligheidszone – vliegveld – 1 & 2
– Gebiedsaanduiding: milieuzone – geluidsgevoelige functie
– Gebiedsaanduiding: luchtvaartverkeerzone – (in relatie tot ils)
– Gebiedsaanduiding: luchtvaartverkeerzone – (in relatie tot ihcs)
– Gebiedsaanduiding: luchtvaartverkeerzone – (in relatie tot funnel)
– Gebiedsaanduiding: reconstructiewetzone – extensiveringsgebied

&

Het perceel is gelegen in het bestemmingsplan “Buitengebied 2009, 1e herziening” en is vastgesteld door de Raad van gemeente Veldhoven 11 februari 2014. Identificatie: NL.IMRO.0861.041101BGEBIED2009-0402
– Gebiedsaanduiding: overige zone – groenblauwe mantel
– Gebiedsaanduiding: vrijwaringszone – radarverstoringsgebied

Per 1 januari 2024 is de Omgevingswet in werking getreden. Bij de inwerkingtreding van de Omgevingswet heeft elke gemeente (voortaan) 1 omgevingsplan van rechtswege voor haar grondgebied. Dit omgevingsplan, met een tijdelijk deel, zet de gemeente stapsgewijs om tot een volledig omgevingsplan. In het tijdelijk omgevingsplan zijn de ruimtelijke regels uit bestaande instrumenten van de wet op ruimtelijk ordening (Wro) opgenomen. Voor zover de gemeente nog geen volledig wijzigingsplan heeft vastgesteld gelden op de gemeentelijk niveau de regels van het geldende bestemmingsplan.

De gemeente waarin het perceel is gelegen heeft geen volledig wijzigingsplan, zodat voor de regels met betrekking tot het gebruik van de grond wordt uitgegaan van het/de laatst vigerende bestemmingsplan(nen).

Disclaimer: er bestaat een kans dat de omzetting en het doorlinken van documenten en regels van vóór 1 januari 2024 naar het Omgevingsloket omissie(s) vertoont/vertonen. De makelaar heeft hierop géén controle uitgeoefend.

BIJZONDERHEDEN
– Aanvaarding in overleg.

– Oplevering zal zijn vrij van pacht en huur, in de huidige staat.

– De perceelsgrenzen zijn te zien middels een stalen paal en ondiepe greppel.

– Aan de achterzijde van het perceel tegen Zoo Veldhoven aan is een sloot gelegen.

– Bouwplan:
2023: mais
2024: mais
2025: mais
2026: gras

– De mestplaatsingsruimte voor 2026 komt ten goede van koper.

– Koper wordt geacht zichzelf op de hoogte te hebben gesteld betreffende het 7e en eventueel aankomende 8e actieprogramma nitraatrichtlijn.

– Alle hierbij vermelde gegevens zijn naar beste kennis en wetenschap en te goeder trouw door ons weergegeven. Mocht nadien blijken dat er afwijkingen zijn, dan kan men zich hierop niet beroepen. Aan de inhoud van deze documentatie kunnen derhalve geen rechten worden ontleend.

Interesse?

Voor meer informatie of het plannen van een bezichtiging helpen we je graag verder.

Heb je liever direct contact met ons A&LV team?
Delen

Kenmerken

Overdacht
€ 120.000
Koopconditie Kosten koper
Status Beschikbaar
Aanvaarding In overleg
Onderneming
Type Cultuurgrond
Oppervlakte
Oppervlakte 8.990 m²
Bouw
Bouwtype N.v.t.
Kadastrale gegevens
Veldhoven L 73
Oppervlakte 8.990 m²
Eigendomssituatie Geheel perceel
Locatie
Adres Wintelresedijk 0
Postcode 5507 PP
Plaats Veldhoven
Land Nederland

Bekijk alle A&LV objecten in Veldhoven

Bekijk aanbod