Blauwstraat 4 5845 EK Sint Anthonis

495 m² bedrijfshal Bouwjaar 1985

Prijs op aanvraag

Omschrijving

ALGEMEEN
Opslag op agrarische bedrijfslocatie in ombouw.

PERSPECTIEVEN
Momenteel is het bedrijf met ca 2.750 m2 opstallen ingericht voor vleeskalveren. Met complete vergunningen voor 2 extra stallen en doorgroei naar ca 1.400 stuks rundvee. Herbestemming naar overige agrarisch (verwante) activiteiten behoort tot de mogelijkheden. Net als verhuur voor statische opslag (waarvoor inmiddels enkele afdelingen voor zijn aangepast).

Ligging
Het object is gelegen op een goed bereikbare locatie in het overgangsgebied tussen Sint Anthonis en Oploo. In een omgeving met nog enkele boerderijen, maar steeds meer burgers en buitenlui. Op slechts 100 m afstand van N272.

Bereikbaarheid
Het object is uitstekend ontsloten aan Provinciale weg N272 van Boxmeer naar Gemert en Eindhoven. Op minder dan 5 km van de snelweg A73 Venlo – Nijmegen. Vanuit alle windrichtingen goed bereikbaar dus.

Bedrijfsgebouwen: l x b opp. Dak
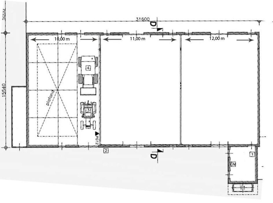
– Hal 1989: 31,6 x 15,5 m 520 m2
– Hal 2008: 35,5 x 18,6 m 660 m2 Asbestvrij
– Stal midden: 28 x 17 m 475 m2 2/3 Asbestvrij
– Ligboxenstal: 50 x 15 m 750 m2 1/3 Asbestvrij
– Grondstofschuur: 20 x 15 m 300 m2 Asbestvrij
– Diverse uitbouwen (3): 100 m2
TOTAAL: Ca. 2.750 m2 opstallen
?
Korte omschrijvig opslagruimten
Hal 1989 met 3 afdelingen. Toegangsdeuren ca 3.50 m hoog.
1e afdeling 150 m² (units vanaf 50 m²)
2e afdeling 165 m²
3e afdeling 180 m²
Oppervlakte: 495 m²

Hal 2008 aan de weg, met 3 afdelingen. Toegangsdeuren ca 4,0 m hoog.
2 x afdeling 18 x 10 m (180 m2)
1 afdeling 18 x 16 m (288 m2)
Oppervlakte: 660 m²

Voorzieningen Hal 1989:
Schuifdeuren afm b x h : 2,65 m. x 3,40 m. (optioneel is een afdeling beschikbaar met 4,0 m inrijhoogte)
Muurplaathoogte ca. 3,50 m. en 2,50 m. (achtergevel)
Nokhoogte ca. 5,80 m.
Voorzien van elektriciteit en verlichting
Lichtstraten in dakconstructie
Bereikbaar via inrit en erf
Binnenwanden schoonwerk kalkzandsteen, tot 1,5 m. stucwerk
Vloer bestaande uit beton (boven een mestkelder)
Optioneel is water beschikbaar

Aanvaarding
In overleg, doch op korte termijn mogelijk

Bestemming
Ter plaatse geldt een agrarische bestemming.

Het object is geschikt voor opslagdoeleinden of agrarisch aanverwante activiteiten.

Huurtermijn
Huurperiode van minimaal één jaar.

Huurprijs
Vanaf €25,= per m² per jaar (inclusief beperkt gebruik elektra)

Servicekosten
Nader te betalen verrekenbaar voorschot v.w.b. levering electriciteit en water.

Huurbetaling
De huurbetaling per maand, dient bij vooruitbetaling te worden voldaan.

Zekerheidsstelling
Borg ter grootte van drie maanden huur inclusief BTW.

Huurindexatie
De huurprijs zal jaarlijks, voor het eerst één jaar na de ingangsdatum van de overeenkomst
worden aangepast op basis van het consumentenindexcijfer (CPI) reeks CPI-Alle Huishoudens

(basisjaar 2006 = 100) gepubliceerd door het Centraal Bureau voor de Statistiek.

Opleveringsniveau
In de huidige staat.

Huurovereenkomst
ROZ-model (Raad voor Onroerende Zaken), feb 2015, huurovereenkomst kantoorruimte en
andere bedrijfsruimte in de zin van artikel 7:23oa BW, zoals gehanteerd door de
Nederlandse Vereniging van Makelaars in onroerend goed (NVM).

Voorbehoud
Een en ander geschiedt onder aanvaarding en uitdrukkelijk voorbehoud goedkeuring
opdrachtgever.

Omzetbelasting
Over de huurprijs wordt omzetbelasting in rekening gebracht.

Adriaan van den Heuvel
Interesse?

Voor meer informatie of het plannen van een bezichtiging helpt Eric je graag verder.

Heb je liever direct contact met Eric?
Delen

Kenmerken

Overdacht
Huurprijs Prijs op aanvraag
Status Beschikbaar
Aanvaarding In overleg
Bouw
Type Bedrijfsruimte
Bouwtype Bestaande bouw
Bouwjaar 1985
Oppervlakten
Oppervlakte bedrijfshal 495 m²
Kadastrale gegevens
Oploo I 1107
Oppervlakte 7.500 m²
Locatie
Adres Blauwstraat 4
Postcode 5845 EK
Plaats Sint Anthonis
Provincie Noord-Brabant
Land Nederland

Bekijk alle BOG objecten in Sint Anthonis

Bekijk aanbod

Op zoek naar het perfecte pand voor jouw onderneming of belegging?

Als ondernemer of belegger is het vinden van het juiste pand essentieel voor het succes van je bedrijf of investering. Of je nu een winkelruimte, kantoor, opslagruimte of een commercieel pand zoekt, het proces kan overweldigend zijn. Maar geen zorgen, wij helpen je graag bij elke stap.

Gratis zoekopdracht
Bedrijfspand-verhuren-wetten-en-regels