Wethouder den Oudenstraat 12 5706 ST Helmond

118 m² bedrijfshal Bouwjaar 2001

€ 225.000 k.k.

Omschrijving

TE KOOP

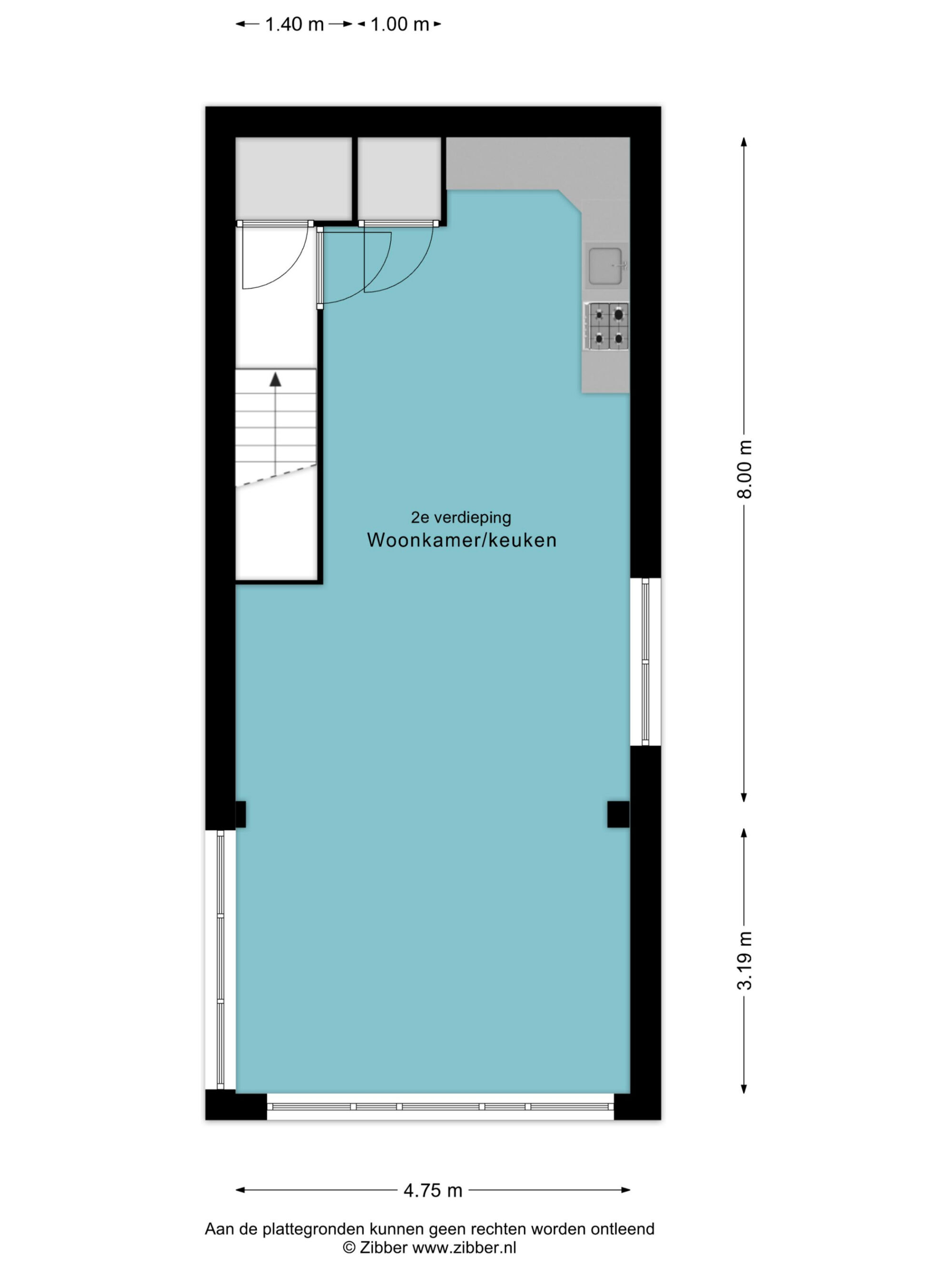
KEURIG ONDERHOUDEN MAISONNETTE GELEGEN OP DE EERSTE EN TWEE VERDIEPING. DE BERGING IS OP DE BEGANE GROND GESITUEERD.

LET OP! BESTEMD ALS BEDRIJF IN DE MILIEUCATEGORIEËN 1,2 en 3, DUS HET BETREFT HIER GEEN WOONBESTEMMING.

BEREIKBAARHEID
De locatie aan Wethouder den Oudenlaan 12 in Helmond is uitstekend bereikbaar, zowel met de auto als met het openbaar vervoer. Dankzij de gunstige ligging nabij uitvalswegen is er een snelle aansluiting op de N279 en de A67, waardoor omliggende steden zoals Eindhoven, Venlo en Weert eenvoudig te bereiken zijn.
Ook met het openbaar vervoer is de locatie goed ontsloten. In de directe omgeving bevinden zich bushaltes met regelmatige verbindingen naar onder andere het centrum van Helmond en het centraal station. Vanaf station Helmond Centraal is de locatie binnen korte tijd bereikbaar per bus of fiets.
Daarnaast zijn er in de omgeving voldoende parkeermogelijkheden aanwezig, wat zorgt voor extra gemak voor bezoekers en gebruikers van de locatie.

OPPERVLAKTE
Woonoppervlakte: circa 118m² (incl. berging).

KADASTRALE GEGEVENS:
Gemeente: Helmond
Sectie: H
Nummers: 1546 A2
Grootte: 127 m².

BESTEMMING:
Ter plaatse geldt het bestemmingsplan:
Helmond West – Houtsdonk

Het object heeft hierin de bestemming:
Bedrijf.

Functieaanduiding:
Specifieke vorm van bedrijf -3:

Binnen deze bestemming is toegestaan:
– Bedrijven in de categorieën 1, 2 en 3 van de Staat van Bedrijfsactiviteiten, inclusief de bij de bedrijven behorende en daaraan ondergeschikte kantoren.

ENERGIELABEL:
Energielabel A, geldig tot en met 19 maart 2036.

KOOPGEGEVENS:
Vraagprijs:
€ 225.000,= kosten koper.

Aanvaarding:
In overleg.

Overdrachtsbelasting:
Ja, van toepassing.

Omzetbelasting:
Niet van toepassing.

Opleveringsniveau:
As is where is, ofwel in de huidige staat.

Zekerheidsstelling:
Waarborgsom of bankgarantie ter grootte van 10% van de koopsom.

Voorbehoud:
Een en ander geschiedt onder aanvaarding en voorbehoud goedkeuring opdrachtgever.

Adriaan van den Heuvel
Interesse?

Voor meer informatie of het plannen van een bezichtiging helpt Richard je graag verder.

Heb je liever direct contact met Richard?
Delen

Kenmerken

Overdacht
Vraagprijs € 225.000
Koopconditie Kosten koper
Status Beschikbaar
Aanvaarding In overleg
Bouw
Type Bedrijfsruimte
Bouwtype Bestaande bouw
Bouwjaar 2001
Oppervlakten
Oppervlakte bedrijfshal 118 m²
Energie
Energielabel A
Kadastrale gegevens
Helmond H 1546
Eigendomssituatie Volle eigendom
Omgeving
Omgeving Bedrijventerrein, In woonwijk
Locatie
Adres Wethouder den Oudenstraat 12
Postcode 5706 ST
Plaats Helmond
Provincie Noord-Brabant
Land Nederland

Bekijk alle BOG objecten in Helmond

Bekijk aanbod

Op zoek naar het perfecte pand voor jouw onderneming of belegging?

Als ondernemer of belegger is het vinden van het juiste pand essentieel voor het succes van je bedrijf of investering. Of je nu een winkelruimte, kantoor, opslagruimte of een commercieel pand zoekt, wij helpen je graag bij elke stap.

Gratis zoekopdracht
Bedrijfspand-verhuren-wetten-en-regels