Adelaertstraat 37 5625 HC Eindhoven
110 m²wonen 140 m² perceel 4 slaapkamers Bouwjaar 1963€ 425.000 k.k.
Omschrijving
Welkom in deze leuke woning met vrij uitzicht op een (speel)veld en alle voorzieningen dichtbij. De woning heeft maar liefst vier slaapkamers, een ruim dakterras, een toilet en douche op de eerste verdieping en volop bergruimte.
De benedenverdieping is over de volle breedte uitgebouwd. De onderhoudsvriendelijke tuin heeft een berging over de gehele breedte van de tuin. Aan de voorzijde zijn acht zonnepanelen (gericht op het zuidoosten).
De woning ligt in een kindvriendelijke woonwijk tegenover een (speel)veld zodat je vrij uitzicht hebt en geen directe overburen. Alle voorzieningen en uitvalswegen zijn dichtbij. Al met al een leuk huis op een mooie locatie. Kom gerust kijken, we laten het je graag zien!
BIJZONDERHEDEN:
– Benedenverdieping uitgebouwd;
– 4 slaapkamers en een dakterras;
– Goed onderhouden en kunststof kozijnen;
– 8 Zonnepanelen (Nationaal Warmtefonds – 2024);
– Meterkast vernieuwd en nieuwe cv;
– Nieuw toilet op eerste verdieping;
– Badkamer en keuken moeten worden gerenoveerd;
– Nieuwe rolluiken;
– Rustige locatie zonder overburen, met uitzicht op plantsoen en speelveld;
– Vlakbij allerlei voorzieningen en uitvalswegen.
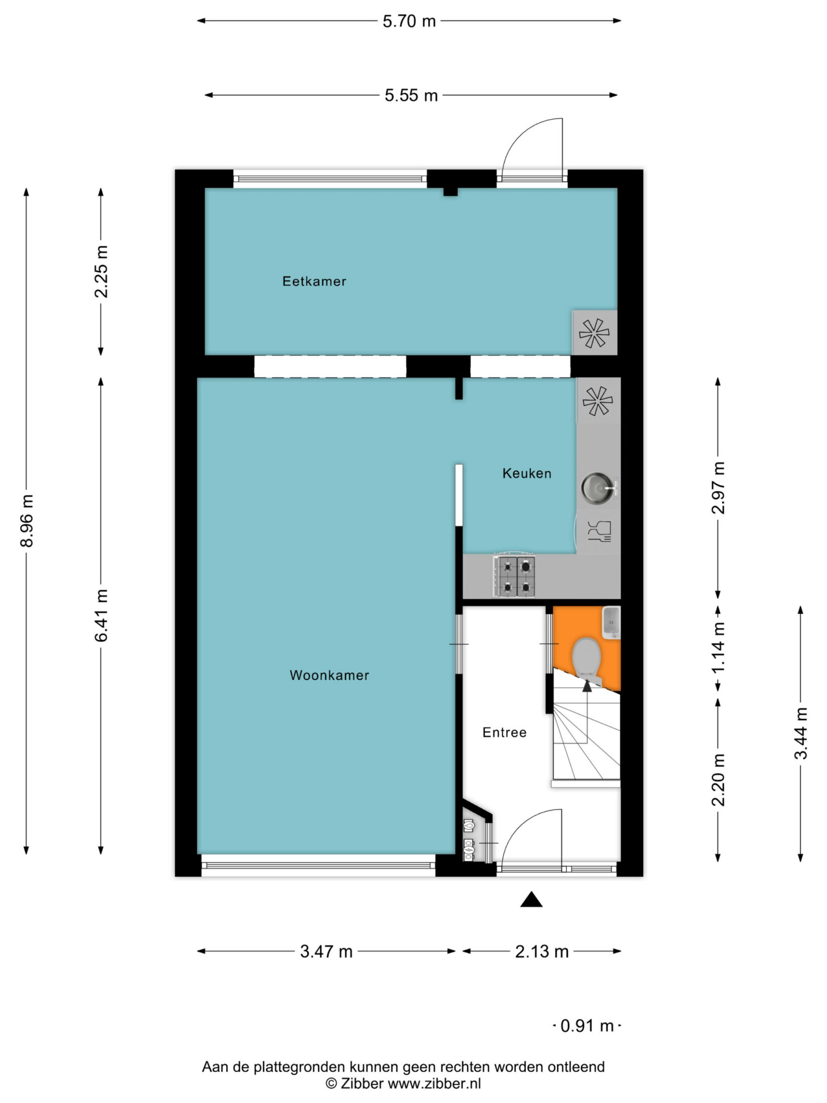
BEGANE GROND:
ENTREE EN TOILET:
De hal heeft een leuke, moderne gaderobe en geeft toegang tot het toilet, de vernieuwde meterkast, de trap naar de eerste verdieping en de huiskamer. De gedeeltelijk betegelde, frisse toiletruimte heeft een zwart/witte kleurstelling en is voorzien van mechanische ventilatie.
WOONKAMER:
De woonkamer kijkt aan de voorkant uit over het plantsoen en speelveld. Het is heel ruimtelijk vanwege de open verbinding met de keuken en de grote uitbouw. Een mooie, lichte kamer waarvan de lange muur opnieuw is gestuct. De uitbouw over de volle breedte geeft je extra ruimte voor bijvoorbeeld een grote eethoek, werkruimte of nóg een zithoek.
KEUKEN:
De open keuken wordt door het barretje qua zicht een beetje onttrokken van de rest van de ruimte. Je bent met elkaar in verbinding, maar je kijkt niet meteen op het aanrecht. De keuken staat in een hoekopstelling en heeft een kleine make-over gehad: opnieuw geschilderd, het aanrechtblad is gewrapt en de achterwand is vervangen, maar wellicht is een grotere renovatie nodig. Een keuken met veel werk- en opbergruimte.
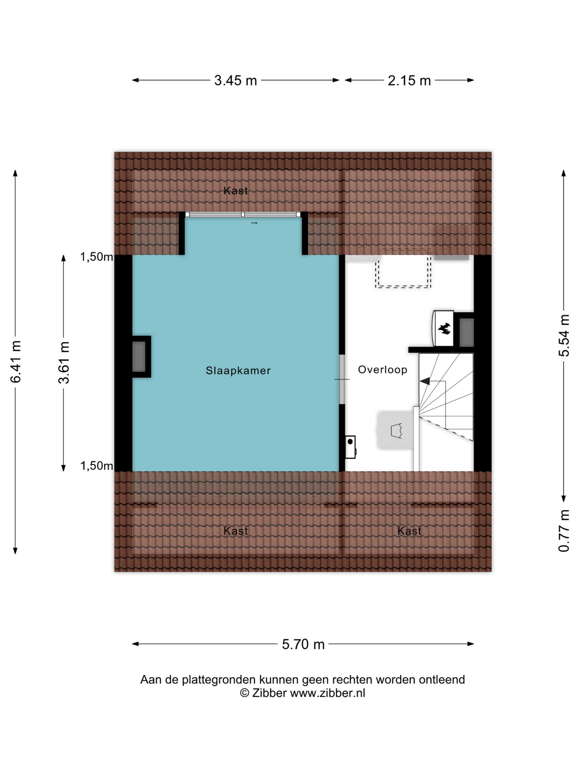
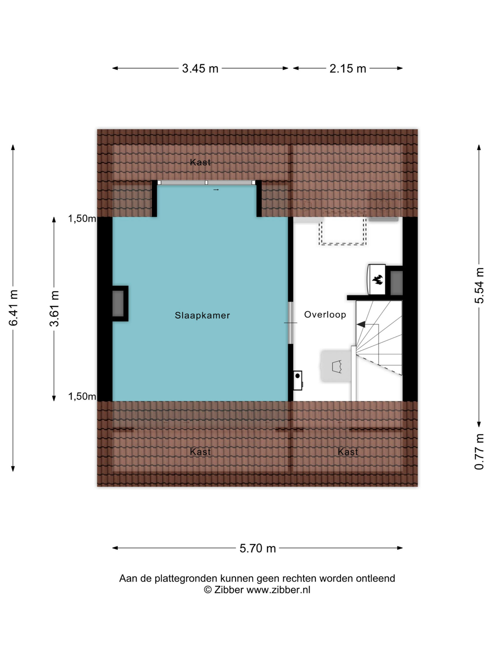
EERSTE VERDIEPING:
De verdieping heeft drie slaapkamers, een toilet en een badkamer. Een van de slaapkamers is nu in gebruik als werkkamer. De andere kamers zijn ruim en licht. Op de vloer ligt een mooie laminaat.
SEPARAAT TOILET:
De toilet met vermaler en bijpassend fonteintje is een paar jaar geleden geplaatst. De landscape witte tegels op de wand worden gecombineerd met antracietkleurige vloertegels.
SLAAPKAMERS:
Een van de kamers heeft openslaande deuren naar het dakterras. Een andere kamer is in gebruik als werkkamer. Alle kamers hebben kunststof kozijnen met isolerende beglazing. Op de vloeren ligt een mooie laminaat met brede planken. De kamer aan de voorzijde kijkt ver weg over het (speel)veld heen.
BADKAMER:
De badkamer heeft een douche met een thermostaatkraan en handdouche en een wastafel. Alles functioneert, maar heeft esthetisch wat aandacht nodig. Een raam zorgt voor natuurlijke ventilatie.
DAKTERRAS:
Lekker loungen op het terras! Deze kijkt uit over de tuin. Op de vloer liggen houten vlonders. Een leuke loungeset en genieten maar.
TWEEDE VERDIEPING:
Een vaste trap leidt naar de tweede verdieping waar je een voorzolder met aansluitingen voor de wasmachine hebt. Hier hangt tevens de cv (Vaillant 2022) en de omvormer van de zonnepanelen. Op de vloer ligt een nieuwe vloerbedekking. Achter de knieschotten is bergruimte. Een dakraam zorgt voor natuurlijke ventilatie.
OUDERSLAAPKAMER:
De slaapkamer is heerlijk ruim met zelfs ruimte voor een werkplek. Een dakkapel zorgt voor veel lichtinval. Ook hier ligt de nieuwe vloerbedekking en heb je veel bergruimte achter de knieschotten.
TUIN:
De mooi verzorgde, privacy biedende en onderhoudsvriendelijke tuin heeft vanwege de lengte altijd wel een zonnig plekje of juist een stukje schaduw tijdens warme zomers. Tot laat in de avond heb je hier zon. De tuin wordt geflankeerd door schuttingen en achter in de tuin is over de volle breedte een ruime berging met een eigen achterom.
Interesse?
Voor meer informatie of het plannen van een bezichtiging helpen we je graag verder.
Heb je liever direct contact met ons team?
Deel deze woning
Kenmerken
Overdacht
| Vraagprijs | € 425.000 |
| Prijs per m² | € 3.864 |
| Koopconditie | Kosten koper |
| Status | Beschikbaar |
| Aanvaarding | In overleg |
Bouw
| Object type | Tussenwoning |
| Type | Tussenwoning |
| Soort | Eengezinswoning |
| Bouwtype | Bestaande bouw |
| Bouwjaar | 1963 |
| Soort dak | Samengesteld dak |
Oppervlakten en inhoud
| Wonen | 110 m² |
| Gebouwgebonden buitenruimte | 15 m² |
| Externe bergruimte | 15 m² |
| Perceel | 140 m² |
| Inhoud | 388 m² |
Indeling
| Aantal kamers | 5 |
| Aantal slaapkamers | 4 |
| Aantal badkamers | 1 |
| Aantal woonlagen | 2 |
| Dakterras | Ja |
| Voorzieningen | Mechanische ventilatie, Rolluiken, Buitenzonwering, Rookkanaal, Dakraam, Natuurlijke ventilatie |
Energie
| Energielabel | C |
| Isolatie | HR Glas |
| Verwarming | CV Ketel |
| Warm water | CV Ketel |
CV Ketel
| Brandstof | Gas |
| Bouwjaar | 2022 |
| Eigendom | Eigendom |
| Type | Vaillani ecoTEC classic |
Kadastrale gegevens
| Woensel P 917 | |
| Oppervlakte | 140 m² |
| Eigendomssituatie | Volle eigendom |
Buitenruimte
| Liggingen | Aan rustige weg, In woonwijk, Vrij uitzicht |
| Tuin | Achtertuin, Voortuin |
| Oppervlakte | 54 m² |
| Breedte | 6 meter |
| Diepte | 9 meter |
| Ligging tuin | Noord-west |
| Heeft achterom | Ja |
Berging
| Soort | Vrijstaand steen |
| Voorzieningen | Voorzien van elektra |
Parkeergelegenheid
| Soort parkeergelegenheid | Openbaar parkeren |
Locatie
| Adres | Adelaertstraat 37 |
| Postcode | 5625 HC |
| Plaats | Eindhoven |
| Provincie | Noord-Brabant |
| Land | Nederland |
Vergelijkbaar in de buurt
Bekijk alle woningen in Eindhoven
Bekijk aanbodNiet gevonden wat je zocht?
We helpen je graag met het zoeken naar de perfecte woning voor jou!
Gratis zoekopdracht