Beelsstraat 38 5701 KV Helmond

149 m²wonen 282 m² perceel 4 slaapkamers Bouwjaar 1954

€ 550.000 k.k.

Omschrijving

Statig herenhuis gelegen in het bruisende stadscentrum van Helmond! Zowel extern alsook intern betreft dit een uitzonderlijk woonhuis, gelegen in een rustige, verkeersluwe straat aan de rand van het authentieke stadscentrum van Helmond met alle benodigde en gewenste voorzieningen nabij! Is uw interesse gewekt? Plan snel uw bezichtiging, wij heten u van harte welkom!

BIJZONDERHEDEN:
– Bijzonder authentiek, karakteristiek en ruim herenhuis welke u zal verrassen!;
– Complete modernisatie van badkamer, keuken en binnenruimten;
– Voorzien van maar liefst vier slaapkamers waarvan één fungeert als inloopkast, voorzien van rolluiken;
– De woning beschikt over grotendeels nieuwe kozijnen, een compleet nieuw dak, vernieuwde isolatie én diverse (warmtewerende) lichtkoepels;
– Achterin de 23 meter diepe achtertuin bevindt zich een tuinhuis met overkapping, bar (voorzien van stromend water) en eigen sanitaire voorziening!;
– De keuken en badkamer zijn beiden in 2019 compleet vernieuwd;

ALGEMEEN:
Dit authentieke en statige herenhuis is compleet gerenoveerd, gemoderniseerd en uitgebouwd. Een bijzondere woning op een uitermate centrale doch rustige woonlocatie met supermarkten, speciaalzaken en het N.S.-treinstation op loopafstand. Intern beschikt de woning over een zeer moderne uitstraling, de strakke wand-, plafond en vloerafwerking in combinatie met de cinewall voorzien van vraag gestuurd led-licht en de ensuite deuren richting de prachtige keuken maken een prachtig geheel.

Dat alles op een voor centrum begrippen uitzonderlijk ruim perceel met tuinhuis voorzien van bar en eigen sanitair achterin de maar liefst 23 meter diepe achtertuin maken dat u deze prachtige woning beslist moet komen bekijken!

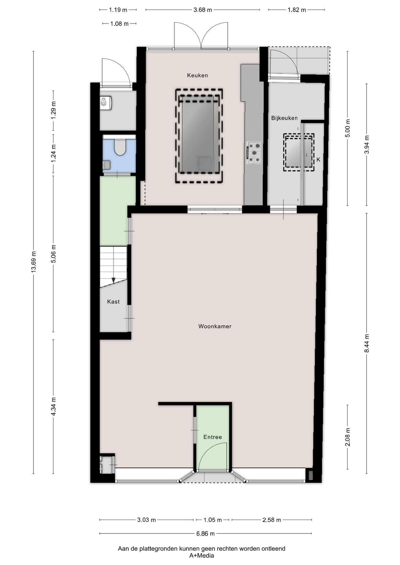
BEGANE GROND
HAL & ENTREE:
De entree van deze woning is bijzonder sfeervol en in het midden van de voorgevel gelegen, vanuit deze prachtige entree met garderobe krijgen we toegang tot de ruime woonkamer.

WOONKAMER:
Vanuit de entree bereiken we de linkerzijde van de woonkamer met uitzicht over de woonstraat, aan deze linkerzijde heeft u ruime gelegenheid een leuke thuiswerkplek in de doorloop te creëren. Aan de overzijde van de entree, de rechtervoorzijde van de woonkamer bevindt zich een fraaie eethoek, deze ruimte leent zicht perfect!

Te midden en als centrale punt in deze woonkamer bevindt zich de ruim opgezette zithoek, een ware eyecatcher mede vanwege de aanwezigheid van de moderne cinewall met vraag gestuurde led-licht en een elektrische sfeerhaard. Deze zithoek zal u versteld doen staan! Hetzelfde geldt voor de prachtige ensuite deuren welke toegang bieden tot de aan de achterzijde gerealiseerde woonkeuken! Daarnaast bevinden zich de deur naar het portaal voorzien van trapopgang en toiletruimte en aan de overzijde de toegang tot de bijkeuken.

WOONKEUKEN:
Via de prachtige ensuite deuren bereiken we de woonkeuken aan de achterzijde van de woning, voorzien van een prachtig uitzicht over de ruime achtertuin via de dubbel openslaande tuindeuren! De keuken is ruim van opzet, voorzien van een gietvloer, strak stucwerk met geïntegreerde spotjes en een compleet nieuwe warmtewerende lichtstraat, wederom een prachtige eyecatcher in dit unieke woonhuis.

Ten behoeve van de klimaatregeling beschikt deze woonkeuken over een airconditioningssysteem. Verder is de keuken in wandopstelling geplaatst en voorzien van een ruim spoeleiland met een ontbijt-/koffiebar. Ook beschikt deze fraaie keuken over inbouwapparatuur, te weten:

– Koelkast;
– Vriezer;
– Vaatwasser;
– Afzuigkap verwerkt in een mooie koof;
– Gasfornuis met ruime oven.

BIJKEUKEN:
Aan de rechterachterzijde van deze fijne woning bevindt zich eenzeer praktische bijkeuken. Voorzien van een inbouwkast waarin de witgoedaansluitingen en diverse elektrapunten gelegen zijn. Vanuit de bijkeuken heeft u tevens de mogelijkheid om direct de achtertuin te betreden.

PORTAAL MET TOILETRUITMTE:
Vanuit de woonkamer bereiken we via de afsluitbare deur het portaal, dit portaal is voorzien van een tegelvloer welke doorgetrokken wordt in de moderne toiletruimte voorzien van strak tegelwerk, wandcloset en fonteintje. Aan de overzijde bevindt zich de trapopgang waaronder een bergingsruimte gesitueerd is.

EERSTE VERDIEPING:
Via de vaste trap in het portaal toegankelijk vanuit de woonkamer bereiken we de overloop van de eerste verdieping waaraan de badkamer, inloopkast en slaapkamers gelegen zijn.

SLAAPKAMERS:
Aan de voorzijde van deze woning bevinden zich twee grote slaapkamers. Deze slaapkamers beschikken over rechthoekige vormen waardoor het plaatsen van uw meubilair altijd mogelijk in elke gewenste opstelling mogelijk is.
De oppervlakten van beide slaapkamers betreffen circa 16 m² (voorzien van airconditioningssyteem) & circa 14 m².

De derde slaapkamer bevindt zich aan de rechterachterzijde. Ook deze slaapkamer beschikt over prettige afmetingen en een fijne oppervlakte, circa 10 m². De vierde slaapkamer bevindt zich ook aan de achterzijde van de woning.
Momenteel fungeert deze slaapkamer als ruime en zeer praktische inloopkast, de op maat gemaakte kasten geven deze ruimte een mooi beeld en ademen kwaliteit. Verder beschikken alle slaapkamers over rolluiken ten behoeve van verduistering. Indien gewenst is deze ruimte uiteraard als vierde slaapkamer te gebruiken.

BADKAMER:
Aan de achterzijde bevindt zich de badkamer, wederom compleet vernieuwd in 2019. Deze badkamer is voorzien van strak tegelwerk, een dubbele wastafel, wandcloset en inloopdouche. Ten behoeve van ventilatie bevinden zich diverse raamkozijnen in deze badkamer. Verder beschikt de badkamer over bronzentinten, uitermate modern!

TUIN:
De achtertuin is wederom een uitzondering voor woningen in het centrum, bijzonder ruime oppervlakten vanwege zijn diepte van maar liefst circa 23 meter! Dit soort afmetingen zie je maar zelden in het centrum van Helmond en betreft een uitzonderlijke kans. Verder is de achtertuin onderhoudsvriendelijk, voorzien van nette terreinafscheidingen en prachtig straatwerk met drains.

Vanuit de achtertuin krijgt u ook toegang tot de bergingsruimte aan de achterzijde van de woning. De eigen achterom maakt tezamen met de prachtige tuinkamer deze op het zuidoosten gelegen achtertuin compleet!

BIJZONDER TUINHUIS!
Aan de achterzijde van het ruime perceel bevindt zich een groot en modern tuinhuis, voorzien van een prachtige overkapping aan de voorzijde in de vorm van overdekt terras. Dit terras beschikt over een sfeervolle houtkachel en omheining van hout, een prachtig beeld! Het tuinhuis zelf beschikt over een mogelijke multifunctionele inrichting, momenteel bevindt zich een bar in deze ruimte. Daarbij beschikt het tuinhuis over een eigen toiletruimte, voorzien van strak tegelwerk, fonteintje en wandcloset.

Het café is compleet en praktisch ingericht. De bar beschikt over warm en koud water en twee koelingen. Daarnaast is er een doucheaansluiting met afvoer aanwezig. Voor extra comfort is het café voorzien van airconditioning die zowel kan verwarmen als verkoelen. Ook is er een UTP-internetkabel met wifi-versterker vanuit de woning doorgetrokken naar het café, en een extra aansluiting achter de televisie in de woonkamer. De glasvezelkabel ligt al tot aan de voordeur en kan eenvoudig worden aangesloten. Via de achtertuin is er bovendien een poort met directe toegang tot de achterliggende wijk.

Interesse?

Voor meer informatie of het plannen van een bezichtiging helpen we je graag verder.

Heb je liever direct contact met ons team?
Deel deze woning

Kenmerken

Overdacht
Vraagprijs € 550.000
Prijs per m² € 3.691
Koopconditie Kosten koper
Status Beschikbaar
Aanvaarding In overleg
Bouw
Object type Geschakelde woning
Type Geschakelde woning
Soort Herenhuis
Bouwtype Bestaande bouw
Bouwjaar 1954
Soort dak Samengesteld dak
Oppervlakten en inhoud
Wonen 149 m²
Gebouwgebonden buitenruimte 2 m²
Externe bergruimte 26 m²
Perceel 282 m²
Inhoud 526 m²
Indeling
Aantal kamers 5
Aantal slaapkamers 4
Aantal badkamers 1
Aantal woonlagen 1
Voorzieningen Mechanische ventilatie, Alarminstallatie, Rolluiken, Airconditioning, Natuurlijke ventilatie
Energie
Energielabel C
Isolatie Dakisolatie, Vloerisolatie, Dubbel glas, HR Glas
Verwarming CV Ketel
Warm water CV Ketel
CV Ketel
Brandstof Gas
Eigendom Eigendom
Kadastrale gegevens
Helmond I 1165
Oppervlakte 282 m²
Eigendomssituatie Volle eigendom
Buitenruimte
Liggingen Aan rustige weg, In centrum
Tuin Achtertuin
Oppervlakte 169 m²
Breedte 7 meter
Diepte 23 meter
Ligging tuin Zuid-oost
Heeft achterom Ja
Berging
Soort Vrijstaand hout
Voorzieningen Voorzien van verwarming, Voorzien van elektra, Voorzien van water, Met vliering
Parkeergelegenheid
Soort parkeergelegenheid Openbaar parkeren, Parkeervergunningen
Locatie
Adres Beelsstraat 38
Postcode 5701 KV
Plaats Helmond
Provincie Noord-Brabant
Land Nederland

Bekijk alle woningen in Helmond

Bekijk aanbod

Niet gevonden wat je zocht?

We helpen je graag met het zoeken naar de perfecte woning voor jou!

Gratis zoekopdracht

Gratis waardebepaling

Wil je graag jouw huis verkopen in Helmond, Eindhoven, de Peel of de Kempen en ben je benieuwd wat jouw huis waard is? Ontvang binnen 5 minuten de geschatte waarde van jouw woning.

Bereken het nu
Adriaan van den Heuvel - Agrarisch - Sfeerbeeld 3