Leostraat 110 5615 BP Eindhoven

103 m²wonen 114 m² perceel 3 slaapkamers Bouwjaar 1936

€ 399.000 k.k.

Omschrijving

Een charmant ogende, ruime tussenwoning aan de rondweg van Eindhoven. Een mooie uitdaging om er een fijn gezinshuis van te maken. Het huis biedt je dan ook volop mogelijkheden onder andere doordat je een derde verdieping hebt waar je een leuke, extra kamer van zou kunnen maken.
In de tuin is een ruime berging. Achter het perceel kun je met de auto komen om te laden en te lossen. Er zijn aan deze woning steeds verbeteringen aangebracht zoals kunststof kozijnen met isolerende beglazing, vloerverwarming, elektrische bedrading, upgrade van de meterkast en het dak van de berging met o.a. Trespa boeiboorden.

BIJZONDERHEDEN:
– Centraal gelegen aan de rondweg;
– Kunststof kozijnen warmte- en isolerend;
– Vloerverwarming woonkamer;
– Nu twee keukenblokken en twee douches;
– Twee slaapkamers met mogelijkheid voor vier;
– Meterkast 380V;
– U dient rekening te houden met verbouwingskosten

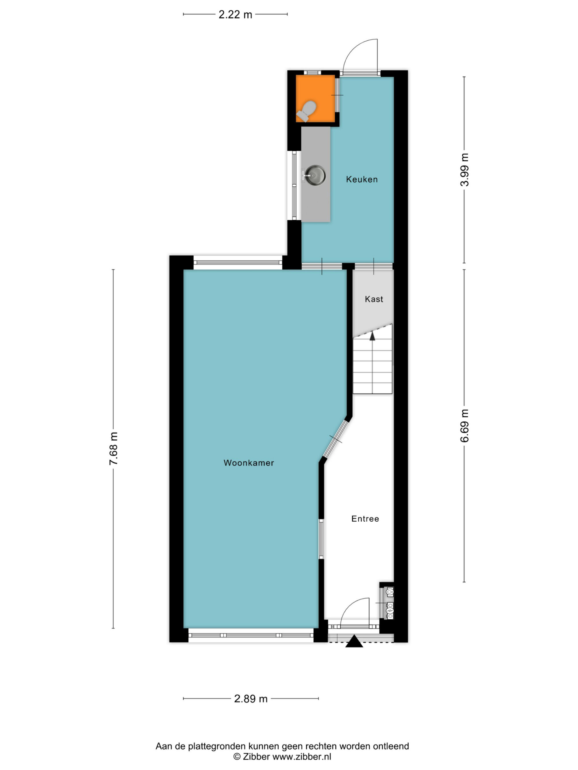
ENTREE:
Echt een mooi aanzicht: een puntdak met een sierruit in het metselwerk, knipvoegen, rollagen boven de kozijnen en een fraaie boog rond de voordeur met mooie beglazing in de boog. De ruime hal biedt je genoeg ruimte voor een garderobe. Verder is hier de deur naar de vernieuwde meterkast, de trapopgang en de deur naar de woonkamer. De paneeldeuren zijn helemaal in stijl van de woning.

WOONKAMER:
Doordat er zowel aan de voor- als achterzijde een groot raam is, valt er volop licht binnen. De kunststof kozijnen zijn geluidswerend en zijn voorzien van suskasten zodat frisse licht binnenstroomt en het geluid buiten blijft. Op de verwarmde vloer ligt een linoleum.

KEUKEN:
De eenvoudige keuken heeft een wandopstelling met een gootsteen en kijkt uit op het terras in de tuin. Er zijn aansluitingen voor een gaskookplaat en er is een elektrische boiler zodat je altijd meteen warm water hebt. Een vouwdeur geeft je toegang tot de ruime provisiekast. Een deur leidt naar het toilet. De achterdeur tenslotte geeft toegang tot de tuin.

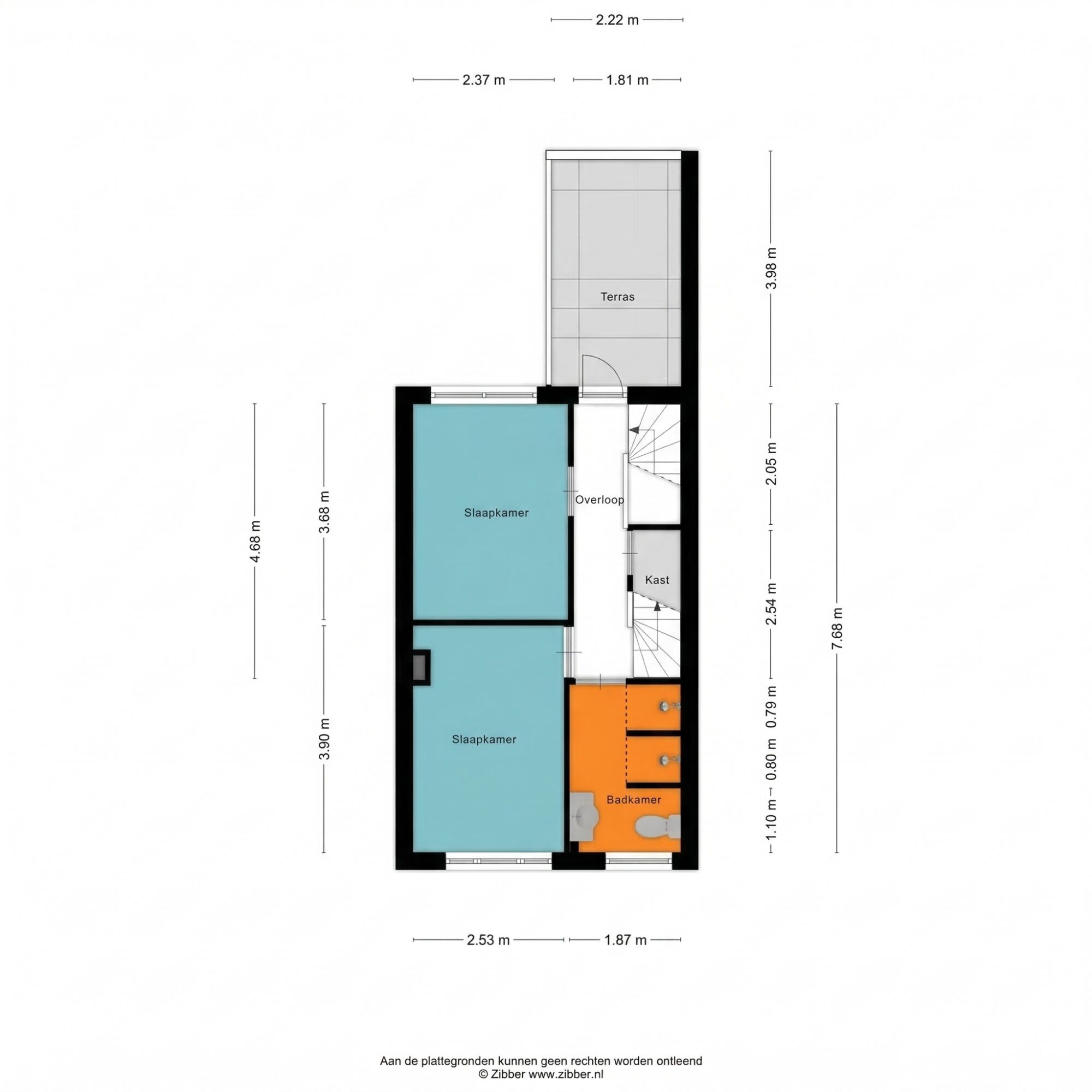
EERSTE VERDIEPING:
Op deze verdieping ook charmante details zoals de balustrade en paneeldeuren. Ook hier kunststof kozijnen. Uiteraard kun je hier ook meerdere slaapkamers maken. Op de originele vloer ligt een massieve parketvloer van zo’n 2 cm dik. Opschuren en je eigen look eraan geven!

BADKAMER:
De volledig betegelde badkamer heeft twee douches, een toilet en een wastafel in meubel.

DAKTERRAS:
Lekker genieten tijdens zwoele zomeravonden op je eigen terras!

TWEEDE VERDIEPING:
Een vaste trap brengt je naar de tweede verdieping. Flink veel licht en ruimte door de dakramen en het dakkapel. Je zou hier met gemak twee slaapkamers of werkkamers kunnen maken. In de hoek staat een keukenopstelling met een spoelbak en kookplaat. Ook hier zijn overal suskasten toegepast.
Op de vloer ligt een mooie grenen plank. Een trap leidt je naar de zolderverdieping.

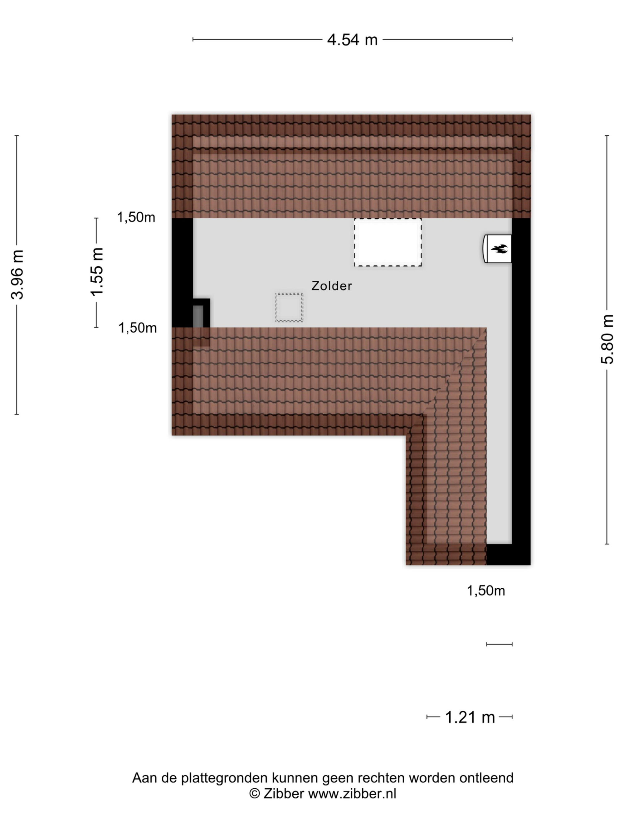
DERDE VERDIEPING:
Een verrassend leuke ruimte met de balken in het zicht. Je zou het dak nog extra kunnen isoleren. Een fijne bergruimte of speelzolder voor de kinderen.

TUIN:
De tuin is bestraat met grindtegels met hier en daar een border. De tuin wordt geflankeerd door houten schuttingen. Achter in de tuin is een berging met een deur naar de achterzijde van het perceel. De grond achter de berging is ook eigendom, maar je dient daar recht van overpad te verlenen. Je kunt met de auto tot aan de berging komen. Een garagedeur erin en je hebt een garage en altijd een parkeerplaats midden in de stad!
De berging is dus behoorlijk ruim en is voorzien van elektra. Het dak is vernieuwd waardoor je er voorlopig geen omkijken meer naar hebt.

Interesse?

Voor meer informatie of het plannen van een bezichtiging helpen we je graag verder.

Heb je liever direct contact met ons team?
Deel deze woning

Kenmerken

Overdacht
Vraagprijs € 399.000
Prijs per m² € 3.874
Koopconditie Kosten koper
Status Beschikbaar
Aanvaarding In overleg
Bouw
Object type Tussenwoning
Type Tussenwoning
Soort Eengezinswoning
Bouwtype Bestaande bouw
Bouwjaar 1936
Soort dak Samengesteld dak
Oppervlakten en inhoud
Wonen 103 m²
Gebouwgebonden buitenruimte 9 m²
Externe bergruimte 20 m²
Perceel 114 m²
Inhoud 394 m²
Indeling
Aantal kamers 4
Aantal slaapkamers 3
Aantal woonlagen 3
Dakterras Ja
Voorzieningen Dakraam, Glasvezel kabel, Natuurlijke ventilatie
Energie
Energielabel D
Isolatie Vloerisolatie, HR Glas
Verwarming CV Ketel, Vloerverwarming gedeeltelijk
Warm water CV Ketel, Elektrische boiler eigendom
CV Ketel
Brandstof Gas
Bouwjaar 2015
Eigendom Eigendom
Type Remeha
Kadastrale gegevens
Stratum D 5411
Oppervlakte 114 m²
Eigendomssituatie Volle eigendom
Buitenruimte
Liggingen Aan drukke weg, In centrum
Tuin Achtertuin
Oppervlakte 39 m²
Ligging tuin Noord-oost
Heeft achterom Ja
Berging
Soort Vrijstaand steen
Voorzieningen Voorzien van elektra
Parkeergelegenheid
Soort parkeergelegenheid Openbaar parkeren
Locatie
Adres Leostraat 110
Postcode 5615 BP
Plaats Eindhoven
Provincie Noord-Brabant
Land Nederland

Bekijk alle woningen in Eindhoven

Bekijk aanbod

Niet gevonden wat je zocht?

We helpen je graag met het zoeken naar de perfecte woning voor jou!

Gratis zoekopdracht

Gratis waardebepaling

Wil je graag jouw huis verkopen in Helmond, Eindhoven, de Peel of de Kempen en ben je benieuwd wat jouw huis waard is? Ontvang binnen 5 minuten de geschatte waarde van jouw woning.

Bereken het nu
Adriaan van den Heuvel - Agrarisch - Sfeerbeeld 3