Meijelseweg 66 a-b 0 5725 RH Heusden

10168 m² perceel

€ 750.000 k.k.

Omschrijving

Bijzonder ruime, rustig doch op korte afstand van dorpen Asten en Meijel gelegen bouwkavel mét bouwvergunning voor de bouw van een royale, zeer lichte villa! Daarbij is de kavel voorzien van een ruim bouwvlak, een grote en goed geïsoleerde schuur en eventueel aan te kopen met de aanwezige woonunit, het huren van de woonunit behoort tevens tot de mogelijkheden!

BIJZONDERHEDEN
– Uitermate ruime en derhalve talloze mogelijkheden biedende bouwkavel op een rustige woonlocatie met weids uitzicht over het groen;
– Gelegen in een bosrijke omgeving;
– Woonunit aanwezig, mogelijk over te nemen in de vorm van koop of te gebruiken in de vorm van huren tijdsens het realiseren van uw droomwoning;
– Bouwvergunning aanwezig voor de bouw van een ruime vrijstaande woning, zie de tekeningen van de architect;
– Mogelijkheid tot het eventueel plaatsen van een zorgwoning of hobbymatig houden van paarden, controleer voor de volledigheid het vigerende bestemmingsplan;
– Grote schuur, compleet geïsoleerd en voorzien van nutsvoorzieningen en een wateropslag t.b.v. beregening en sanitair water;
– Mogelijkheden een B&B te realiseren, bekijk tevens het vigerende bestemmingsplan en evt. vooroverleg met de gemeente;
– Aanwezigheid van maar liefst 18 zonnepanelen!

GLOBALE INDELING WONING
De villa heeft een royale indeling met veel aandacht voor ruimte en comfort. Bij binnenkomst betreed je een ruime ontvangsthal met een stijlvolle trapopgang voorzien van een lichte vide! Op de begane grond vindt je een riante leefkeuken, die naadloos overloopt in de sfeervolle woonkamer met haard. Verder is er een kantoor/study mogelijk op de begane grond waar zich tevens een slaap- en badkamer te realiseren is! Dat maakt dat deze woning gelijkvloers te bewonen is, de aanmerking als semi-bungalow behoort derhalve tot de mogelijkheden! Op de etage bevinden zich diverse slaapkamers en een tweede badkamer.

SCHUUR / GARAGE & BERGINGSRUIMTE
Ideaal voor het uitvoeren van uw beroep of hobby aan huis, deze uitzonderlijk ruime schuur/ garage aan de rand van het perceel welke tevens niet in het zicht van de bouwkavel gelegen is. Deze schuur is compleet geïsoleerd vanwege spouwmuren en hoogwaardige dakisolatie! Rondom is deze grote bergingsruimte bereikbaar en verhard, vanwege de aanwezigheid van diverse overheaddeuren en een schuifdeur is toegang met uw (werk)voertuig zeker mogelijk!
Kom dit dan ook zeker eens bekijken tijdens een exclusieve bezichtiging! Verder beschikt deze schuur/garage over daglichtinval dankzij de aanwezigheid van een lichtstraat in de nok. De vloer is geheel voorzien van beton en beschikt over schone putten, welke het regenwater opvangen en waarmee de beregening en sanitair water (toiletruimte) geregeld wordt. In de schuur bevinden zich aan de achterzijde twee separate stallen/hokken. Aan de voorzijde een
per schuifdeuren afsluitbaar compartiment. Aan zijn rechterzijde, niet zichtbaar vanuit de woonunit, bevindt zich een overdekte extra bergingsruimte ideaal voor het opslaan van uw niet dagelijks te gebruiken artikelen.

ALGEMEEN
Een bouwkavel op een prachtige en rustige locatie in de gewilde gemeente Asten gelegen met een oppervlakte van maar liefst 10.168 m²! De bouwkavel is voorzien van een bouwvlak, een bouwvergunning voor de bouw van een prachtige villa. De gehele oppervlakte is schoon en niet verontreinigd waar het rapport van overlegd kan worden. Dat alles tezamen met een grote en perfect geïsoleerde schuur verzorgt een prachtige kans voor een nieuwe eigenaar hier uw nieuwe thuis te realiseren! De kavel is tevens perfect voor de hobbymatige paardenhouder, ook behoort het creëren van een zorgwoning tot de ruime mogelijkheden. Bekijk tevens het bestemmingsplan van onderhavig object.

Op een ruim perceel van circa 10.168 m², gelegen aan de rand van het dorp Heusden onderdeel uitmakende van de gewilde gemeente Asten, biedt deze bouwkavel u een unieke kans om jouw droomvilla te realiseren. Het ontwerp van deze ruime vrijstaande villa, getekend door het gerenommeerde Van de Ven Architecten, is helemaal afgestemd op de woonwensen en woonkwaliteiten van nu. De bouwvergunning is reeds afgegeven voor de bouw van een energiezuinige villa met luxe afwerking, waarbij er nog ruimte is om jouw (interne) persoonlijke wensen door te voeren.

WOONUNIT
Op de bouwkavel bevindt zich een ruime woonunit. Deze woonunit is circa 106 m² groot en derhalve bijzonder ruim van opzet. De woonunit staat los op het perceel, deze is ideaal te gebruiken ten tijde van de bouw van deze droomwoning. De mogelijkheden zijn eindeloos, het kopen van de woonunit (separaat) of huren van de woonunit ten tijde van de bouw behoren tot de mogelijkheden. De vergunning voor het mogen wonen in de woonunit is verleend per 7 januari 2024, deze is drie jaar geldig met een mogelijke verlengtermijn van 3 jaren. Verhoogde woonunit, gelegen te midden van het perceel met een verharding rondom voor het parkeren van uw voertuigen. De woonunit is aan de voorzijde toegankelijk.

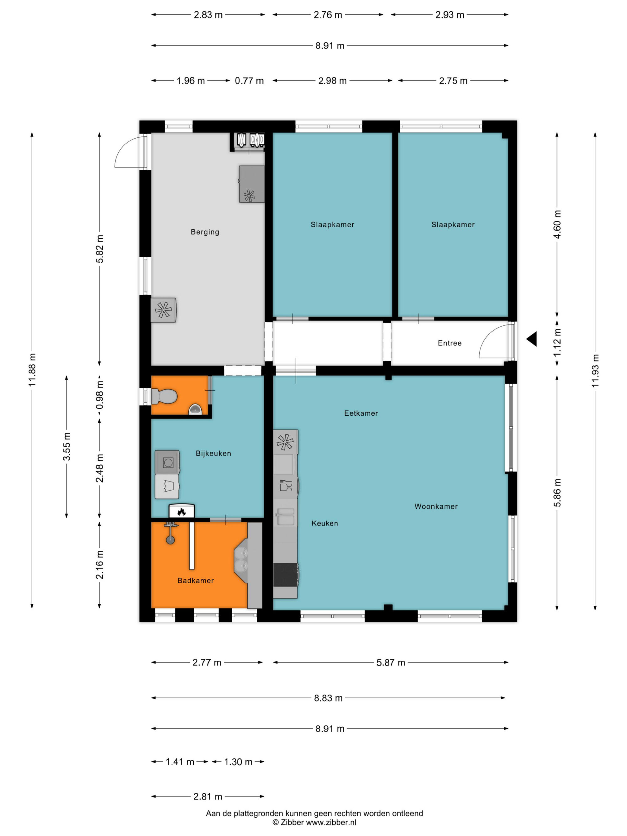
ENTREE / HAL
Aan de rechterzijde van de entree/hal bevinden zich de eerste en tweede slaapkamer, aan de linkerzijde bevindt zich de ruime woonkamer met open keuken. Aan de achterzijde van de hal krijgen we toegang tot een mogelijke derde slaapkamer. Tevens bereiken we vanuit deze derde slaapkamer de bijkeuken met separate toiletruimte en een moderne badkamer.

SLAAPKAMERS
De eerste slaapkamer is voorzien van circa 13 m² oppervlakte, de daarnaast gelegen slaapkamer beschikt over een oppervlakte van circa 14 m²! Aan de rechter-/achterzijde bevindt zich de mogelijke derde slaapkamer. Deze slaapkamer is voorzien van de gemoderniseerde meterkast en diverse elektrapunten. De achterdeur biedt tevens toegang tot de achterzijde van de ruime kavel. Deze slaapkamer is circa 16 m² fungeert tevens als verkeersruimte richting de bijkeuken, separate toiletruimte en badkamer waardoor het gebruik van een zogenaamde room-divider in deze
slaapkamer ideaal is. Om een goede indruk van de fijne afmetingen van deze slaapkamers te verkrijgen verwijzen wij naar de bijgevoegde indelingsplattegronden.

WOONKAMER & KEUKEN
Tegenover de slaapkamers bevindt zich de woonkamer met open keuken. De open keuken is in wandopstelling geplaatst en vanwege de ruime mate van oppervlakte heeft u talloze opties een dinertafel te plaatsen. Ook het creëren van een sfeervolle zithoek aan de voorzijde met uitzicht over de kavel en de groene omgeving bieden een prachtige kans welke zich niet vaak voordoet. Kom dan ook deze ruime woonruimten zeker bekijken tijdens een exclusieve bezichtiging!

BIJKEUKEN & TOILET
De bijkeuken is voorzien van de benodigde witgoedaansluitingen. Tevens bevindt zich hier de C.V.-ketel t.b.v. centrale verwarming in deze woonunit. De separate toiletruimte is praktisch en privacy technisch ideaal in gebruik!

BADKAMER
Moderne invulling van de badkamer aan de linker-/achterzijde van deze woonunit. Voorzien van een inloopdouche met
douchewand en een mooi wastafelmeubel. Natuurlijke ventilatie is mogelijk vanwege de aanwezige raamkozijnen in deze
badkamer.

Interesse?

Voor meer informatie of het plannen van een bezichtiging helpen we je graag verder.

Heb je liever direct contact met ons team?
Deel deze woning

Kenmerken

Overdacht
Vraagprijs € 750.000
Prijs per m² € 74
Koopconditie Kosten koper
Status Beschikbaar
Aanvaarding In overleg
Bouw
Type Bouwgrond
Bouwtype Niet van toepassing
Oppervlakten en inhoud
Perceel 10.168 m²
Kadastrale gegevens
Asten D 3739
Oppervlakte 10.168 m²
Eigendomssituatie Volle eigendom
Buitenruimte
Liggingen Aan bosrand, Vrij uitzicht, In bosrijke omgeving, Landelijk gelegen
Locatie
Adres Meijelseweg 66 a-b 0
Postcode 5725 RH
Plaats Heusden
Provincie Noord-Brabant
Land Nederland

Bekijk alle woningen in Heusden

Bekijk aanbod

Niet gevonden wat je zocht?

We helpen je graag met het zoeken naar de perfecte woning voor jou!

Gratis zoekopdracht

Gratis waardebepaling

Wil je graag jouw huis verkopen in Helmond, Eindhoven, de Peel of de Kempen en ben je benieuwd wat jouw huis waard is? Ontvang binnen 5 minuten de geschatte waarde van jouw woning.

Bereken het nu
Adriaan van den Heuvel - Agrarisch - Sfeerbeeld 3