Onder bod

Peelhof 97 5709 BS Helmond

81 m²wonen 185 m² perceel 3 slaapkamers Bouwjaar 1984

€ 375.000 k.k.

Omschrijving

Deze moderne twee-onder-een-kapwoning is gelegen op een ruim hoekperceel in de geliefde en kindvriendelijke woonwijk Rijpelberg. De instapklare woning beschikt over een sfeervolle woonkamer en een fraai aangelegde achtertuin met stijlvolle overkapping. De royale oprit maakt het geheel compleet en biedt de mogelijkheid om altijd op uw eigen terrein te parkeren.

BIJZONDERHEDEN:
– Instapklare twee-onder-één-kapwoning;
– Wonen op een zeer kindvriendelijke locatie, nabij alle voorzieningen;
– Sfeervolle woonkamer met airconditioning;
– Moderne badkamer;
– Kunststof kozijnen met HR++ beglazing;
– Verassend ruime buitenruimte met overkapping;
– Royale achterom met toegang tot de eigen oprit;

ALGEMEEN:
De ligging is uitstekend: op korte afstand van een speelveldje, dierenpark De Rippert, diverse natuur- en wandelgebieden en NS-station Brouwhuis. Daarnaast zijn basisscholen, sportvoorzieningen en een supermarkt op loop- en fietsafstand bereikbaar. Ook winkelcentrum Brouwhuis en goede uitvalswegen richting het centrum van Helmond, Deurne, Eindhoven en Venlo bevinden zich in de directe omgeving.

BEGANE GROND
HAL & ENTREE:
Via de moderne en geïsoleerde voordeur betreedt u de verzorgde hal van de woning. De hal is afgewerkt met strak stucwerk en een fraaie tegelvloer. Vanuit hier heeft u toegang tot de woonkamer, de meterkast en het gastentoilet, dat is voorzien van zowel een toilet als een urinoir.

WOONKAMER:
De ruime woonkamer is licht en sfeervol en vormt een fijne plek om te verblijven. De wanden zijn keurig afgewerkt en de fraaie tegelvloer zorgt voor een moderne uitstraling. Aan de achterzijde bevinden zich openslaande deuren naar de tuin, die niet alleen een praktische verbinding creëren maar ook zorgen voor een prettige hoeveelheid daglicht.

De zithoek is hier ideaal gesitueerd en biedt volop ruimte voor een comfortabele inrichting. Voor extra wooncomfort is de woonkamer voorzien van airconditioning. Daarnaast beschikt de ruimte over een praktische trapkast voor het opbergen van huishoudelijke spullen.

KEUKEN:
De open keuken is gelegen aan de voorzijde van de woning en is modern uitgevoerd in een stijlvolle donkergrijze kleurstelling met een houtlook werkblad. De keuken is voorzien van diverse inbouwapparatuur, waaronder een combi-oven, vaatwasser, inductiekookplaat, afzuigkap, koelkast en spoelbak. Dankzij de ligging aan de straatzijde geniet u vanuit de keuken van prettig uitzicht, wat deze ruimte bijzonder geschikt maakt voor gezinnen met kinderen.

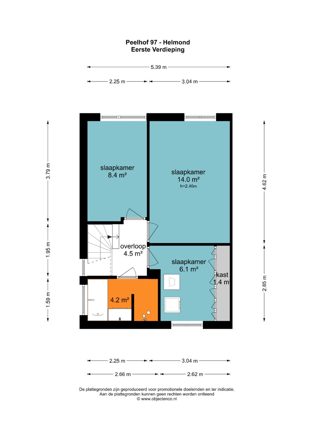
EERSTE VERDIEPING
SLAAPKAMERS:
De vaste trap in de entree biedt toegang tot de overloop van de eerste verdieping. Aan deze overloop zijn gelegen de drie slaapkamers en de moderne badkamer. De hoofdslaapkamer is gelegen aan de achterzijde van de woning en is ruim van opzet. Er is volop plaats voor een groot tweepersoonsbed, nachtkastjes en een royale kledingkast. De gehele eerste verdieping is afgewerkt met nette wandafwerking en een fraaie houtlook laminaatvloer, wat zorgt voor een rustige en verzorgde uitstraling. Alle slaapkamers zijn bovendien voorzien van rolluiken, wat bijdraagt aan extra comfort en privacy.

De tweede slaapkamer is naastgelegen en eveneens van goed formaat en daardoor geschikt als kinder-, werk- of logeerkamer. De derde slaapkamer wordt momenteel gebruikt als wasruimte met opstelling voor wasmachine en droger, maar leent zich dankzij de aanwezige inbouwkasten ook uitstekend als inloopkast. Indien gewenst kan deze ruimte eenvoudig worden ingericht als volwaardige slaapkamer.

BADKAMER:
De badkamer is zeer modern afgewerkt en voorzien van hoogwaardig sanitair. De ruimte is volledig betegeld en ingericht met alles wat nodig is om optimaal te kunnen ontspannen. Zo beschikt de badkamer over een ruime inloopdouche, een whirlpool en een wastafel met een stijlvol meubel. Daarnaast is er een raam aanwezig, wat zorgt
voor prettig daglicht en natuurlijke ventilatie.

TUIN:
De buitenruimte is verrassend ruim en bevindt zich zowel aan de achter- als zijkant van de woning. De tuin is onderhoudsvriendelijk aangelegd met kunstgras en grote tuintegels. Onder de stijlvolle overkapping is het heerlijk vertoeven tijdens de warmere maanden; hier is volop ruimte voor een comfortabele loungeset of een tuintafel met stoelen.

Daarnaast biedt de tuin voldoende plek voor kinderspeeltoestellen, zoals een trampoline of zandbak. De praktische stenen berging is ideaal voor het stallen van fietsen, gereedschap en andere tuinbenodigdheden. Verder beschikt de tuin over een houten poort die fungeert als achterom. Deze poort is volledig te openen, waardoor ook grotere spullen of voertuigen eenvoudig de tuin in gebracht kunnen worden.

Interesse?

Voor meer informatie of het plannen van een bezichtiging helpen we je graag verder.

Heb je liever direct contact met ons team?
Deel deze woning

Kenmerken

Overdacht
Vraagprijs € 375.000
Prijs per m² € 4.630
Koopconditie Kosten koper
Status Onder bod
Aanvaarding In overleg
Bouw
Object type Twee onder een kapwoning
Type Twee onder een kapwoning
Soort Eengezinswoning
Bouwtype Bestaande bouw
Bouwjaar 1984
Soort dak Plat dak
Oppervlakten en inhoud
Wonen 81 m²
Gebouwgebonden buitenruimte 18 m²
Externe bergruimte 6 m²
Perceel 185 m²
Inhoud 283 m²
Indeling
Aantal kamers 4
Aantal slaapkamers 3
Aantal badkamers 1
Aantal woonlagen 1
Voorzieningen Mechanische ventilatie, Rolluiken, Tv kabel, Buitenzonwering, Airconditioning, Glasvezel kabel, Natuurlijke ventilatie
Energie
Energielabel B
Isolatie Dakisolatie, Muurisolatie
Verwarming Stadsverwarming
Warm water Stadsverwarming
Kadastrale gegevens
Helmond N 2264
Oppervlakte 185 m²
Eigendomssituatie Volle eigendom
Buitenruimte
Liggingen Aan rustige weg, In woonwijk
Tuin Achtertuin, Voortuin, Zijtuin
Oppervlakte 36 m²
Breedte 9 meter
Diepte 4 meter
Ligging tuin Noord-oost
Heeft achterom Ja
Berging
Soort Vrijstaand steen
Voorzieningen Voorzien van elektra
Parkeergelegenheid
Soort parkeergelegenheid Openbaar parkeren, Op eigen terrein
Locatie
Adres Peelhof 97
Postcode 5709 BS
Plaats Helmond
Provincie Noord-Brabant
Land Nederland

Bekijk alle woningen in Helmond

Bekijk aanbod

Niet gevonden wat je zocht?

We helpen je graag met het zoeken naar de perfecte woning voor jou!

Gratis zoekopdracht

Gratis waardebepaling

Wil je graag jouw huis verkopen in Helmond, Eindhoven, de Peel of de Kempen en ben je benieuwd wat jouw huis waard is? Ontvang binnen 5 minuten de geschatte waarde van jouw woning.

Bereken het nu
Adriaan van den Heuvel - Agrarisch - Sfeerbeeld 3