Roselmanserf 8 5706 JJ Helmond

168 m²wonen 356 m² perceel 4 slaapkamers Bouwjaar 2002

€ 785.000 k.k.

Omschrijving

Als u op zoek bent naar een meer dan royale tweekapper met fantastische tuinkamer en grote inpandige garage, in uitmuntende onderhoudstoestand maar ook fraai gelegen tegenover het groen, dan is deze bijzonder karakteristieke halfvrijstaande woning iets voor u.

BIJZONDERHEDEN
– Brandevoort en deze karakteristieke en direct bewoonbare woning heeft het allemaal!
– Brandevoort heeft een eigen NS-station waar je directe verbindingen hebt met grote steden in de buurt;
– Goede en fijne locatie om te wonen! Kindvriendelijk en nabij tal van voorzieningen en uitvalswegen;
– Royale woning met karakteristieke elementen, doordachte ruimtes en maar liefst 4 slaapkamers met de mogelijkheid van een 5e;
– Begane grond geheel voorzien van vloerverwarming;
– Hardhouten buitenkozijnen met dubbele beglazing;
– Energiezuinige woning met 15 zeer gunstig gelegen zonnepanelen;
– Royaal hoekperceel met eigen oprit en eventueel uit te breiden achtertuin.

ALGEMEEN
De woning heeft een prachtige ligging met een geheel vrij uitzicht aan de voorzijde op een groenstrook, wat onderdeel is van de “ecozone”. Een zéér rustige locatie met enkel bestemmingsverkeer, een heerlijke plek om te wonen! De “ecozone” loopt als een groene ring om het “stadse hart” van Brandevoort.

Het is een aaneengesloten groene open plek met waterpartijen en speeltoestellen, waar je kan wandelen, skaten of gewoon lekker kan zitten en genieten van de natuur. Kinderen kunnen er heerlijk ravotten en avontuurlijk spelen.

De woning kenmerkt zich door een stijlvolle architectuur met bijzondere details zoals een rond gevelraam, metselwerk en hoge raampartijen met Frans balkon voorzien van sierhekwerk en hoge plafonds.

De woning heeft een optimaal isolatiepakket, zonnepanelen en energielabel A. De woning biedt ruimte aan een prachtige living met dichte keuken op de begane grond, 3 ruime slaapkamers en een badkamer op de eerste verdieping, extra en bovendien royale zolderkamer en een multi-funtionele ruimte op de tweede verdieping met extra bergruimte.

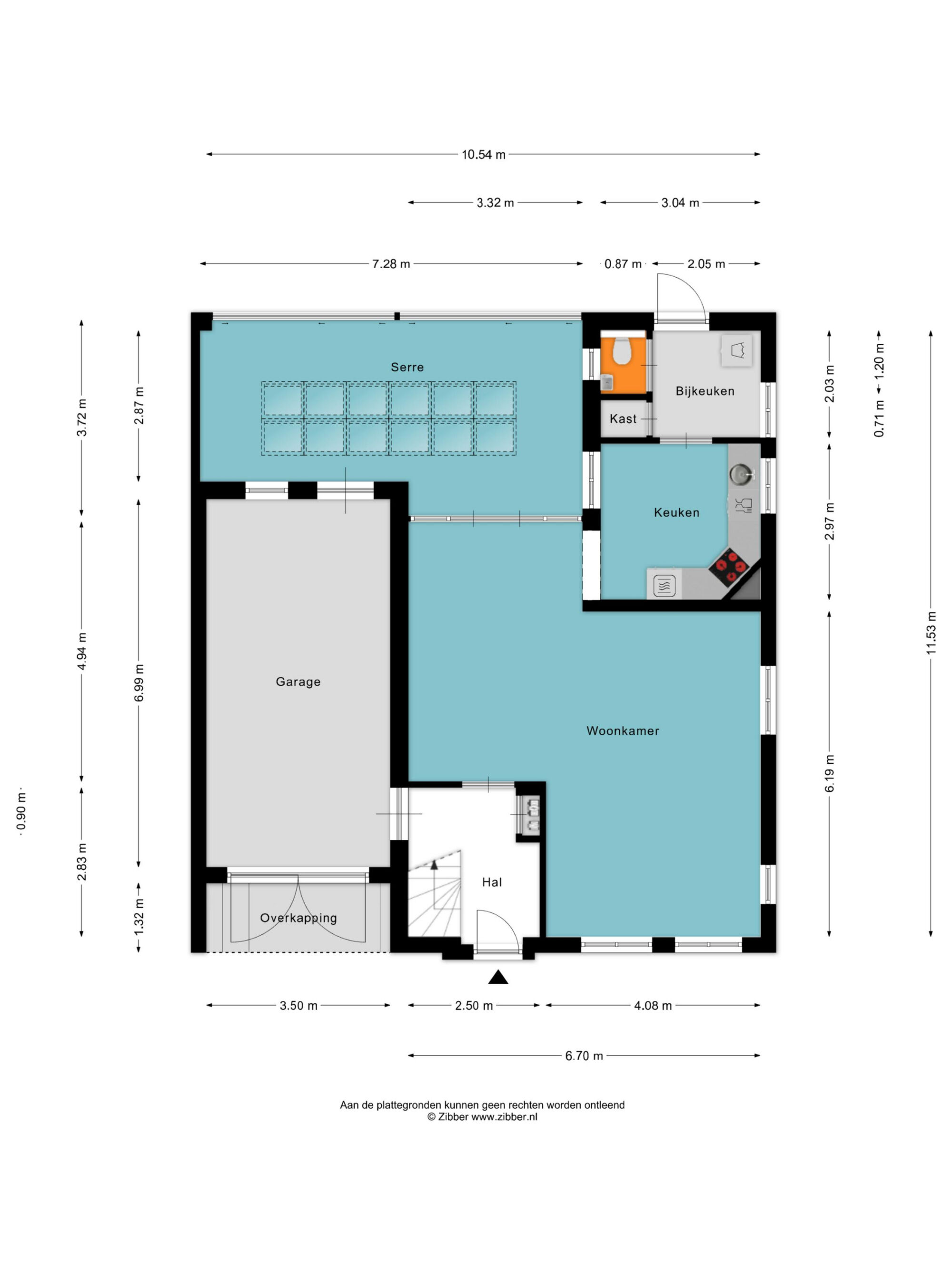
BEGANE GROND
HAL & ENTREE
Entree, toegang naar de hal met doorlopende tegelvloer voorzien van vloerverwarming, fijn schuurwerk wanden en stucwerk plafond, meterkast, toegang naar de living en inpandige garage.

WOONKAMER
De royale woonkamer met fijn schuurwerk wanden en stucwerk plafond met sierlijst, eenzelfde tegelvloer met vloerverwarming, waar de raampartijen rondom volop natuurlijk daglicht geven en vrij uitzicht aan de voorzijde.

Aan de achterzijde gelegen zitgedeelte, met zicht op de achtertuin, waar ook hier de raampartijen volop natuurlijk daglicht geven.

TUINKAMER
Via openslaande tuindeuren is direct de tuinkamer te bereiken. Deze hoogwaardige ruimte is voorzien van een glazen schuifwand, royale, fraaie lichtstraat en inbouwspots. De prachtige terrastegels sluiten naadloos aan, zodat binnen en buiten samenkomen voor een optimale sfeer.

KEUKEN
De dichte keuken is uitgevoerd in een hoekopstelling met een kunststof werkblad, ronde spoelbak en een keukenraam voor volop natuurlijk werklicht en gezellig zicht op de zijtuin en straatzijde.

Als inbouwapparatuur aanwezig een combimagnetron, vaatwasser, inductiekookplaat inclusief afzuiging en een koelkast.

ACHTERPORTAAL
Vanuit de keuken toegang naar een portaal met toiletruimte en aparte loopdeur voor toegang naar de achtertuin. Als afwerking gedeeltelijk fijn schuurwerk-, en betegelde wanden, stucwerk plafond en een tegelvloer. De geheel betegelde toiletruimte is voorzien van een hangend toilet en fonteintje.

INPANDIGE GARAGE
Terug naar de hal bereik je de bijzonder royale, fijne inpandige garage van zo’n 25 m2. De geheel geïsoleerde inpandige garage met tegelvloer is voorzien van verwarming, uitstortgootsteen en een strakke royale wandkast.

De ruimte biedt de mogelijkheden om bijvoorbeeld eenvoudig er een speel-, praktijk- of werkkamer van te realiseren.

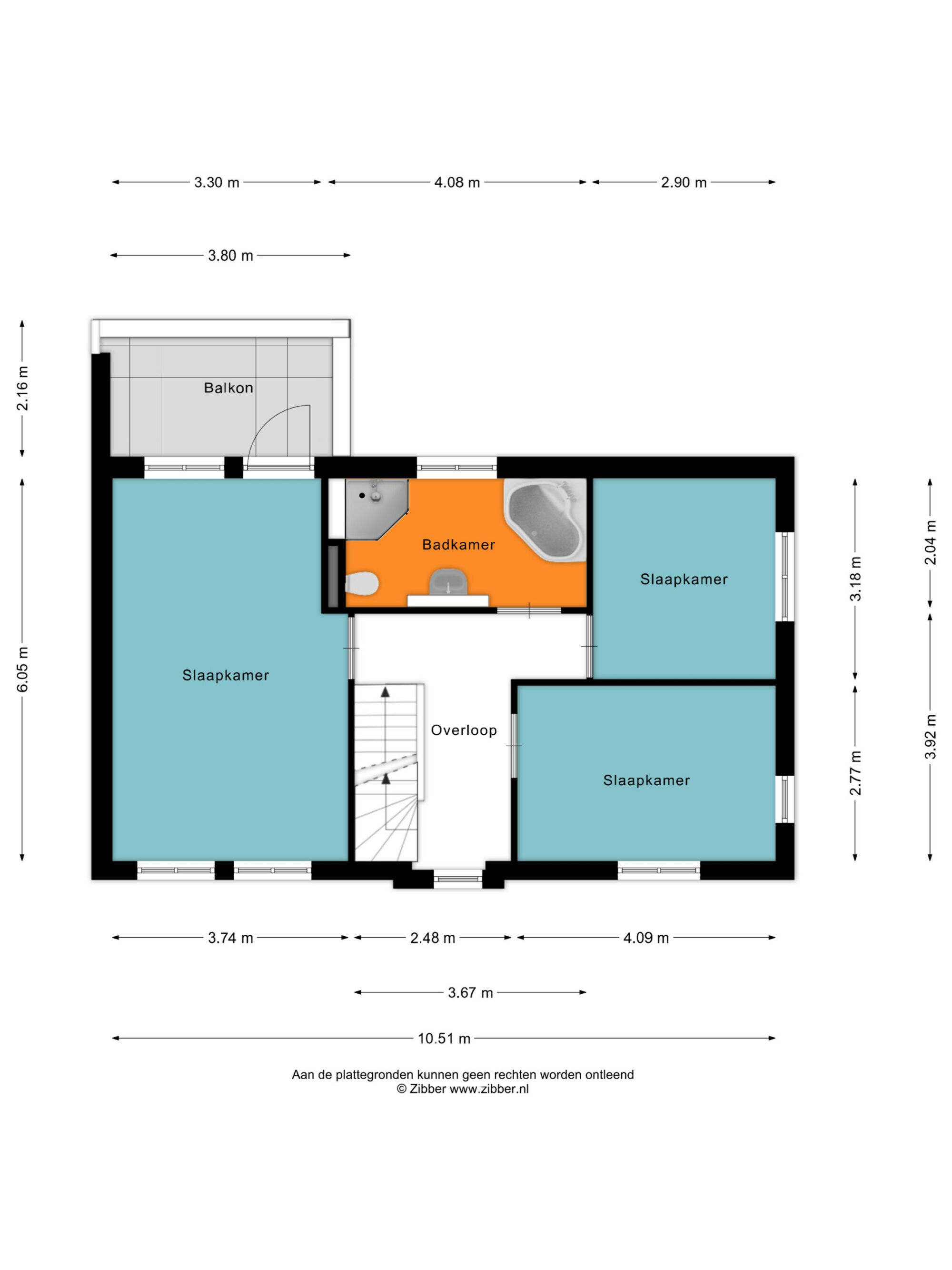
1E VERDIEPING
Een ruime overloop met karakteristiek rond gevelraam en fraaie paneel binnendeuren, toegang naar drie volwaardige
slaapkamers, badkamer en via vaste dichte trap toegang naar de tweede verdieping.

SLAAPKAMERS
De opvallend royale hoofdslaapkamer beschikt aan de achterzijde over een balkon, vloerbedekking, fijn schuurwerk wanden en stucwerk plafond. Meerdere raampartijen voor optimaal daglicht en zicht aan de voorzijde. Slaapkamers 2 en 3 hebben eenzelfde afwerking eveneens met meerdere raampartijen, voor volop daglicht en zijn voorzien van een Frans balkon.

BADKAMER
De volledig betegelde, royale badkamer is van alle gemakken voorzien. De ruimte beschikt over een radiator met stijlvolle ombouw, een tweede toilet, een wastafel met spiegel, een comfortabel hoekligbad en een douche met glazen douchescherm en thermostaatkraan.

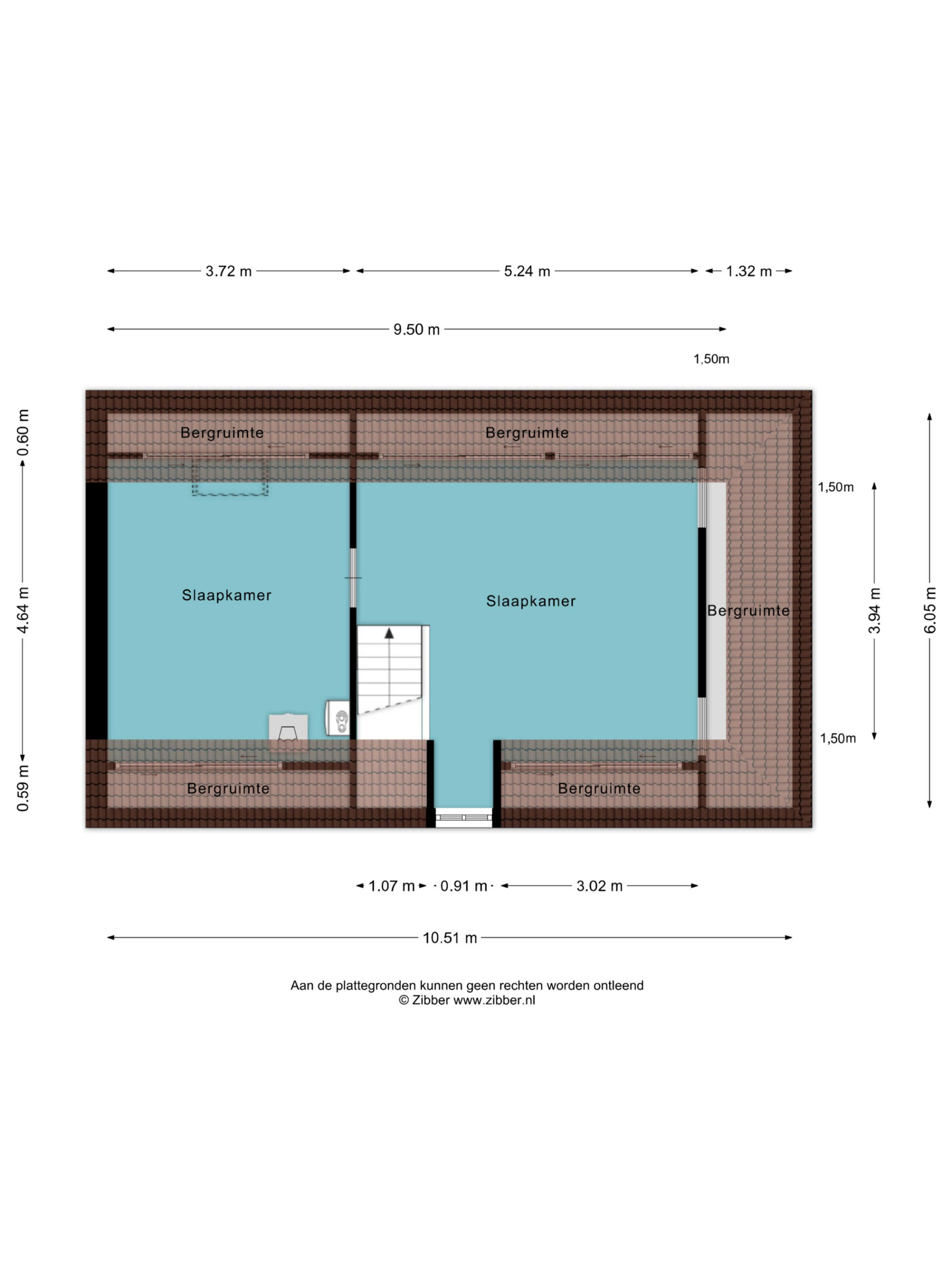
TWEEDE VERDIEPEING
De eveneens royale volwaardige verdieping heeft 2 ruimtes voor meerdere mogelijkheden, een multi-functionele ruimte met dakkapel, vaste kastenwand en bergruimte onder kapschuinte. Een ideale ruimte voor kantoor-, hobby-, chillruimte of extra slaapkamer.

Aansluitend een extra zolderkamer met “Velux” dakraam, bergruimte onder kapschuinte en tevens bevinden zich hier de aansluitingen voor de wasapparatuur, opstelling van de c.v.-ketel alsmede de omvormer voor de zonnepanelen. De gehele verdieping met laminaatvloer heeft als afwerking fijn schuurwerk wanden en stucwerk plafond met inbouwspots. Een verdieping met mooie afwerking wat je normaal niet ziet op een 2e etage en geschikt is voor meerdere doeleinden.

TUIN
De tuin maakt onderdeel van het hoekperceel, wat meer tuinruimte geeft. De rijk ingerichte voor-, en zijtuin is als één geheel ingericht met vaste struiken, beplanting en sfeerbepalende bomen. Het perceel wordt met een sierlijke ijzeren hekwerk en een beukenhaag omsloten (achterom). Via een houten poort toegang naar de achterom, gesitueerd aan de straat Bonifantenerf. Ontdek de sfeervolle achtertuin met volle borders voorzien van vaste beplanting, afgewisseld met kunstgras, paden met grind en staptegels naar een 2e achterin gelegen terras. Sfeerbepalende volwassen
bomen aanwezig. Tevens bestaat de mogelijkheid om de achtertuin uit te breiden door een natuurlijke erfafscheiding
te plaatsen naar de straatzijde. De tuin wordt dan ca. 20 m² groter.

Interesse?

Voor meer informatie of het plannen van een bezichtiging helpen we je graag verder.

Heb je liever direct contact met ons team?
Deel deze woning

Kenmerken

Overdacht
Vraagprijs € 785.000
Prijs per m² € 4.673
Koopconditie Kosten koper
Status Beschikbaar
Aanvaarding In overleg
Bouw
Object type Twee onder een kapwoning
Type Twee onder een kapwoning
Soort Herenhuis
Bouwtype Bestaande bouw
Bouwjaar 2002
Soort dak Schilddak
Oppervlakten en inhoud
Wonen 168 m²
Gebouwgebonden buitenruimte 36 m²
Perceel 356 m²
Inhoud 680 m²
Indeling
Aantal kamers 7
Aantal slaapkamers 4
Aantal badkamers 1
Aantal woonlagen 2
Voorzieningen Buitenzonwering
Energie
Energielabel A
Verwarming CV Ketel
Warm water CV Ketel
CV Ketel
Brandstof Gas
Bouwjaar 2025
Eigendom Eigendom
Kadastrale gegevens
Helmond U 4359
Oppervlakte 356 m²
Eigendomssituatie Volle eigendom
Buitenruimte
Tuin Achtertuin
Oppervlakte 68 m²
Breedte 11 meter
Diepte 6 meter
Ligging tuin Noord
Heeft achterom Ja
Parkeergelegenheid
Soort parkeergelegenheid Openbaar parkeren, Op eigen terrein
Locatie
Adres Roselmanserf 8
Postcode 5706 JJ
Plaats Helmond
Provincie Noord-Brabant
Land Nederland

Bekijk alle woningen in Helmond

Bekijk aanbod

Niet gevonden wat je zocht?

We helpen je graag met het zoeken naar de perfecte woning voor jou!

Gratis zoekopdracht

Gratis waardebepaling

Wil je graag jouw huis verkopen in Helmond, Eindhoven, de Peel of de Kempen en ben je benieuwd wat jouw huis waard is? Ontvang binnen 5 minuten de geschatte waarde van jouw woning.

Bereken het nu
Adriaan van den Heuvel - Agrarisch - Sfeerbeeld 3