Schrijvershoeve 70 5708 SB Helmond
113 m²wonen 142 m² perceel 4 slaapkamers Bouwjaar 2017€ 495.000 k.k.
Omschrijving
Schrijvershoeve 70 in het geliefde Brandevoort (Helmond) is zo’n woning waar je direct binnenstapt en denkt: hier klopt het. Deze verrassend complete tussenwoning is luxe en hoogwaardig afgewerkt, met een moderne uitstraling en een fijne, instapklare afwerking door de gehele woning. De zonnige achtertuin op het zuiden gelegen en de toegewezen parkeerplek op het achtergelegen parkeerterrein, maken deze woning helemaal compleet.
Vanwege de centrale ligging in Brandevoort is deze fijne woning op korte afstand van alle benodigde voorzieningen gelegen. Het winkelcentrum van centrumgebied ‘’De Veste’’ beschikt over diverse overdekte supermarkten, horecagelegenheden, speciaalzaken, een drogisterij, diverse basisscholen, een middelbare school en het N.S.-station (Helmond Brandevoort) waarmee u binnen 7 minuten in het Centrum van Eindhoven uitstapt.
BIJZONDERHEDEN:
– Gelegen in het geliefde en karakteristieke Brandevoort in Helmond;
– Zeer goed geïsoleerde woning met 2 zonnepanelen en energielabel A;
– Vloerverwarming op de gehele begane grond;
– Hoogwaardig en luxe afgewerkte tussenwoning, volledig instapklaar;
– Moderne afwerking met o.a. een eiken visgraatvloer en strak stucwerk;
– Luxe open keuken met hoogwaardige inbouwapparatuur en stijlvolle afwerking;
– Volwaardige tweede verdieping met potentie voor extra (slaap)kamers;
– Luxe badkamer met o.a. een vrijstaand ligbad, inloopdouche en dubbele wastafel;
– Zonnige achtertuin op het zuiden gelegen;
– Vrijstaande berging en een achterom aanwezig;
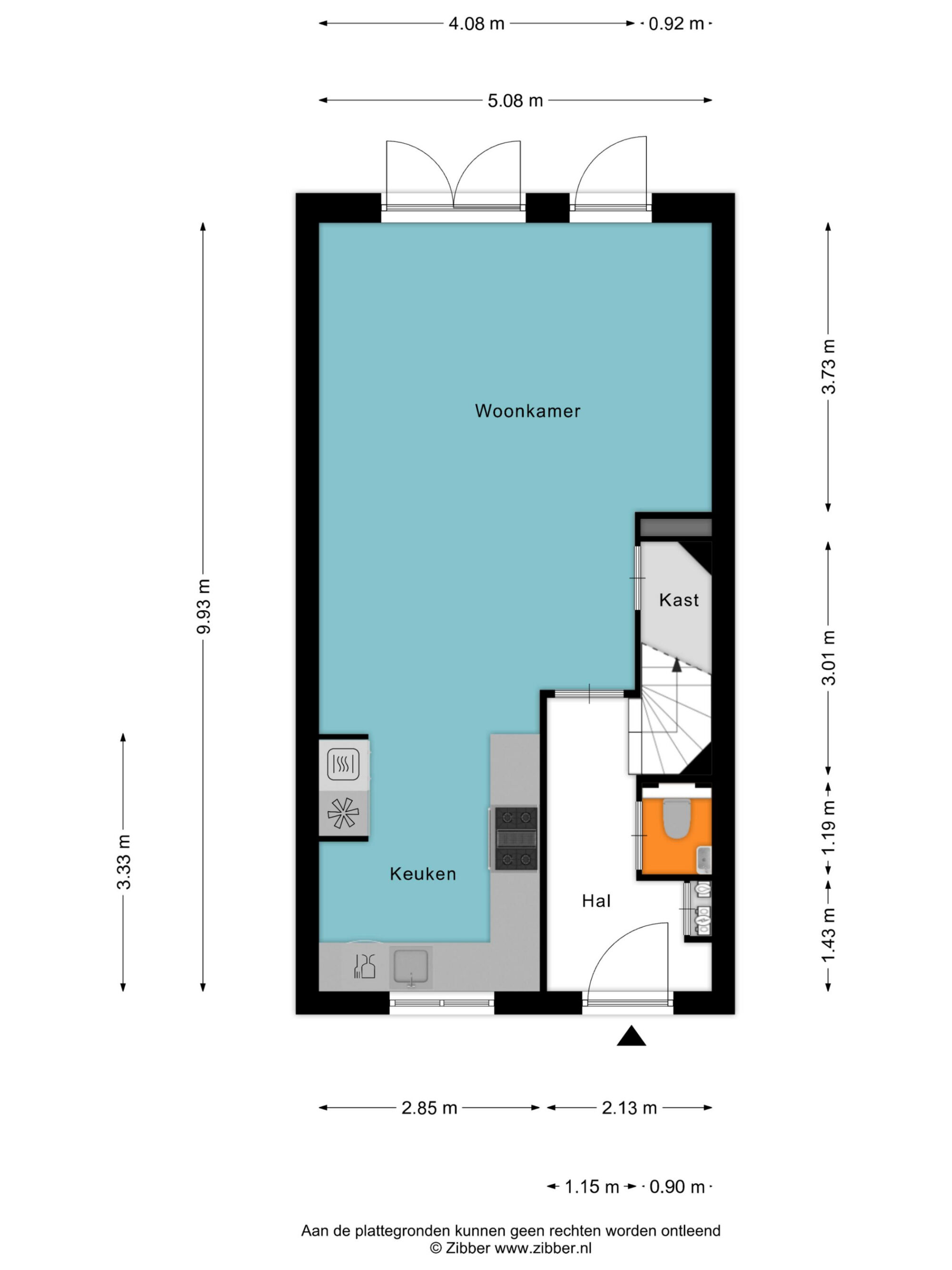
BEGANE GROND
HAL & ENTREE:
Bij binnenkomst via de voordeur wordt u direct verwelkomd in een stijlvolle entreehal, waar de moderne en hoogwaardige afwerking meteen in het oog springt. De prachtige eiken visgraatvloer in combinatie met strak gestucte wanden en plafonds geeft een verzorgd totaalbeeld van de woning.
In de hal bevindt zich de moderne meterkast, voorzien van een uitgebreide groepenkast. Daarnaast treft u hier het luxe afgewerkte gastentoilet. Deze ruimte is uitgevoerd met fraai grijsgetint tegelwerk, strak stucwerk en beschikt over een speels nisje en een stijlvol fonteintje.
WOONKAMER:
De woonkamer is licht en aangenaam, met een praktisch formaat en slimme indeling. De eiken visgraatvloer loopt door en combineert mooi met strak afgewerkte wanden. Aan de achterzijde, bij de openslaande tuindeuren, is ruimte voor een comfortabele zithoek. Daarnaast is er plek voor een ruime eettafel, ideaal voor diners en gezellige avonden. Onder de trap bevindt zich een afgesloten provisieruimte, handig voor het opbergen van huishoudelijke spullen en voorraad.
KEUKEN:
De begane grond wordt aangevuld met een hoogwaardig afgewerkte open keuken in warme houtlook met een grijs werkblad, passend bij de rest van de woning. Dankzij de hoekopstelling en royale keukenwand is er veel werk- en opbergruimte. De gedeeltelijke gietvloer zorgt voor een strakke en onderhoudsvriendelijke afwerking. De keuken is
compleet uitgerust met een SMEG gaskookfornuis, afzuigkap, combi-oven, koelkast, vaatwasser en spoelbak.
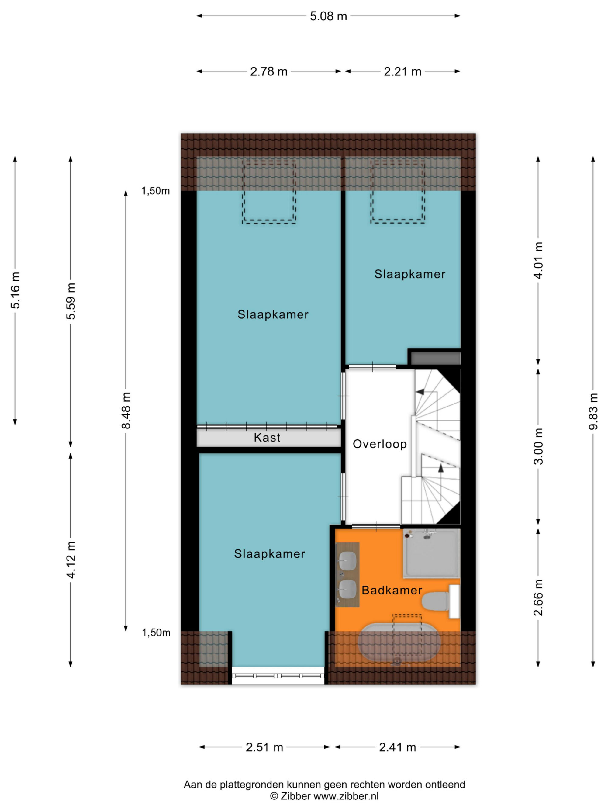
EERSTE VERDIEPING:
Via de vaste trap in de entreehal bereikt u de overloop op de eerste verdieping. Vanaf hier heeft u toegang tot drie volwaardige slaapkamers en de badkamer.
SLAAPKAMERS:
De royale hoofdslaapkamer is gelegen aan de achterzijde van de woning en biedt volop ruimte. Hier is met gemak plaats voor een groot tweepersoonsbed met bijpassende nachtkastjes. Daarnaast is er al gedacht aan praktische opbergruimte: een ingebouwde kledingkast over de gehele breedte van de kamer neemt u het werk uit handen. Het grote dakraam van Velux zorgt voor een prettige lichtinval en biedt tevens de mogelijkheid tot extra ventilatie. Dankzij het geïntegreerde verduisteringsdoek kan de ruimte eenvoudig volledig worden afgesloten voor een goede nachtrust. Het fraaie lijstwerk aan de wand geeft de kamer bovendien een extra stijlvolle uitstraling.
De tweede en derde slaapkamer zijn nagenoeg gelijk in formaat en vormen beide fijne, veelzijdige ruimtes. Deze kamers lenen zich uitstekend voor gebruik als kinderkamer, werkkamer, inloopkast of hobbyruimte.
BADKAMER:
De luxe badkamer is compleet uitgevoerd met hoogwaardige voorzieningen. Er is een vrijstaand ligbad, een ruime inloopdouche met regendouche en nis, een dubbele wastafel met meubel en een toilet. Wandkranen, strak tegel- en stucwerk en een Velux dakraam zorgen voor een rustige, hoogwaardige uitstraling en voldoende daglicht en ventilatie.
TWEEDE VERDIEPING:
Via de vaste trap bereikt u de ruime tweede verdieping. Deze is geschikt als vierde slaapkamer en biedt uitbreidingsmogelijkheden, zoals extra slaapkamers of een wasruimte. Aansluitingen voor wasmachine en droger, de cv-installatie en het WTW-systeem zijn aanwezig. Een Velux dakraam zorgt voor daglicht en ventilatie, en onder de knieschotten is praktische bergruimte.
TUIN:
De zonnige achtertuin is bereikbaar via openslaande tuindeuren en een loopdeur vanuit de woonkamer. De tuin is onderhoudsvriendelijk aangelegd met grote tegels en biedt voldoende ruimte voor een lounge- of tuinset. Dankzij de ligging op het zuiden kunt u hier de hele dag van de zon genieten. Achter in de tuin staat een vrijstaande berging, ideaal voor fietsen, tuingereedschap en extra opslag.
PARKEERPLAATS:
Vanuit de tuin is er een praktische achterom via een houten poort. Deze poort geeft toegang tot het achtergelegen parkeerterrein. Hier beschikt de woning over een eigen toegewezen parkeerplaats, welke exclusief bestemd is voor bewoners van de Schrijvershoeven 70. De parkeerplek is duidelijk gemarkeerd met het nummer ‘70’, wat zorgt voor extra gemak en zekerheid in parkeren.
Interesse?
Voor meer informatie of het plannen van een bezichtiging helpen we je graag verder.
Heb je liever direct contact met ons team?
Deel deze woning
Kenmerken
Overdacht
| Vraagprijs | € 495.000 |
| Prijs per m² | € 4.381 |
| Koopconditie | Kosten koper |
| Status | Beschikbaar |
| Aanvaarding | In overleg |
Bouw
| Object type | Tussenwoning |
| Type | Tussenwoning |
| Soort | Eengezinswoning |
| Bouwtype | Bestaande bouw |
| Bouwjaar | 2017 |
| Soort dak | Zadeldak |
Oppervlakten en inhoud
| Wonen | 113 m² |
| Externe bergruimte | 6 m² |
| Perceel | 142 m² |
| Inhoud | 399 m² |
Indeling
| Aantal kamers | 5 |
| Aantal slaapkamers | 4 |
| Aantal badkamers | 1 |
| Aantal woonlagen | 2 |
| Voorzieningen | Mechanische ventilatie, Tv kabel, Dakraam, Glasvezel kabel, Zonnepanelen, Natuurlijke ventilatie |
Energie
| Energielabel | A |
| Isolatie | Dakisolatie, Muurisolatie, Vloerisolatie, Volledig geisoleerd, HR Glas |
| Verwarming | CV Ketel |
| Warm water | CV Ketel |
CV Ketel
| Brandstof | Gas |
| Bouwjaar | 2017 |
| Eigendom | Eigendom |
Kadastrale gegevens
| Helmond U 6972 | |
| Oppervlakte | 142 m² |
| Eigendomssituatie | Volle eigendom |
| Helmond U 6543 | |
| Eigendomssituatie | Mandelig |
Buitenruimte
| Liggingen | In woonwijk, Vrij uitzicht, Open ligging |
| Tuin | Achtertuin, Voortuin |
| Oppervlakte | 36 m² |
| Breedte | 5 meter |
| Diepte | 7 meter |
| Ligging tuin | Zuid |
| Heeft achterom | Ja |
Berging
| Soort | Vrijstaand hout |
| Voorzieningen | Voorzien van elektra |
Parkeergelegenheid
| Soort parkeergelegenheid | Openbaar parkeren, Op afgesloten terrein |
Locatie
| Adres | Schrijvershoeve 70 |
| Postcode | 5708 SB |
| Plaats | Helmond |
| Provincie | Noord-Brabant |
| Land | Nederland |
Vergelijkbaar in de buurt
Bekijk alle woningen in Helmond
Bekijk aanbodNiet gevonden wat je zocht?
We helpen je graag met het zoeken naar de perfecte woning voor jou!
Gratis zoekopdracht