't Bijsterveld 2 5701 GW Helmond

188 m²wonen 248 m² perceel 4 slaapkamers Bouwjaar 1925

€ 449.000 k.k.

Omschrijving

Bent u op zoek naar een vrijstaande woning met charme en karakter, gelegen op een prachtige woonlocatie op steenworp afstand van het bruisende stadscentrum van Helmond waar tevens de mogelijkheid aanwezig is een praktijk- of kantoor aan huis te realiseren? Dan is deze leuke woning beslist een bezichtiging waard, wij heten u van harte welkom!

UITVOEREN AAN HUIS GEBONDEN BEROEP / GEBRUIK TOT MANTELZORG- OF KANGOEROEWONING:
Deze woning is voorzien van een beroeps- of werkruimte aan de achterzijde van het perceel welke ook zeer geschikt kan zijn als mantelzorg- of kangoeroewoning! Het betreft een grote extra ruimte op de begane grond van circa 65 m² welke voorzien is van een eigen toegangsdeur waardoor eventuele bewoners, gasten, klanten of relaties niet via het woonhuis aan de voorzijde deze multifunctionele ruimte hoeven te betreden. Daarbij beschikt deze praktische ruimte over een keukenblok, een separate toiletruimte en diverse separate kantoor-, werk of wachtruimten welke dus ook als slaapkamer(s) of woonkamer ingericht kunnen worden! De aanwezigheid van eigen sanitaire voorziening verzorgt de mogelijkheid om werk en wonen gescheiden uit te voeren, zonder dat u een bedrijfsruimte hoeft te huren op een separate locatie. Dit is niet alleen logistiek veel eenvoudiger, maar financieel zeker interessant voor zowel de ondernemer alsook voor huisvesting van uw familie of kinderen!

BIJZONDERHEDEN:
– Karakteristieke, sfeervolle vrijstaande woning op een uitermate centrale zicht- en woonlocatie van Helmond;
– Gelegen op steenworp afstand van het bruisende stadscentrum met alle benodigde voorzieningen nabij;
– De woning leent zich perfect om beroep-, kantoor of praktijk aan huis te realiseren;
– Helmond beschikt over een N.S.-station welke direct richting Eindhoven en Venlo rijdt;
– Deze woning beschikt over vier slaapkamers met de mogelijkheid deze in ruime aantallen uit te breiden!

ALGEMEEN:
Op centrale doch rustige woonlocatie bevindt zich op een sfeervol en karakteristieke woonlocatie deze vrijstaande woning met de mogelijkheid een praktijk of beroep aan huis te realiseren. Deze woning is ontzettend ruim en zal u beslist doen verrassen, het achtergelegen deel (de praktijk) is perfect geschikt voor de ZZP’er welke bergingsruimte zoekt of graag aan huis een beroep uitvoert. Dat alles in een vrijstaande woning met fijne tuin en karakteristieke interne elementen zoals en suite deuren en gezellige markiezen!

BEGANE GROND
HAL & ENTREE:
Vanuit de sfeervolle woonstraat in de vorm van een pleintje bereikt u de overdekte entree van deze woning.Aan de entree zijn gelegen de woonkamer, dinerruimte (en suite verbonden), de meterkast en de trapopgang richting de eerste verdieping.

WOONKAMER:
De woonkamer bevindt zich aan de voorzijde van de woning, van origine betreft deze ruimte de zitruimte welke door sfeervolle en karakteristieke en suite deuren wordt gescheiden van de dinerruimte. De mogelijkheid een praktijk of kantoor aan huis te houden bestaat tevens in het achtergelegen gebouw. Deze ruimten zijn voorzien van daglicht en een sfeervolle indeling. Vanuit deze dinerruimte in de woonkamer bereiken we tevens de keuken.

KEUKEN:
De keuken is voorzien van uitzicht op de achtertuin en is tegen de beide lange wanden geplaatst waardoor deze keuken voorzien is van ruime berg- en werkruimte. Aan inbouwapparatuur treffen we;
– Vaatwasser;
– Koelkast;
– Gaskookplaat;
– Afzuigkap.

BIJKEUKEN:
Vanuit de keuken bereiken we de bijkeuken voorzien van inbouwkasten waar de technische installaties gelegen zijn.
Deze bijkeuken biedt toegang tot de achtertuin en een zijn overkapping. In de bijkeuken bevindt zich tevens de toiletruimte, ruim van opzet en voorzien van nette vloer- en wandafwerking een fonteintje en een standaard toilet.

PRAKTIJKRUIMTE:
Uitzonderlijk is het sleutelwoord van deze fijne praktijkruimte. Deze fijne woning biedt talloze mogelijkheden, gebruiksopties en functionaliteiten mede door deze extra ruimte van circa 67 m² binnenwerks. Voor wat betreft ruimten is deze praktijkruimte ingedeeld in een wachtruimte met dubbele deur, alsook een entree welke toegang biedt tot een bijkeuken voorzien van keukenblok en toiletruimte.

Aan de achterzijde bevinden zich nogmaals twee uitermate praktische werkruimten voorzien van keukenblok met wateraansluitingen en lichtkoepels. Deze praktijkruimte biedt dé kans aan de ondernemer welke kantoor aan huis wenst te houden of bijvoorbeeld het inrichten van een salon of bergingsruimte van materialen. Kom deze ruimte dan ook beslist bekijken tijdens een exclusieve bezichtiging, hij zal u doen verrassen!

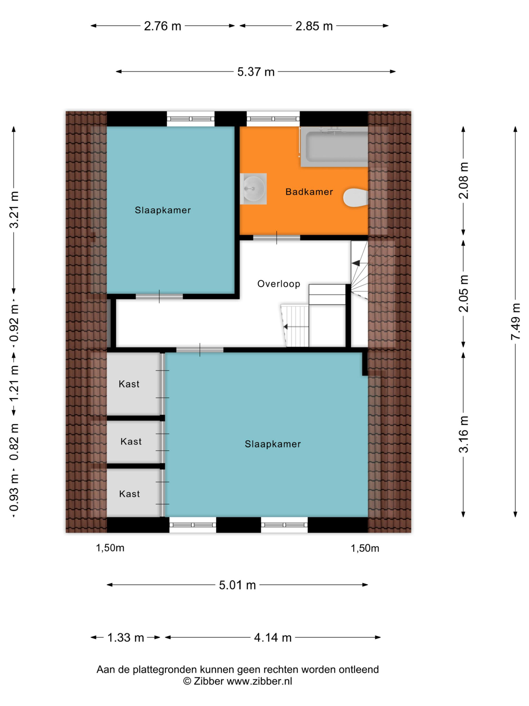
EERSTE VERDIEPING:
Op de eerste verdieping bevindt zich een ruime overloop welke toegang biedt tot de eerste en tweede slaapkamer. Ook de badkamer is vanuit de overloop toegankelijk.

SLAAPKAMERS I & II:
Over de volledige breedte bevindt zich aan de voorzijde de master-bedroom. Voorzien van fraai uitzicht over de gezellige en sfeervolle woonlocatie aan ’t Bijsterveld! Deze slaapkamer beschikt over drie inbouwkasten t.b.v. bergingsruimte en is voor wat betreft oppervlakte circa 12 m² groot. Aan de achterzijde bevindt zich de tweede slaapkamer, deze slaapkamer is eveneens ruim te noemen en vanwege zijn afmetingen en oppervlakte van circa 9 m² perfect te gebruiken als extra slaapkamer! Om een goede indruk van deze fijne slaapkamers te verkrijgen verwijzen wij graag naar de bijgevoegde indelingsplattegronden.

BADKAMER:
Aan de rechter-/achterzijde van de eerste verdieping bevindt zich de badkamer. Voorzien van strak tegelwerk, een douche in een ruim ligbad, toilet en wastafel.

TWEEDE VERDIEPING:
Via de vaste trap bereiken we de tweede verdieping van deze fijne woning. Deze tweede verdieping biedt per overloop toegang tot de derde en vierde slaapkamer. Op deze overloop bevinden zich tevens twee kasten met technische installatie. De derde en vierde slaapkamer zijn voorzien van dakramen en bergingsruimte onder de dak schuinte.

Beide slaapkamers zijn tevens voorzien van eenzelfde formaat, om een goede indruk van deze afmetingen te verkrijgen verwijzen wij graag naar de bijgevoegde indelingsplattegronden.

TUIN:
Vanuit de bijkeuken bereiken we de tuin van deze woning. Deze tuin is voorzien van een ruim terras met net straatwerk. Vanwege de aanwezige ruimte en de mate van privacy is deze achtertuin ideaal in gebruik!

De nette terreinafscheiding vormt tezamen met de het nette straatwerk een doorloop richting de praktijkruimte aan de achterzijde van het perceel. Deze tuin is tevens voorzien van een grote houten overkapping om al vroeg in het jaar van het buitenleven te genieten. Het creëren van een doorgang vanuit de dinerruimte van de woonkamer richting de tuin behoort tot de talloze mogelijkheden! Vanuit de oprit aan de voorzijde en de afsluitbare poort bereiken we tevens deze achtertuin.

Interesse?

Voor meer informatie of het plannen van een bezichtiging helpen we je graag verder.

Heb je liever direct contact met ons team?
Deel deze woning

Kenmerken

Overdacht
Vraagprijs € 449.000
Prijs per m² € 2.388
Koopconditie Kosten koper
Status Beschikbaar
Aanvaarding In overleg
Bouw
Object type Vrijstaande woning
Type Vrijstaande woning
Soort Eengezinswoning
Bouwtype Bestaande bouw
Bouwjaar 1925
Soort dak Samengesteld dak
Oppervlakten en inhoud
Wonen 188 m²
Gebouwgebonden buitenruimte 28 m²
Perceel 248 m²
Inhoud 667 m²
Indeling
Aantal kamers 9
Aantal slaapkamers 4
Aantal badkamers 1
Aantal woonlagen 2
Voorzieningen Tv kabel, Buitenzonwering, Airconditioning, Natuurlijke ventilatie
Energie
Energielabel F
Isolatie Dakisolatie, Dubbel glas
Verwarming CV Ketel
Warm water CV Ketel
CV Ketel
Brandstof Gas
Bouwjaar 2012
Eigendom Eigendom
Kadastrale gegevens
Helmond E 36
Oppervlakte 248 m²
Eigendomssituatie Volle eigendom
Buitenruimte
Liggingen Aan rustige weg, In centrum, Vrij uitzicht
Tuin Achtertuin
Oppervlakte 80 m²
Breedte 8 meter
Diepte 20 meter
Ligging tuin Noord
Heeft achterom Ja
Parkeergelegenheid
Soort parkeergelegenheid Openbaar parkeren
Locatie
Adres 't Bijsterveld 2
Postcode 5701 GW
Plaats Helmond
Provincie Noord-Brabant
Land Nederland

Bekijk alle woningen in Helmond

Bekijk aanbod

Niet gevonden wat je zocht?

We helpen je graag met het zoeken naar de perfecte woning voor jou!

Gratis zoekopdracht

Gratis waardebepaling

Wil je graag jouw huis verkopen in Helmond, Eindhoven, de Peel of de Kempen en ben je benieuwd wat jouw huis waard is? Ontvang binnen 5 minuten de geschatte waarde van jouw woning.

Bereken het nu
Adriaan van den Heuvel - Agrarisch - Sfeerbeeld 3