Windvang 1A 5731 KX Mierlo
294 m²wonen 1078 m² perceel 5 slaapkamers Bouwjaar 1999€ 1.175.000 k.k.
Omschrijving
Een prachtige vrijstaande en bijzonder architectonische villa op een uitermate rustige en beschutte woonlocatie in het gewilde dorp Mierlo! Deze woning is perfect onderhouden, prachtig opgetrokken en voorzien van de mogelijkheid om gelijkvloers te kunnen wonen dankzij de bad- en slaapkamer op de begane grond. Is uw interesse gewekt? Neem dan snel contact op met ons kantoor voor het plannen van een exclusieve bezichtiging!
Bijzonderheden:
– Prachtige architectonische vrijstaande villa voorzien van royale oprijlaan;
– Ruime dubbele en geheel geïsoleerde garage met elektrische overheaddeur;
– Grote rondom gelegen achtertuin voorzien van diverse terrassen en op hoogte uitgevoerd;
– Een hoge mate van privacy vanwege de beschutte ligging aan het kleinschalig woonhofje waar deze woning gelegen is;
– Elektrische toegangspoort;
– Mogelijkheid gelijkvloerse bewoning toe te passen;
– Maar liefst vijf slaapkamers en twee badkamers;
Algemeen:
Op een beschutte woonlocatie bevindt zich aan de achterzijde van een kleinschalige woonstraat deze prachtige vrijstaande villa, voorzien van grote oprit, volledige omheinding, een ruime garage en maar liefst vijf slaapkamers en twee badkamer verdeeld over de verdiepingen!
Deze woning beschikt verder over een grote rondom gelegen tuin met overdekt terras op hoogte. De ligging in Mierlo is ook perfect te noemen, Mierlo staat bekend als rustig en gemoedelijk. De dorpskern beschikt over de authentieke molen, diverse supermarkten, speciaalzaken, gezellige terrassen en horecagelegenheden.
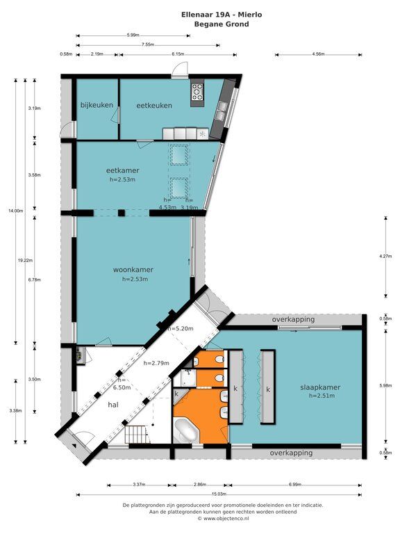
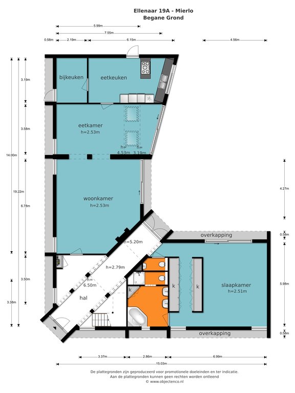
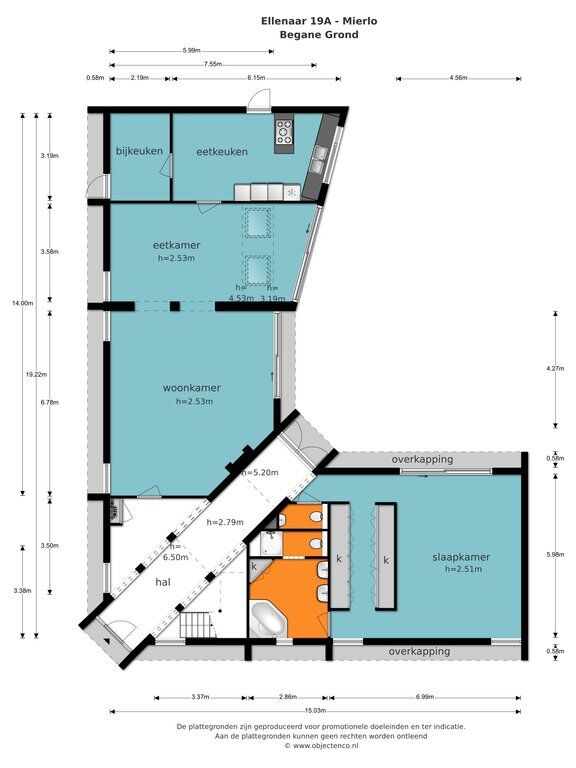
Via de grote oprijlaan bereikt u de elektrisch bedienbare poort naar de woning waar u royaal diverse auto’s kunt parkeren. Rechts gaat u naar de markante voorentree waar u de royale hal met prachtige vide bereikt.
De vloer is voorzien van prachtig natuursteen en beschikt over vloerverwarming doorlopend naar de uitzonderlijk ruime living en woonkeuken. De verrassende hal is een architectonisch hoogstandje uit de buitencategorie: zeer fraai, uniek, veel licht door de vide en centraal punt binnen de woning met zichtlijnen naar boven. Via openslaande tuindeuren aan de andere zijde, loopt u zo de prachtige tuin in.
Links van de markante hal bereikt u de living welke opgedeeld is in een zit- en eetkamer, totaal circa 65 m². De zitkamer is fijn op de tuin gericht en beschikt over een fraaie gassfeerhaard. Wanden en plafond zijn voorzien van strak en modern stucwerk. Een brede schuifpui geeft toegang tot het terras in de achtertuin. De eetkamer staat in een halfopen verbinding waardoor u enigszins een separate eetkamer heeft, maar toch fijn contact met de zitkamer. Dit ziet u ook terug in de prachtige lichtinval in zowel de eet- als zitkamer. Niet in de minste plaats door de extra dakramen die in de schuinte van het dak liggen. Daarbij beschikt deze living over een airconditioningssysteem.
Ondanks dat er een eetkamer is, kunt u ook gezellig tafelen in deze woonkeuken zoals u op de afbeelding kunt zien. Deze woonkeuken is voor wat betreft ruimte perfect deze opstelling te hanteren. De keukeninrichting is in strak en neutraal kunststof uitgevoerd en beschikt over een granieten aanrechtblad. Natuurlijk voorzien van alle denkbare inbouwapparatuur zoals vaatwasser, kookplaat, afzuigkap, combi-oven, warmtelade en heteluchtoven. Daarnaast uiteraard ook een ruime hoeveelheid aan kastruimte.
Achter de fraaie en ruime woonkeuken ligt de bijkeuken met veel kastruimte en witgoedaansluitingen. Vanuit de bijkeuken is de royale oprijlaan richting de garage toegankelijk.
Slaapvleugel
Terug naar de centrale hal, via deze bijzonder architectonische ruimte bereikt u rechts de slaapvleugel. Grenzend aan en via deze centrale hal krijgt u tevens toegang tot de separate toiletruimte en de slaapkamer (masterbedroom).
Deze slaapkamer is ruim 40 m² groot! Een zee aan ruimte en beschikt daarbij ook over een zeer gewenste inloopkast met verdiepingshoge kastenwand aan beide zijden voor optimale bergruimte. De vloer is belegd met parket. Vanuit deze grootste slaapkamer heeft u fijn contact door de grote raampartijen met de tuin.
Na de inloopkast loopt u de fraaie, met grote tegels uitgevoerde badkamer in met hoek whirlpool, dubbel wastafel, douchecabine en wandcloset. Deze is en suite uitgevoerd en verzorgt tezamen met de slaapkamer de mogelijkheid om gelijkvloerse bewoning toe te passen in dit bijzondere woonhuis!
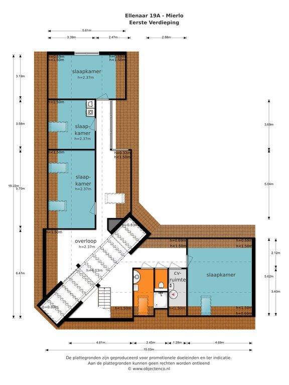
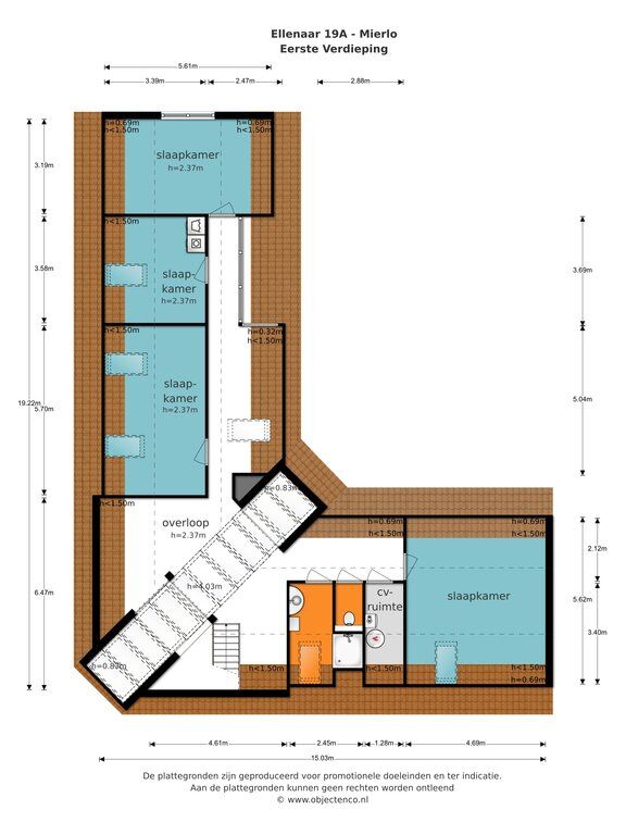
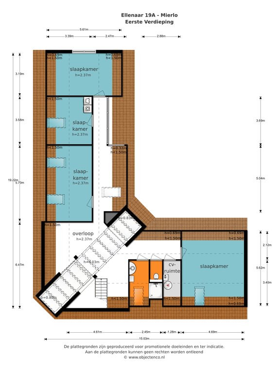
1e Verdieping
Op de meer dan royale overloop ervaart u ruimte en lichtinval. Hier zijn diverse ingebouwde kasten maar kunt u ook heerlijk een werkkamer creëren. Links van de overloop zijn drie zeer goed formaat slaapkamers gelegen, om een goede indruk van deze uitermate prettige afmetingen te verkrijgen verwijzen wij graag naar de bijgevoegde indelingsplattegronden. Een van deze slaapkamers is voorzien van de benodigde witgoedaansluitingen en functioneert
momenteel als separate wasruimte, zeer praktisch en ideaal!
Op deze verdieping bevindt zich verder de royale 5e slaapkamer aan de rechterzijde, gelegen boven de masterbedroom van de begane grond. Een uitzonderlijk ruime slaapkamer waarvoor wij wederom graag verwijzen naar de bijgevoegde indelingsplattegronden om zo het beste beeld te ontvangen!
De tweede badkamer is ook stijlvol ingericht en afgewerkt; voorzien van inloopdouche, wastafelmeubel en het derde
wandcloset is separaat gelegen en naast de badkamer toegankelijk
Tuin:
Rondom de woning ligt een meer dan uitzonderlijke tuin met prachtige, grote vijverpartij. Ondanks dat deze woning op steenworp afstand ligt van het centrum, ligt de tuin ongekend vrij en biedt deze uitermate veel privacy! Een bijzonder plekje in een gewild en hoog aangeschreven dorp. Verder bevinden zich diverse terrassen aan de achterzijde van de woning waar u ook een mooi aantal sfeervolle zitjes kunt creëren, kom deze bijzondere achtertuin dan ook eens zeker bekijken tijdens een exclusieve bezichtiging. Wij heten u van harte welkom!
Aan de achterzijde van de oprijlaan en daarbij ook achter de woning gelegen bevindt zich de bijzonder royale, in spouw opgetrokken en geheel geïsoleerde garage met daarachter op verhoogd niveau een fijn en royaal overdekt terras voorzien van zonnescreens waar het heerlijk vertoeven is in de zomermaanden; beschut en met een groot gezelschap behoort tot de mogelijkheden. Deze garage is ruim van opzet en biedt de mogelijkheid om twee auto’s te parkeren.
Interesse?
Voor meer informatie of het plannen van een bezichtiging helpen we je graag verder.
Heb je liever direct contact met ons team?
Deel deze woning
Kenmerken
Overdacht
| Vraagprijs | € 1.175.000 |
| Prijs per m² | € 3.997 |
| Koopconditie | Kosten koper |
| Status | Beschikbaar |
| Aanvaarding | In overleg |
Bouw
| Object type | Vrijstaande woning |
| Type | Vrijstaande woning |
| Soort | Villa |
| Bouwtype | Bestaande bouw |
| Bouwjaar | 1999 |
| Soort dak | Zadeldak |
Oppervlakten en inhoud
| Wonen | 294 m² |
| Externe bergruimte | 39 m² |
| Perceel | 1.078 m² |
| Inhoud | 1.133 m² |
Indeling
| Aantal kamers | 6 |
| Aantal slaapkamers | 5 |
| Aantal badkamers | 2 |
| Aantal woonlagen | 1 |
| Voorzieningen | Mechanische ventilatie |
Energie
| Energielabel | B |
| Isolatie | Dakisolatie, Muurisolatie, Vloerisolatie, Dubbel glas, Volledig geisoleerd |
| Verwarming | CV Ketel |
| Warm water | CV Ketel |
CV Ketel
| Brandstof | Gas |
| Eigendom | Eigendom |
Kadastrale gegevens
| Mierlo F 6402 | |
| Oppervlakte | 1.078 m² |
| Eigendomssituatie | Volle eigendom |
Buitenruimte
| Liggingen | Aan rustige weg, In woonwijk, Beschutte ligging, In bosrijke omgeving |
| Tuin | Tuin rondom |
| Heeft achterom | Ja |
Parkeergelegenheid
| Soort parkeergelegenheid | Openbaar parkeren, Op eigen terrein |
Locatie
| Adres | Windvang 1A |
| Postcode | 5731 KX |
| Plaats | Mierlo |
| Provincie | Noord-Brabant |
| Land | Nederland |
Open huis
| Startdatum | 2026-03-28 11:00:00 |
| Einddatum | 2026-03-28 15:00:00 |
Vergelijkbaar in de buurt
Bekijk alle woningen in Mierlo
Bekijk aanbodNiet gevonden wat je zocht?
We helpen je graag met het zoeken naar de perfecte woning voor jou!
Gratis zoekopdracht