Brugstraat 81 5731 HG Mierlo

1075 m² bedrijfshal Bouwjaar 1977

Prijs op aanvraag

Omschrijving

BEDRIJFSRUIMTE TE HUUR INCL. (INTERIEUR)BOUWMACHINES

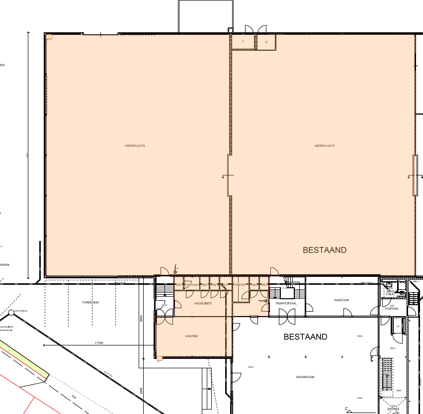
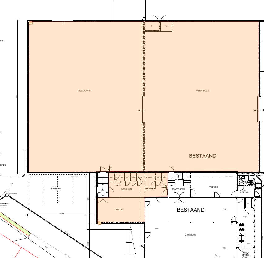
Oppervlakten:
Bedrijfsruimte: ca. 1.000m²;
Kantine: ca. 75m² (gezamenlijk gebruik)

Let op, dit betreft incl. machines en in mogelijk gezamenlijk gebruik. We zoeken dan ook naar een samenwerkingspartner in het vakgebied.
Het is eventueel mogelijk een kleinschalige luxe kantoorruimte bij te huren in het kantoorverzamelgebouw.

Kenmerken bedrijfsruimte:
– Vrije hoogte: ca. 4,50m
– Gezamenlijk gebruik diverse machines;
– Gezamenlijke kantine incl. meubilair.

De volgende machines zijn aanwezig:
– Masterwood CNC-bovenfrees, type Project 400, met automatische gereedschapswissel, vacuümpomp, veiligheidsmat en vlaktafel.
– HolzHer automatische opdeelzaag, type Cut 70/6110, afm. ± 400 x 400 cm, incl. 1 vacuümpomp 1 looprail met 1 “Tani” vacuümgrijper.
– HolzHer kantenverlijmer, type Sprint 1329 performance, incl. toebehoren, compleet
– Al-Ko afzuig/filterunit, type Power Unit 300 met 3 opvangbakken, incl. leidingwerk, machineaansluitingen,
– SCM formaatzaag, type SI15WF, compleet
– ABH vlaktebank, type Superior, werkbreedte 40 cm,
– Okuma vandiktebank, type DM63
– Centauro lintzaag, type Classico / 700 CL
– Altendorf” formaatzaag, type F45, incl. mobiele afzuiging en verder toebehoren, compleet

Ligging:
Het object is goed te bereiken via Helmond – Eindhoven – Geldrop en ligt op korte afstand van de doorgaande weg Helmond-Geldrop. Vanuit de doorgaande weg Helmond-Geldrop zijn diverse uitvalswegen goed bereikbaar waaronder de snelweg A67 (Eindhoven-Venlo/Duitsland). Daarnaast is het object centraal gelegen in het stedelijk gebied Helmond-Eindhoven. De A270 (snelweg richting Eindhoven is in de nabijheid gelegen.

HUURGEGEVENS:
Huurprijs:
Op aanvraag.

Servicekosten:
Verrekenbaar voorschot nader te bepalen.

Leveringen en diensten t.b.v. de servicekosten:
– Levering energie;
– Levering water;
– Levering internet;
– Schoonmaak algemene ruimten;
– Koffie + thee;
– Glasbewassing;
– Onderhoud en reparaties;
– Alarm;
– OZB gebruikersdeel;
– Beheerkosten;
– Administratiekosten;
– Afval verwijdering.

Huurbetaling:
De huurbetaling per maand inclusief overige kosten dient bij vooruitbetaling te worden voldaan.

Huurindexatie:
De huurprijs zal jaarlijks, voor het eerst één jaar na ingangsdatum van de overeenkomst, worden aangepast op basis van het consumentindexcijfer (CPI) reeds CPI-Alle Huishoudens (basisjaar 2015=100) gepubliceerd door het Centraal Bureau voor de Statistiek.

Huurovereenkomst:
ROZ-model (Raad voor Onroerende Zaken), februari 2025, huurovereenkomst kantoorruimte en andere bedrijfsruimte in de zin van artikel 7:230a BW, zoals gehanteerd door de Nederlandse Vereniging van Makelaars in onroerend goed (NVM).

Voorbehoud:
Een en ander geschiedt onder aanvaarding en uitdrukkelijk voorbehoud goedkeuring opdrachtgever.

Omzetbelasting:
Indien huurder niet aan het 90% criterium voldoet, zal er van rechtswege sprake zijn van omzetbelasting vrijgestelde huur. In dat geval zal de overeengekomen kale huurprijs zodanig worden verhoogd dat het voor de verhuurder ontstane financiële nadeel wordt gecompenseerd.

Adriaan van den Heuvel
Interesse?

Voor meer informatie of het plannen van een bezichtiging helpt Richard je graag verder.

Heb je liever direct contact met Richard?
Delen

Kenmerken

Overdacht
Huurprijs Prijs op aanvraag
Status Beschikbaar
Aanvaarding In overleg
Bouw
Type Bedrijfsruimte
Bouwtype Bestaande bouw
Bouwjaar 1977
Oppervlakten
Oppervlakte bedrijfshal 1.075 m²
Vrije hoogte 450 meter
Omgeving
Omgeving Bedrijventerrein, In woonwijk
Locatie
Adres Brugstraat 81
Postcode 5731 HG
Plaats Mierlo
Provincie Noord-Brabant
Land Nederland

Bekijk alle BOG objecten in Mierlo

Bekijk aanbod

Op zoek naar het perfecte pand voor jouw onderneming of belegging?

Als ondernemer of belegger is het vinden van het juiste pand essentieel voor het succes van je bedrijf of investering. Of je nu een winkelruimte, kantoor, opslagruimte of een commercieel pand zoekt, het proces kan overweldigend zijn. Maar geen zorgen, wij helpen je graag bij elke stap.

Gratis zoekopdracht
Bedrijfspand-verhuren-wetten-en-regels