Brugstraat 81 5731 HG Mierlo

1075 m² bedrijfshal Bouwjaar 2020

€ 115 per m² per jaar

Omschrijving

TWEE KLEINSCHALIGE KANTOORRUIMTEN TE HUUR IN DIT PRACHTIGE KANTOORVERZAMELGEBOUW!

BOVENDIEN IS ER RUIMTE BESCHIKBAAR VOOR INTERIEURBOUW OF OVERIGE BOUWGERELATEERDE WERKZAAMHEDEN INCL. MACHINES.

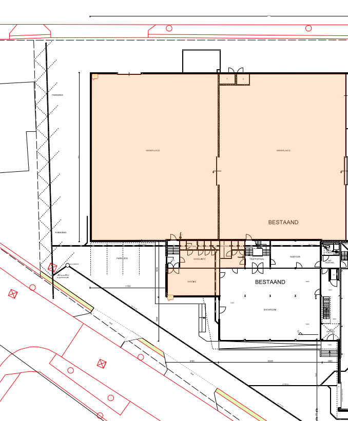
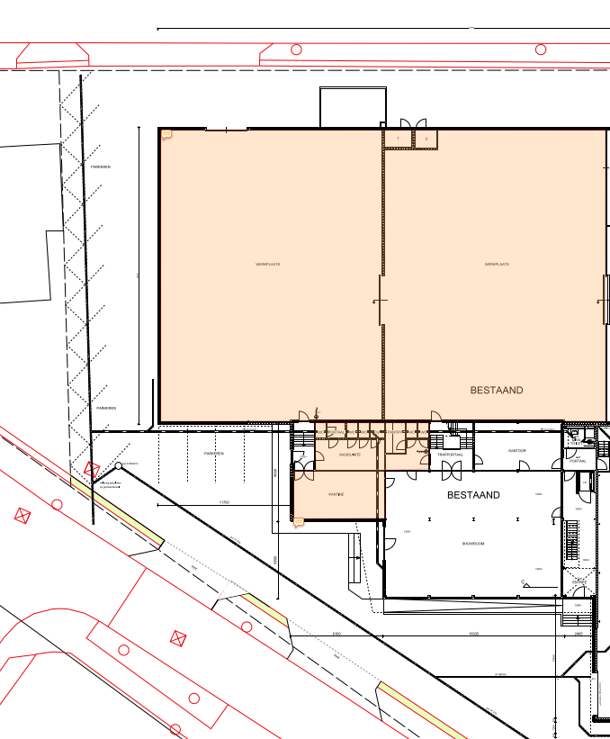
Oppervlakten:
1. Kantoorruimten:
Unit 6: ca. 91m² bruto.
Unit 4: ca. 148m² bruto.

2. Bedrijfsruimte:
Werkplaats: ca. 1.000m²;
Kantine: ca. 75m²
Let op, dit betreft incl. machines en in mogelijk gezamenlijk gebruik, e.e.a. in overleg.

Kenmerken van het kantoorverzamelgebouw:
– Voordelige huurprijzen;
– Kantoorruimten onder andere voorzien van PVC-vloer;
– Eigen spreekkamers aanwezig;
– Airco (verwarmen en koelen)
– LED-verlichting;
– Koffie en thee wordt verzorgd;
– Eigen parkeerterrein voor vaste huurders en bezoekersparkeerplaatsen;

Energielabel kantoorruimte:
Label A+++, geldig tot 1 juni 2032.

Ligging:
Het object is goed te bereiken via Helmond – Eindhoven – Geldrop en ligt op korte afstand van de doorgaande weg Helmond-Geldrop. Vanuit de doorgaande weg Helmond-Geldrop zijn diverse uitvalswegen goed bereikbaar waaronder de snelweg A67 (Eindhoven-Venlo/Duitsland). Daarnaast is het object centraal gelegen in het stedelijk gebied Helmond-Eindhoven. De A270 (snelweg richting Eindhoven is in de nabijheid gelegen.

HUURGEGEVENS:
Huurprijs:
Unit 6: € 875,= per maand excl. BTW.
Unit 4: € 1.395,= per maand excl. BTW.

Werkplaats: op aanvraag.

Servicekosten (kantoorruimte):
Verrekenbaar voorschot á € 50,= per bruto m² excl. BTW.

Leveringen en diensten t.b.v. de servicekosten:
– Levering energie;
– Levering water;
– Levering internet;
– Schoonmaak algemene ruimten;
– Koffie + thee;
– Glasbewassing;
– Onderhoud en reparaties;
– Alarm;
– OZB gebruikersdeel;
– Beheerkosten;
– Administratiekosten;
– Afval verwijdering.

Huurbetaling:
De huurbetaling per maand inclusief overige kosten dient bij vooruitbetaling te worden voldaan.

Huurindexatie:
De huurprijs zal jaarlijks, voor het eerst één jaar na ingangsdatum van de overeenkomst, worden aangepast op basis van het consumentindexcijfer (CPI) reeds CPI-Alle Huishoudens (basisjaar 2015=100) gepubliceerd door het Centraal Bureau voor de Statistiek.

Huurovereenkomst:
ROZ-model (Raad voor Onroerende Zaken), februari 2015, huurovereenkomst kantoorruimte en andere bedrijfsruimte in de zin van artikel 7:230a BW, zoals gehanteerd door de Nederlandse Vereniging van Makelaars in onroerend goed (NVM).

Voorbehoud:
Een en ander geschiedt onder aanvaarding en uitdrukkelijk voorbehoud goedkeuring opdrachtgever.

Omzetbelasting:
Indien huurder niet aan het 90% criterium voldoet, zal er van rechtswege sprake zijn van omzetbelasting vrijgestelde huur. In dat geval zal de overeengekomen kale huurprijs zodanig worden verhoogd dat het voor de verhuurder ontstane financiële nadeel wordt gecompenseerd.

Adriaan van den Heuvel
Interesse?

Voor meer informatie of het plannen van een bezichtiging helpt Richard je graag verder.

Heb je liever direct contact met Richard?
Delen

Kenmerken

Overdacht
Huurprijs € 115
Status Beschikbaar
Aanvaarding In overleg
Bouw
Type Kantoorruimte
Bouwtype Bestaande bouw
Bouwjaar 2020
Oppervlakten
Oppervlakte bedrijfshal 1.075 m²
Vrije hoogte 450 meter
Energie
Energielabel A+++
Kadastrale gegevens
Mierlo B 1931
Oppervlakte 3.794 m²
Eigendomssituatie Volle eigendom
Locatie
Adres Brugstraat 81
Postcode 5731 HG
Plaats Mierlo
Provincie Noord-Brabant
Land Nederland

Bekijk alle BOG objecten in Mierlo

Bekijk aanbod

Op zoek naar het perfecte pand voor jouw onderneming of belegging?

Als ondernemer of belegger is het vinden van het juiste pand essentieel voor het succes van je bedrijf of investering. Of je nu een winkelruimte, kantoor, opslagruimte of een commercieel pand zoekt, het proces kan overweldigend zijn. Maar geen zorgen, wij helpen je graag bij elke stap.

Gratis zoekopdracht
Bedrijfspand-verhuren-wetten-en-regels