Dr. Dreeslaan 206 5707 KE Helmond

278 m² bedrijfshal Bouwjaar 2025

€ 495.000 k.k.

Omschrijving

VOLLEDIG VERGUNDE BEDRIJFSWONING MET NIEUW GEREALISEERDE BEDRIJFSHAL TE KOOP (ZONDER OVERDRACHTSBELASTING)

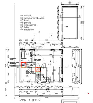
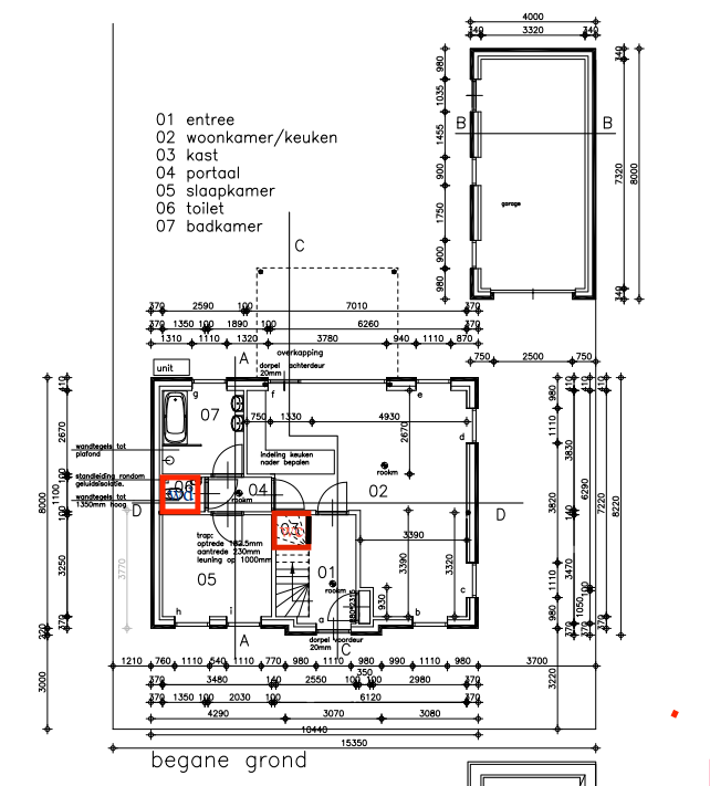
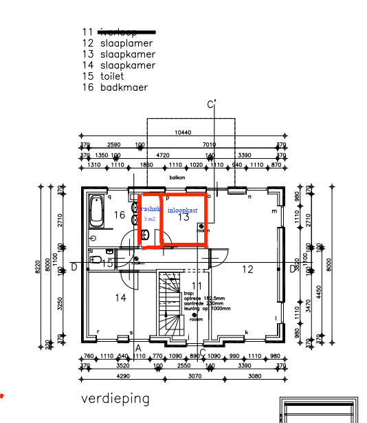
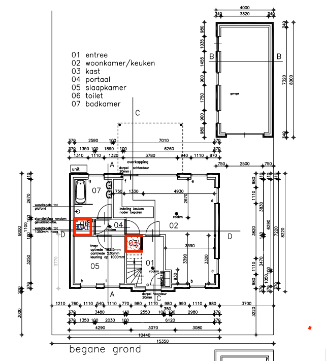
Oppervlakten van het plan:
– Bedrijfsruimte: ca. 278m²
– Bedrijfswoning: ca. 180m²

Deze oppervlakten zijn indicatief gemeten en mogen niet als NEN2580 meetrapport worden beschouwd.
Aan deze informatie kunnen geen rechten worden ontleend.

Stand van zaken omgevingsvergunning:
– Huidige bouwplan is volledig vergund (incl. bedrijfswoning);
– Bouwaansluiting aanwezig;
– Wateraansluiting aanwezig;
– Bodemonderzoeken reeds uitgevoerd.

Opleveringsniveau bedrijfsruimte:
– Monolitisch afgewerkte betonvloer;
– Betonnen borstwering;
– Hoogwaardige stalen sandwichpanelen (zwart);
– Vloerverwarming aanwezig;
– Drie elektrische overheaddeuren
– Meterkast met elektra (3x25A) en water;
– Vrije hoogte: ca. 5,50m.
– Riolering + wateraansluiting kantoorruimte voorbereid;

Kadastrale gegevens:
Gemeente: Helmond;
Sectie: T
Nummer: 7995
Groot: 820 m²

Ligging
Plan de Hoefkens is gelegen aan de Dr. Dreeslaan in Helmond ‘t Hout. Aan de noordzijde grenst het plan aan de Burgemeester Krollaan en aan de zuidzijde aan De Hoefkens. Station Helmond ‘t Hout bevindt zich op loopafstand. En op steenworp afstand ligt de Europaweg / N270. Aan de overzijde van het spoor aan de Hoofdstraat in Mierlo Hout ligt een wijkwinkelcentrum en een basisschool. De aanliggende woonwijk is te kwalificeren als uitstekend. Het wordt gekenmerkt door vrijstaande woningen, brede straten en veel ruimte voor groen en spelen. Dit maakt het tot een uiterst aangenaam woonklimaat.
Bestemmingsplan:
Ter plaatse geldt het bestemmingsplan “’t Hout – Hoek Dr Dreeslaan – Hoefkens”.
Het object heeft hierin de bestemming “Bedrijf”.

Functieaanduiding:
Specifieke vorm van bedrijf – 1.

Binnen deze bestemming is toegestaan:
Bedrijven in de milieucategorie 1 en 2;
Commerciële dienstverlening en aan huis gebonden beroepen, doch met uitzondering van consumentgebonden dienstverlening;

De overige bouwregels zijn op aanvraag beschikbaar.

KOOPGEGEVENS:
Koopprijs: € 495.000,= kosten koper excl. BTW.

Aanvaarding:
In overleg.

Overdrachtsbelasting:
Niet van toepassing.

Omzetbelasting:
Van toepassing.

Zekerheidsstelling:
Waarborgsom of bankgarantie ter grootte van 10% van de koopsom.

Voorbehoud:
Een en ander geschiedt onder aanvaarding en voorbehoud goedkeuring opdrachtgever.

Adriaan van den Heuvel
Interesse?

Voor meer informatie of het plannen van een bezichtiging helpt Richard je graag verder.

Heb je liever direct contact met Richard?
Delen

Kenmerken

Overdacht
Vraagprijs € 495.000
Koopconditie Kosten koper
Status Beschikbaar
Aanvaarding In overleg
Bouw
Type Bedrijfsruimte
Bouwtype Bestaande bouw
Bouwjaar 2025
Oppervlakten
Oppervlakte bedrijfshal 278 m²
Vrije hoogte 550 meter
Kadastrale gegevens
Helmond T 7995
Oppervlakte 820 m²
Eigendomssituatie Volle eigendom
Omgeving
Omgeving Bedrijventerrein, In woonwijk
Locatie
Adres Dr. Dreeslaan 206
Postcode 5707 KE
Plaats Helmond
Provincie Noord-Brabant
Land Nederland

Bekijk alle BOG objecten in Helmond

Bekijk aanbod

Op zoek naar het perfecte pand voor jouw onderneming of belegging?

Als ondernemer of belegger is het vinden van het juiste pand essentieel voor het succes van je bedrijf of investering. Of je nu een winkelruimte, kantoor, opslagruimte of een commercieel pand zoekt, het proces kan overweldigend zijn. Maar geen zorgen, wij helpen je graag bij elke stap.

Gratis zoekopdracht
Bedrijfspand-verhuren-wetten-en-regels