Onder bod

Cornelis de Houtmanstraat 11 5684 CW Best

110 m²wonen 182 m² perceel 4 slaapkamers Bouwjaar 1963

€ 450.000 k.k.

Omschrijving

Als je een woning wil waar je direct kunt wonen en genieten, dan hoef je niet verder te zoeken! Een leuke hoekwoning met vier slaapkamers, een open keuken, een moderne badkamer, een vrijstaande stenen berging en volop bergruimte. De woning is goed onderhouden en steeds gemoderniseerd.
Het huis ligt in een gemoedelijke buurt met alle voorzieningen om de hoek. Al met al een ideale locatie! Kom gerust kijken, we laten het je graag zien.

BIJZONDERHEDEN:
– Goed onderhouden hoekwoning met vier slaapkamers
– Privacy biedende tuin
– Gedeeltelijk kunststof kozijnen met HR++ beglazing
– Schilderwerk 2022, kozijnen gewrapt in 2026
– Meterkast 2011 vernieuwd
– Platdak uitbouw in 2023 opnieuw bekleed
– Dakpannen nagenoeg gehele dak in 2024 vervangen
– Dak- en muurisolatie
– In rustige, kindervriendelijke woonwijk vlak bij het centrum van Best
– Dicht bij allerlei voorzieningen zoals scholen, winkels, openbaar vervoer, treinstation, sportvoorzieningen en uitvalswegen naar centrum Eindhoven, ASML, Eindhoven Airport, HTC.

INDELING:

BEGANE GROND:

HAL EN TOILET:
De hal geeft je toegang tot de trapopgang, de trapkast met extra bergruimte en de vernieuwde meter, de woonkamer met open keuken en het toilet. De volledig betegelde toiletruimte heeft een vrijhangend toilet en bijpassend fonteintje.

WOONKAMER:
Meteen als je de woonkamer binnenkomt, ervaar je ruimte en licht. Het grote kunststof raam (met HR++ beglazing) aan de achterzijde biedt uitzicht op de tuin. Het is een sfeervolle kamer met de openhaard en de mooie massief houten vloer. Bij de haard zit een gasaansluiting zodat je er ook een gashaard kunt plaatsen. Het geheel vormt een open concept waarbij de woonkamer wordt gecombineerd met een open keuken.

KEUKEN:
De keuken bestaat uit een grote wandopstelling met een mooi houten aanrechtblad en veel werk- en bergruimte. De keuken is voorzien van inbouwapparatuur zoals de koelkast, vriezer en een vijfpits gaskookplaat met daarboven een RVS afzuigkap. Verder is een oven, een combi-oven en een vaatwasmachine ingebouwd. Tussen de keuken en de kamer is een bar geplaatst voor nóg meer werkruimte of om aan te zitten voor het ontbijt of gezellig te kletsen terwijl het eten staat te pruttelen. Dankzij het open concept heb je vanuit de keuken ook zicht op de gehele woonkamer. Een heerlijke ruimte dus die het hart vormt van het huis.

EERSTE VERDIEPING:
De overloop geeft toegang tot drie slaapkamers en de badkamer. De ruime ouderslaapkamer ligt aan de achterzijde van de woning en heeft een grote inbouwkast met schuifdeuren. Het grote raam is van kunststof met HR++ beglazing en zorgt voor veel lichtinval. De slaapkamer aan de achterzijde heeft ook een kunststof raam en is nu in gebruik als babykamer. De andere slaapkamer is groter en ligt aan aan de voorzijde met een groot raam dat uitzicht biedt op de straat. De overloop en slaapkamers zijn voorzien van een laminaatvloer.

BADKAMER:
De moderne badkamer is volledig betegeld met een combinatie van witte, landscape tegels en houtlook tegels. De inloopdouche heeft een thermostaatkraan en een handdouche. Heel handig is het planchet waar je op kunt zitten of douche-artikelen op kunt zetten.
Een modern badmeubel wordt gecombineerd met een spiegel met verlichting. Daarnaast is een hangtoilet en de designradiator zet het puntje op de i. De badkamer wordt mechanisch geventileerd. Het raam zorgt daarnaast voor natuurlijke ventilatie indien gewenst.

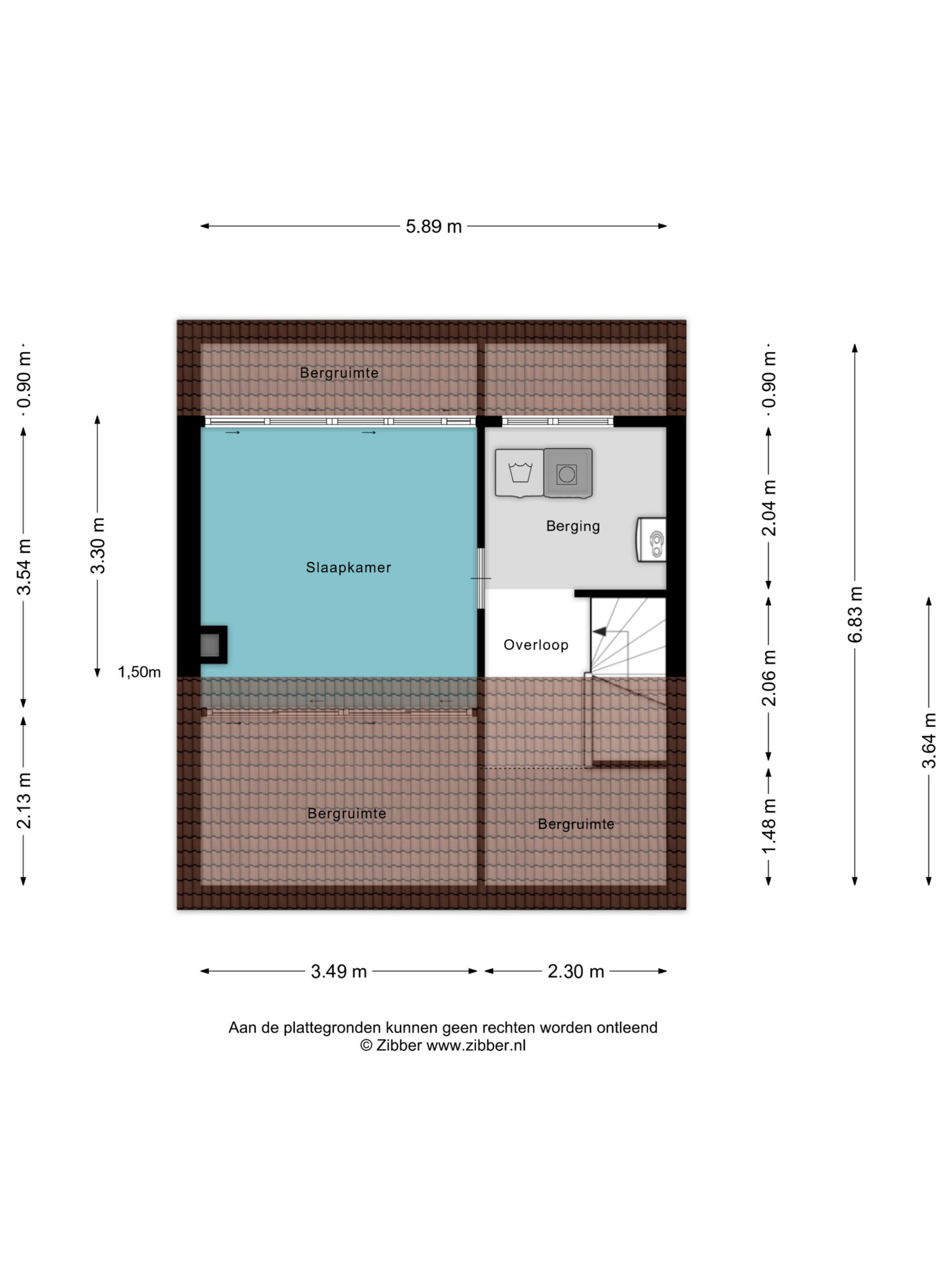
TWEEDE VERDIEPING:
Een vaste trap leidt je naar de tweede verdieping met de was- en cv-ruimte, veel bergruimte en de vierde slaapkamer. Een groot dakkapel met kunststof kozijnen met HR++ beglazing zorgt voor veel ruimte en licht. Er is veel bergruimte achter de schuifdeuren en onder de dakkapellen.

TUIN:
Naast de voortuin en het stukje tuin aan de zijkant, heb je een fijne achtertuin met veel privacy. De tuin ligt op het zuidwesten zodat je altijd wel ergens zon of juist schaduw hebt. Het gazon wordt gecombineerd met borders met vaste beplanting. Er zijn elektrische aansluitingen en een waterkraan. Direct aan het huis is een terras met zonwering en aansluitend een pad dat leidt naar de stenen berging en de poort achter in de tuin. De berging is ideaal voor je gereedschap, fietsen en tuinmeubels.

WELKOM:
Kortom: een goed onderhouden woning met een privacy biedende tuin zonder enige inkijk en dat op een goede locatie in een gemoedelijke, fijne buurt. Kom gerust kijken, we laten het je graag zien en ervaren!

Interesse?

Voor meer informatie of het plannen van een bezichtiging helpen we je graag verder.

Heb je liever direct contact met ons team?
Deel deze woning

Kenmerken

Overdacht
Vraagprijs € 450.000
Prijs per m² € 4.091
Koopconditie Kosten koper
Status Onder bod
Aanvaarding In overleg
Bouw
Object type Hoekwoning
Type Hoekwoning
Soort Eengezinswoning
Bouwtype Bestaande bouw
Bouwjaar 1963
Soort dak Samengesteld dak
Oppervlakten en inhoud
Wonen 110 m²
Externe bergruimte 9 m²
Perceel 182 m²
Inhoud 391 m²
Indeling
Aantal kamers 5
Aantal slaapkamers 4
Aantal badkamers 1
Aantal woonlagen 2
Voorzieningen Mechanische ventilatie, Buitenzonwering, Glasvezel kabel, Natuurlijke ventilatie
Energie
Energielabel C
Isolatie Dakisolatie, Muurisolatie, Dubbel glas
Verwarming CV Ketel
Warm water CV Ketel
CV Ketel
Brandstof Gas
Bouwjaar 2014
Eigendom Eigendom
Type Remeha Calenta
Kadastrale gegevens
Best H 382
Oppervlakte 182 m²
Eigendomssituatie Volle eigendom
Buitenruimte
Liggingen Aan rustige weg, In woonwijk
Tuin Achtertuin, Voortuin, Zijtuin
Oppervlakte 81 m²
Breedte 7 meter
Diepte 12 meter
Ligging tuin Zuid-west
Heeft achterom Ja
Berging
Soort Vrijstaand steen
Voorzieningen Voorzien van elektra
Parkeergelegenheid
Soort parkeergelegenheid Openbaar parkeren
Locatie
Adres Cornelis de Houtmanstraat 11
Postcode 5684 CW
Plaats Best
Provincie Noord-Brabant
Land Nederland

Bekijk alle woningen in Best

Bekijk aanbod

Niet gevonden wat je zocht?

We helpen je graag met het zoeken naar de perfecte woning voor jou!

Gratis zoekopdracht

Gratis waardebepaling

Wil je graag jouw huis verkopen in Helmond, Eindhoven, de Peel of de Kempen en ben je benieuwd wat jouw huis waard is? Ontvang binnen 5 minuten de geschatte waarde van jouw woning.

Bereken het nu
Adriaan van den Heuvel - Agrarisch - Sfeerbeeld 3