Diepenbrockstraat 4 5654 GC Eindhoven
91 m²wonen 144 m² perceel 2 slaapkamers Bouwjaar 1947€ 375.000 k.k.
Omschrijving
Diepenbrockstraat 4 is een leuke, uitgebouwde woning met een ruime keuken en een grote badkamer op de begane grond. De gehele begane grond is voorzien van vloerverwarming. Op de eerste verdieping heb je twee slaapkamers en een bergruimte. De tweede verdieping is een bergzolder. Ook buiten is het genieten met volop mogelijkheden: een speelplek voor de kinderen, tuinieren of lekker ontspannen. Achter in de tuin is de stenen berging en de achterom.
• Ruime badkamer benedenverdieping
• Ruime woonkeuken
• Gedeeltelijk kunststof kozijnen met HR beglazing
• Vloerverwarming gehele begane grond
• Woning is energiezuiniger dan label doet vermoeden
• Mooie paneeldeuren
• Rolluiken begane grond en eerste verdieping
• Vlakbij allerlei voorzieningen, het centrum en uitvalswegen
• Dichtbij HTC, ASML en Genneper Parken
Algemeen
De woning ligt in een rustige straat in een kindvriendelijke wijk met allerlei voorzieningen op loopafstand zoals scholen, speeltuinen, restaurantjes, supermarkten en winkels op het Franz Leharplein en het Kastelenplein. Je zit zo in het centrum van Eindhoven en in een mum van tijd ben je op HTC, ASML of op de snelweg. Je bent op loopafstand van de Genneper Parken waar je heerlijk kunt wandelen en recreëren.
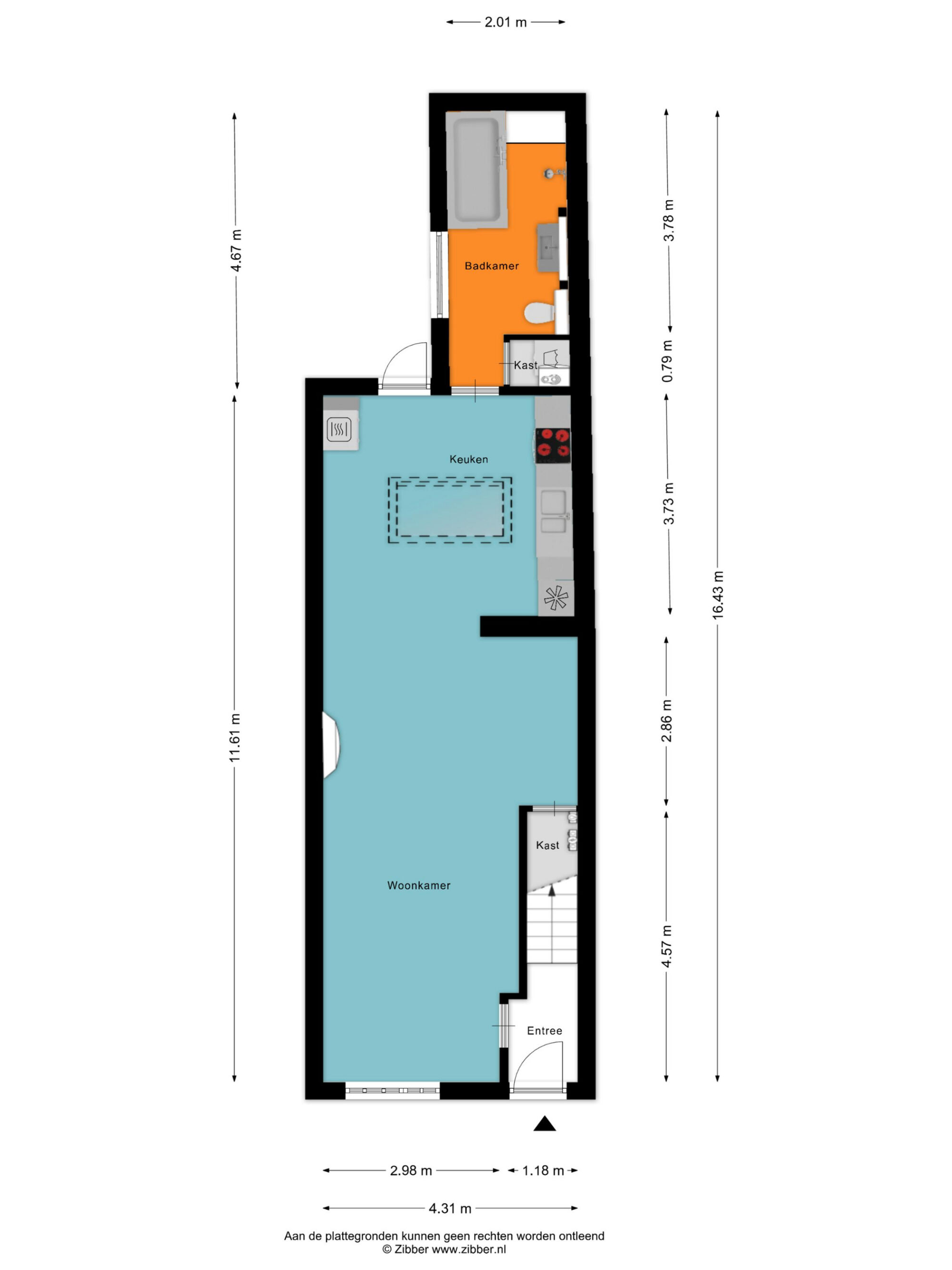
BEGANE GROND
Entree
Dat is al een mooie binnenkomer: de voordeur kan in twee gedeeltes open: de bovenzijde kan apart van de onderzijde worden geopend. Heel handig om te luchten en tegelijk kleine kinderen en huisdieren veilig binnen te laten blijven of om een praatje met degene die aan de voordeur staat, te maken. De hal geeft je toegang tot de trap naar de eerste verdieping en naar de woonkamer. Doordat niet alle isolatie kon worden aangetoond, is energielabel E afgegeven. In werkelijkheid is de woning energiezuiniger, o.a. door de geïsoleerde vloer.
Woonkamer
Vanwege de uitbouw krijg je een heel ruimtelijk effect in de woonkamer. Je kijkt helemaal door naar de achterzijde van het huis. Het raam aan de voorzijde zorgt voor veel lichtinval. Het is een sfeervolle ruimte met de mooie plafondlijsten, plafondranden en ornamenten. Een van de wanden is bezet met steenstrips. Op de verwarmde vloer ligt een vloertegel in een frisse, neutrale kleur. De woonkamer geeft toegang tot de trapkast met veel bergruimte. Hier hangt tevens de vernieuwde meterkast.
Keuken en eetkamer
n de uitbouw is de moderne woonkeuken met strak gestucte wanden en plafond. Een heerlijk lichte ruimte vanwege de lichtkoepel. Er is meer dan genoeg ruimte voor een royale eettafel. De keuken biedt je volop werk- en bergruimte. Het is een mooie keuken met inbouwapparatuur zoals een grote oven en een keramische kookplaat met daarboven een strakke RVS schouw. In de andere wandopstelling is een koelkast en een combi-oven ingebouwd. Vanuit de keuken heb je toegang tot de tuin, de was-/stookruimte met de cv en een aansluiting voor de wasmachine en je loopt zo de badkamer in.
Badkamer
Wat een heerlijk grote badkamer! Een mooie combinatie van witte en antracietkleurige landscape tegels. De badkamer is voorzien van een vloerverwarming. Zelfs het douchebankje is verwarmd. Je kunt heerlijk genieten in het ligbad met jacuzzi. Verder heb je een inloopdouche met een thermostaatkraan, een wastafel in meubel en een wandcloset.
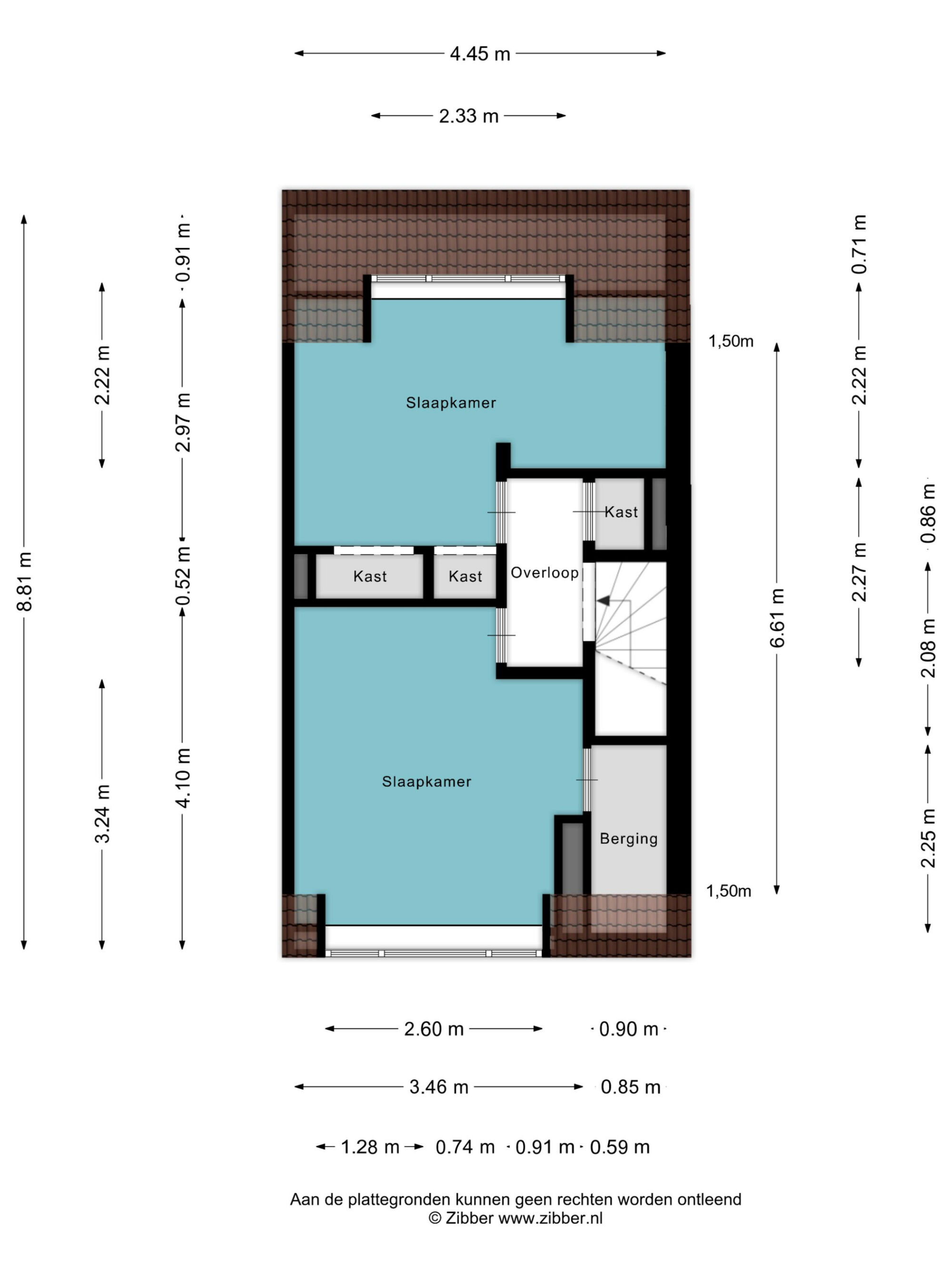
EERSTE VERDIEPING
De overloop geeft toegang twee slaapkamers en een berging. Op deze verdieping zijn kunststof kozijnen met isolerende beglazing toegepast. Originele paneeldeuren geven je toegang tot de slaapkamers. Beide slaapkamers hebben een groot dakkapel zodat je extra ruimte en licht hebt.
Slaapkamers
De ouderslaapkamer heeft een fraaie lambrisering. Een deur leidt je naar de grote inbouwkast/berging. De andere slaapkamer is nu ingericht als kleedkamer. In de open inbouwkast is een wateraansluiting omdat hier voorheen een douche was. Ook deze kamer biedt volop ruimte en licht vanwege de dakkapel.
TWEEDE VERDIEPING
Op de overloop is via een luik de ruime bergzolder bereikbaar. Met het plaatsen van een vaste trap en een dakopbouw kun je hier nóg een kamer maken en voeg je zo extra woonruimte toe.
TUIN
Heerlijk genieten in de zon in deze gezellig tuin. Hier worden houten vlonders afgewisseld met (terras)bestrating. De tuin biedt veel privacy en wordt geflankeerd door en stenen en een houten schutting. Achter in de tuin is een stenen berging met elektra. Een poort leidt je naar het pad achterom.
WELKOM
Kom gerust kijken naar deze leuke woning. Maak een afspraak, we leiden je graag rond.
Interesse?
Voor meer informatie of het plannen van een bezichtiging helpen we je graag verder.
Heb je liever direct contact met ons team?
Deel deze woning
Kenmerken
Overdacht
| Vraagprijs | € 375.000 |
| Prijs per m² | € 4.121 |
| Koopconditie | Kosten koper |
| Status | Beschikbaar |
| Aanvaarding | In overleg |
Bouw
| Object type | Tussenwoning |
| Type | Tussenwoning |
| Soort | Eengezinswoning |
| Bouwtype | Bestaande bouw |
| Bouwjaar | 1947 |
| Soort dak | Samengesteld dak |
Oppervlakten en inhoud
| Wonen | 91 m² |
| Externe bergruimte | 9 m² |
| Perceel | 144 m² |
| Inhoud | 323 m² |
Indeling
| Aantal kamers | 3 |
| Aantal slaapkamers | 2 |
| Aantal badkamers | 1 |
| Aantal woonlagen | 2 |
| Voorzieningen | Rolluiken, Natuurlijke ventilatie |
Energie
| Energielabel | E |
| Isolatie | Vloerisolatie, Dubbel glas, Gedeeltelijk dubbel glas |
| Verwarming | CV Ketel |
| Warm water | CV Ketel |
CV Ketel
| Brandstof | Gas |
| Bouwjaar | 2018 |
| Eigendom | Huur |
| Type | Intergas HRE 28/24 RF2 CW 4+A labe |
Kadastrale gegevens
| Gestel C 3078 | |
| Oppervlakte | 144 m² |
| Eigendomssituatie | Volle eigendom |
Buitenruimte
| Liggingen | Aan rustige weg, In woonwijk |
| Tuin | Achtertuin, Voortuin |
| Oppervlakte | 58 m² |
| Breedte | 5 meter |
| Diepte | 15 meter |
| Ligging tuin | Noord-west |
| Heeft achterom | Ja |
Berging
| Soort | Vrijstaand steen |
| Voorzieningen | Voorzien van elektra |
Parkeergelegenheid
| Soort parkeergelegenheid | Openbaar parkeren |
Locatie
| Adres | Diepenbrockstraat 4 |
| Postcode | 5654 GC |
| Plaats | Eindhoven |
| Provincie | Noord-Brabant |
| Land | Nederland |
Vergelijkbaar in de buurt
Bekijk alle woningen in Eindhoven
Bekijk aanbodNiet gevonden wat je zocht?
We helpen je graag met het zoeken naar de perfecte woning voor jou!
Gratis zoekopdracht