Verkocht onder voorbehoud

Gaaistraat 21 5702 LB Helmond

101 m²wonen 135 m² perceel 4 slaapkamers Bouwjaar 1969

Omschrijving

Fijne starterswoning met berging en een prima ligging in de gewilde Vogeltjesbuurt!

BIJZONDERHEDEN:
– Instapklaar, netjes afgewerkt huis;
– Ruime doorzon woonkamer en vier slaapkamers;
– Leuke en onderhoudsvriendelijke tuin;
– Toplocatie in Helmond Noord, met alles binnen handbereik;
– Perfect als starterswoning: betaalbaar, praktisch en comfortabel;
– Door verkoper wordt een bankgarantie of waarborgsom verlangd
– De 2e verdieping kan officieel niet meegerekend worden in het woonoppervlakte omdat de grootte van het raam volgens de NEN-2580 richtlijnen niet groter is dan 0,5 m². Zoals u op de foto’s kunt zien kan deze ruimte absoluut gezien worden als volwaardige woonruimte. Deze is namelijk 20 m² groot en word nu aangemerkt als overig inpandige ruimte.

ALGEMEEN:
Ben je op zoek naar een comfortabele en goed afgewerkte woning waar je direct kunt intrekken? Dan is deze doorzonwoning in Helmond Noord dé ideale plek om jouw woonavontuur te starten. Met een fijne ligging in de Vogeltjesbuurt en alle voorzieningen op loopafstand, biedt Gaaistraat 21 een uitstekende basis voor starters en jonge gezinnen. Gaaistraat 21 ligt in de populaire Vogeltjesbuurt van Helmond Noord. Hier woon je rustig met:

• Winkelcentrum De Bus op loopafstand – voor al je dagelijkse boodschappen
• Basisscholen en speelvoorzieningen in de buurt – ideaal voor gezinnen
• Uitvalswegen dichtbij – snel op weg naar Eindhoven, Den Bosch of de A67

BEGANE GROND
HAL & ENTREE:
Voorentree met toegang tot de hal. In de hal bevinden zich het geheel betegelde toilet, de meterkast en de trapopgang. Vanuit de hal bereikt u daarnaast de woonkamer en de keuken.

WOONKAMER:
Sfeervolle doorzonwoonkamer met laminaatvloer. Dankzij de grote raampartijen geniet de ruimte van veel natuurlijk licht, wat zorgt voor een ruimtelijk en open karakter.

KEUKEN:
Keuken met een nette inrichting in wandopstelling, voorzien van volop kastruimte, een inbouwgaskookplaat, inbouw vaatwasser (2025) en een afzuigkap. Daarnaast beschikt de keuken over een praktische trapkast, ideaal voor het opbergen van uw voorraad. Het dak is vernieuwd in 2025.

EERSTE VERDIEPING:
Overloop waaraan gelegen 3 ruime slaapkamers en de geheel betegelde badkamer met wastafel; douchecabine en toilet. Ramen zorgen voor daglichttoetreding en geven u de mogelijkheid tot natuurlijk ventileren.

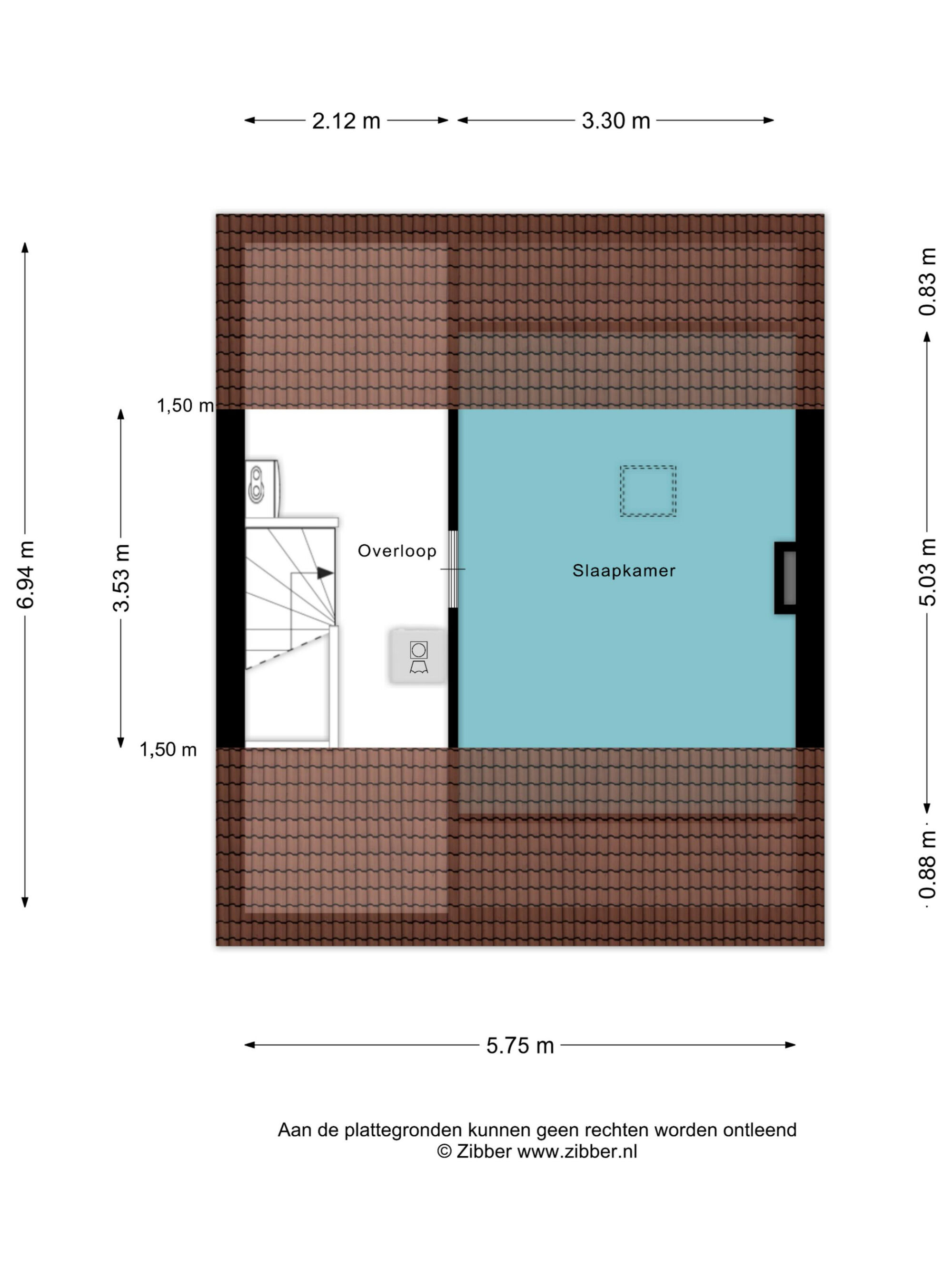
TWEEDE VERDIEPING:
Voorzolder met opstelling van de c.v.-combiketel en praktische aansluitingen voor wasapparatuur, waardoor deze ruimte uitstekend geschikt is als was- en bergruimte. Aansluitend bevindt zich de zolderslaapkamer, een fijne en lichte kamer die is voorzien van een dakraam, wat zorgt voor prettige lichtinval en een aangename sfeer.

TUIN:
Ruime tuin voorzien van een terras en een verzorgd grasperk, volledig omheind voor privacy. De tuin beschikt over een eigen achterom en een grote berging achterin, ideaal voor het opbergen van tuinspullen en fietsen.

Helaas, dit object is al verkocht

Bekijk hieronder ons actuele aanbod

Bekijk ons aanbod

Bekijk alle woningen in Helmond

Bekijk aanbod

Niet gevonden wat je zocht?

We helpen je graag met het zoeken naar de perfecte woning voor jou!

Gratis zoekopdracht

Gratis waardebepaling

Wil je graag jouw huis verkopen in Helmond, Eindhoven, de Peel of de Kempen en ben je benieuwd wat jouw huis waard is? Ontvang binnen 5 minuten de geschatte waarde van jouw woning.

Bereken het nu
Adriaan van den Heuvel - Agrarisch - Sfeerbeeld 3