Havenweg 46A 5701 RS Helmond

38 m²wonen 1 slaapkamers Bouwjaar 1994

€ 270.000 k.k.

Omschrijving

Op de eerste verdieping van een volledig gemoderniseerd en kleinschalig appartementencomplex in het midden van het bruisende stadscentrum van Helmond is dit leuke appartement met eigen buitenruimte gelegen! Een unieke kans voor de starter welke centraal wenst te gaan wonen met alle voorzieningen nabij, kom dit leuke appartement dan ook snel bekijken, wij heten u van harte welkom!

STARTERSLENING:
Droom je van je eigen appartement in Helmond? Met de starterslening van de gemeente Helmond wordt die eerste stap een stuk makkelijker. Deze lening overbrugt het verschil tussen wat je kunt lenen bij de bank en de aankoopprijs van je woning.

Het mooie is: in de eerste jaren betaal je vaak geen rente en aflossing. Zo krijg je de tijd om rustig te wennen aan je nieuwe woonlasten én te genieten van je eigen plek midden in het centrum van Helmond.

BIJZONDERHEDEN:
– Instapklaar appartement in een kleinschalig appartementencomplex welke in 2025 compleet gemoderniseerd en gerenoveerd is;
– Gelegen op de eerste verdieping, per trap bereikbaar welke ook zeer strak uitgevoerd is;
– Voorzien van een nieuwe C.V.-ketel, moderne meterkast en fijne binnenruimten;
– Brievenbus en bellentableau met video op de begane grond bij de toegangsdeur gelegen;
– Voorzien van een eigen balkon op het zonnige Zuidwesten, met tuindeuren in de woonkamer;
– Geheel voorzien van vloerverwarming en energielabel A;
– Het appartement maakt onderdeel uit van een Vereniging van Eigenaars, servicekosten bedragen: circa € 60,- per maand;

ALGEMEEN:
Aan het Burgemeester Geukerspark, een van de mooiste locaties van het bruisende stadscentrum van Helmond, bevindt zich dit compleet vernieuwde appartementencomplex. Kleinschalig, modern en strak uitgevoerd zijn de kernwaarden van dit leuke appartementencomplex!

De Havenweg ligt op een zeer gunstige locatie, met het N.S.-treinstation, supermarkten, diverse terrassen, speciaalzaken en horecagelegenheden allemaal op loopafstand. Hierdoor kunt u optimaal genieten van het gemak en de levendigheid van het stadscentrum. Daarbij betreft dit appartement een driekamerappartement met prachtig uitzicht over dit sfeervolle park, een unieke kans welke u niet voorbij kunt laten gaan!

ENTREE COMPLEX:
Bij aankomst aan het appartementencomplex aan de Havenweg krijgt u via de video-intercom toegang tot het gebouw. Hier bevinden zich tevens de brievenbussen van de vier appartementen die via deze deur toegang krijgen tot het complex. Hierdoor is het appartementencomplex kleinschalig en rustig. Bij binnenkomst gaat automatisch de binnenverlichting aan in de algemene ruimtes.

Via de trapopgang bereikt u de eerste verdieping waar aan de rechterzijde de toegangsdeur van het appartement aan Havenweg 46 A gelegen is.

ENTREE APPARTEMENT:
Vanuit de portiek bereiken we de toegangsdeur van het appartement, hier heeft u de gelegenheid een garderobe te plaatsen. Aan de linkerzijde bevindt zich de toegang tot de badkamer en aan de rechterzijde de woonkamer met open keuken. Dit appartement is geheel gemoderniseerd, voorzien van strakke wand- en plafondafwerking in de vorm van stucwerk, een hoogwaardige pvc-vloer met strakke plinten en een ruim aantal elektrapunten.

OPEN KEUKEN:
De woonkamer en keuken bevinden zich in open verbinding. De keuken is in wandopstelling geplaatst, voorzien van berg- en werkruimte. Aan inbouwapparatuur treffen we:

– Koelkast;
– Vaatwasser;
– Inductiekookplaat;
– Afzuigkap;
– Combi-oven.

WOONKAMER:
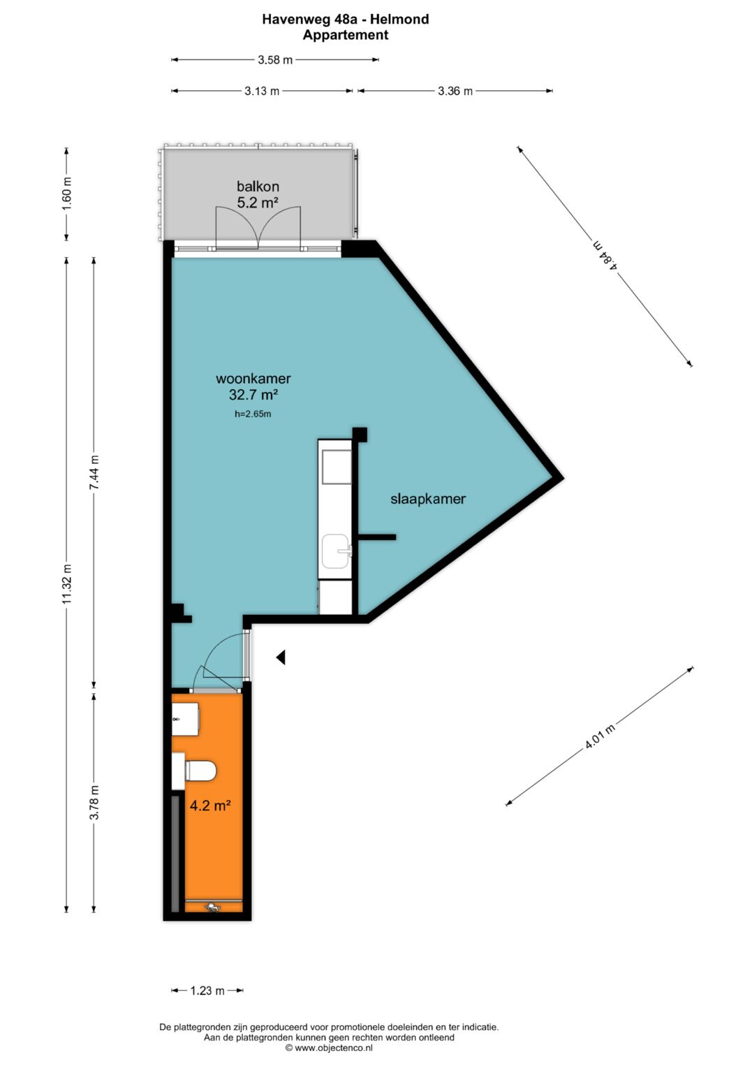
Tegenover deze keuken heeft u de ruimte een fijne eettafel te plaatsen. Verder heeft u aan de achterzijde van deze woonruimte de mogelijkheid een gezellige zithoek te plaatsen. Deze zithoek biedt ruimte voor een leuke bank en een televisieopstelling. Vanuit de dubbele tuindeuren, waarvan het staalwerk gepoedercoat is voor een duurzame uitstraling, bereikt u het balkon.

BALKON:
Via de dubbele tuindeuren bereiken we het fijne balkon, een ware toevoeging aan dit prettige appartement! Dit balkon biedt een zonnige ligging op het Zuidwesten en een hoge mate van privacy! Het balkon is aan de achterzijde van de Havenweg gelegen en grenst aan de achtergelegen ‘’Oude Aa’’, een rustige plek binnen het centrum van Helmond. Op dit balkon heeft u de ruimte een gezellig tuinsetje te plaatsen.

SLAAPRUIMTE:
Achter de woonkamer bevindt zich de slaapruimte, deze slaapruimte is perfect geschikt om uw tweepersoonsbed te plaatsen. Deze slaapruimte is tevens mogelijk afsluitbaar door bijvoorbeeld een room-devider, tevens bevinden zich hier de witgoedaansluitingen en een ruim aantal elektrapunten. Om een goede indruk van de fijne afmetingen te verkrijgen verwijzen wij graag naar de bijgevoegde indelingsplattegronden.

BADKAMER:
Aan de voorzijde van het appartement is de badkamer gesitueerd. Het betreft een extra ruime badkamer, voorzien van strak tegelwerk met extra grote tegels voor een moderne en luxe uitstraling. De badkamer is uitgerust met een inloopdouche, een wastafelmeubel en een wandcloset. Daarnaast is er centrale afzuiging aanwezig.

De beschreven servicekosten betreft een schatting vanwege het toevoegen van appartementsrechten, de definitieve servicekosten worden nog vastgesteld waarbij deze voor nu zeer defensief zijn geraamd, het betreft ten deze dus een circa bedrag welke naar sterke verwachting een stuk lager uitvallen.

Interesse?

Voor meer informatie of het plannen van een bezichtiging helpen we je graag verder.

Heb je liever direct contact met ons team?
Deel deze woning

Kenmerken

Overdacht
Vraagprijs € 270.000
Prijs per m² € 7.105
Koopconditie Kosten koper
Status Beschikbaar
Aanvaarding In overleg
Bouw
Type Appartement
Bouwtype Bestaande bouw
Bouwjaar 1994
Oppervlakten en inhoud
Wonen 38 m²
Gebouwgebonden buitenruimte 5 m²
Inhoud 127 m²
Indeling
Aantal kamers 2
Aantal slaapkamers 1
Aantal badkamers 1
Balkon Ja
Voorzieningen Mechanische ventilatie, Natuurlijke ventilatie
Energie
Energielabel A
Isolatie Dakisolatie, Muurisolatie, Vloerisolatie, Dubbel glas
Verwarming CV Ketel, Vloerverwarming geheel
Warm water CV Ketel
CV Ketel
Brandstof Gas
Bouwjaar 2025
Eigendom Eigendom
Kadastrale gegevens
Helmond I 2402
Eigendomssituatie Volle eigendom
Buitenruimte
Liggingen In centrum, Vrij uitzicht
Tuin Geen tuin
Parkeergelegenheid
Soort parkeergelegenheid Openbaar parkeren, Betaald parkeren, Parkeergarage, Parkeervergunningen
Locatie
Adres Havenweg 46A
Postcode 5701 RS
Plaats Helmond
Provincie Noord-Brabant
Land Nederland

Bekijk alle woningen in Helmond

Bekijk aanbod

Niet gevonden wat je zocht?

We helpen je graag met het zoeken naar de perfecte woning voor jou!

Gratis zoekopdracht

Gratis waardebepaling

Wil je graag jouw huis verkopen in Helmond, Eindhoven, de Peel of de Kempen en ben je benieuwd wat jouw huis waard is? Ontvang binnen 5 minuten de geschatte waarde van jouw woning.

Bereken het nu
Adriaan van den Heuvel - Agrarisch - Sfeerbeeld 3