Onder bod

Laathoeve 28 5708 SK Helmond

284 m²wonen 509 m² perceel 5 slaapkamers Bouwjaar 2021

€ 1.275.000 k.k.

Omschrijving

Vrijstaande woning (2021) in De Hoeves in Brandevoort met veel ruimte, licht en een doordachte indeling.

Vanaf het moment dat je binnenkomt, valt direct de ruimtelijkheid op. Speelse niveaus en grote raampartijen zorgen voor een open karakter. Deze woning aan de Laathoeve combineert luxe, comfort en karakter op overtuigende wijze.

Met een woonoppervlakte van 284 m², een doordachte split-level indeling en een hoogwaardig afwerkingsniveau is dit een huis waar kwaliteit en afwerking centraal staan. Elk detail, van materiaalkeuze tot maatwerkinterieur, is met zorg gekozen.

Ook op het gebied van duurzaamheid en techniek is het niveau hoog. De woning is volledig gasloos en voorzien van een aardwarmtepomp, vloerverwarming én -koeling. Met energielabel A++ sluit deze woning aan op de eisen van deze tijd.

De leefruimtes staan met elkaar in verbinding, maar bieden ook voldoende rust en privacy. Drie volwaardige zitkamers maken het mogelijk om te variëren tussen ontspannen, samenkomen en je even terugtrekken. Grote raampartijen zorgen voor veel licht en een prettig uitzicht.

De woonkeuken vormt het hart van het huis, een plek waar design en functionaliteit samenkomen. De open nok en de grote kroonluchter benadrukken de hoogte van de ruimte (9 meter hoog).

Verspreid over de woning bevinden zich vijf slaapkamers en twee luxe badkamers. Het souterrain is daarbij geen bijruimte, maar een volwaardige woonlaag met een zelfstandig karakter en zeker geen keldergevoel door de ramen.

De ligging in De Hoeves in Brandevoort geeft deze plek een bijzondere meerwaarde. De combinatie van dorpse charme, hoogwaardige architectuur en een uitstekende bereikbaarheid, met onder andere een treinstation op korte afstand en slechts 7 minuten van Eindhoven, maakt dit een zeer gewilde woonomgeving.

De zonnige tuin op het zuidwesten, de privacy van het hoekperceel en het ontbreken van directe overburen onderstrepen het wooncomfort.

Voor wie op zoek is naar een instapklare woning met karakter, ruimte en een hoog afwerkingsniveau.

Kenmerken in het kort
• Vrijstaande, onder architectuur gebouwde woning (2021) op een ruim hoekperceel
• Woonoppervlakte 284 m² | inhoud 1.053 m³ | perceel 509 m²
• 15 m² externe bergruimte

Indeling & ruimte
• Royale open woonkeuken, het hart van de woning
• Vijf slaapkamers
• Drie zitkamers
• Twee luxe badkamers
• Unieke split-level indeling met speelse hoogteverschillen
• Stijlvolle betonnen trappen

Duurzaam & energiezuinig
• Volledig gasloos
• Energielabel A++
• Aardwarmtepomp, elektrische boiler en vloerverwarming én -koeling

Afwerking & comfort
• Indrukwekkende raampartijen en fraaie zichtlijnen door de hele woning
• Leemstuc voor een aangenaam en gezond binnenklimaat
• Eikenhouten visgraatvloeren door de gehele woning
• Hoogwaardig maatwerkinterieur

Buiten & ligging
• Achtertuin op het zuidwesten met veel privacy
• Geen directe overburen
• Gelegen in De Hoeves, in het karakteristieke Brandevoort

Extra’s
• Glasvezel en datapunten door de gehele woning

BEGANE GROND
ENTREE:
De royale entree vormt een stijlvolle binnenkomer van de woning. De open hal geeft direct een eerste indruk van de ruimtelijkheid en het hoge afwerkingsniveau. Hier bevinden zich het toilet en een praktische garderobekast.

WOONKAMER:
De woonkamer is ruim opgezet en baadt in het licht dankzij de grote raampartijen. De visgraat eikenhouten vloer en leemgestucte wanden zorgen voor een warme, luxe sfeer.
Deze zitkamer is voorzien van een sfeervolle haard en een maatwerk kastenwand als centraal element. Houten shutters geven het geheel extra karakter.

WOONKEUKEN:
Via een subtiel niveauverschil bereik je de verhoogde woonkeuken, die direct indruk maakt door de royale hoogte en de open nok, geaccentueerd door een stijlvolle kroonluchter.

De keuken strekt zich uit over de volledige breedte van de ruimte en vormt een perfecte balans tussen design en functionaliteit. Het massieve werkblad in combinatie met de houtlook kastfronten zorgt voor een warme, tijdloze uitstraling. De keuken is uitgerust met hoogwaardige inbouwapparatuur, waaronder een BORA inductiekookplaat met geïntegreerde afzuiging, een vaatwasser en praktische koellades.

TUINKAMER:
Aansluitend bevindt zich, iets lager gelegen, de tuinkamer: een zonnige ruimte die perfect dienstdoet als speelkamer, bibliotheek of tweede zitkamer.

De open nok en de houten balken geven de ruimte een charmant karakter. De tuinkamer beschikt verder over een prachtige glazen harmonicapui met loopdeur, die volledig opengevouwen kan worden, waardoor binnen en buiten naadloos in elkaar overlopen.

BIJKEUKEN:
De praktische bijkeuken is voorzien van een spoelbak, een brede oven, een inbouwkoelkast en -vriezer en een opstelling voor wasmachine en droger, netjes weggewerkt in maatwerk kasten.

Inbouwkasten bieden extra bergruimte en een bijzonder detail vormt de schuifdeur met oude houten panelen, die zorgen voor een karaktervolle uitstraling. Naast de bijkeuken is een zij entree en tweede hal met grote kastenwand.

SOUTERRAIN:
Het souterrain is een volwaardige woonverdieping met veel lichtinval en vormt een unieke toevoeging aan de woning. Hier bevinden zich drie ruime slaapkamers, een luxe badkamer met inloopdouche en ligbad, een separaat toilet, een extra zitkamer en de technische ruimte.

De afwerking is consistent met de rest van de woning: hoogwaardige materialen, eikenhouten visgraatvloeren en leemstuc zorgen voor een warme uitstraling. De wanden zijn hier grijs geschilderd met kalklitir.

De badkamer is luxe uitgevoerd met marmerlook tegels, een ligbad, een ruime inloopdouche en een wastafelmeubel. Het toilet bevindt zich separaat.

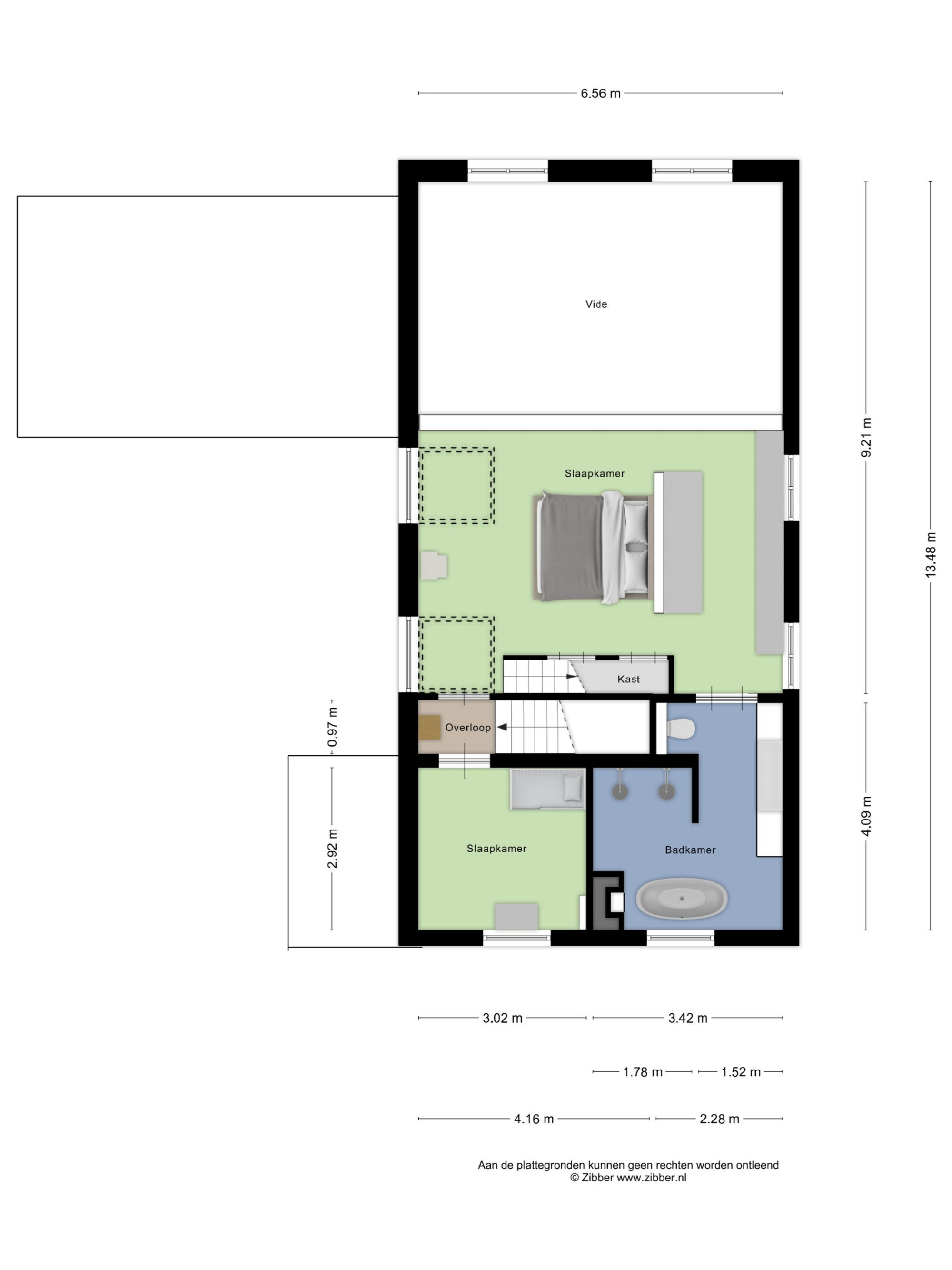
EERSTE VERDIEPING:
De eerste verdieping beschikt over twee slaapkamers en een luxe badkamer. De vide creëert een prachtig ruimtelijk effect en zorgt voor een prachtig uitzicht over de verdiepingen.

De hoofdslaapkamer is licht en ruim en beschikt over een praktische inloopkast. De tweede kamer is flexibel in te richten als slaap-, werk- of logeerkamer. Een halfronde antieke houten deur geeft toegang tot de luxe uitgevoerde badkamer met een dubbele inloopdouche, een vrijstaand ligbad, een ruim drie meter lange betonnen wastafel en een toilet.

TWEEDE VERDIEPING:
Via een vaste trap bereik je de tweede verdieping. Deze trap is tevens maatwerkinterieur en is voorzien van kastruimte eronder. Boven bevindt zich een vide en een multifunctionele ruimte die momenteel wordt gebruikt als yogaruimte. Mede dankzij het fenomenale uitzicht en de rust is dit een ideale plek voor ontspanning, werken of creatieve invulling.

TUIN:
De fraai aangelegde, rondom gelegen tuin biedt een oase van rust en privacy en sluit perfect aan bij het groene en ruim opgezette karakter van de wijk De Hoeves.

De tuin is verzorgd aangelegd met een combinatie van sierbestrating, gazon en volwassen beplanting, waardoor je het hele jaar door kunt genieten van een sfeervolle buitenruimte. Er zijn voorbereidingen (qua leidingwerk) getroffen voor het realiseren van een zwembad en er is gedacht aan beregening van de tuin. Vanuit de tuinkamer zorgt een volledig te openen harmonica glazen pui voor een naadloze overgang tussen binnen en buiten, waarbij de tuinkamer één wordt met de tuin. In de tuin bevindt zich een praktische (vrijstaande) berging van 15 m² en aan twee zijden een eigen achterom. De tuin is volledig omheind.

Op eigen terrein is ruimte voor het parkeren van twee auto’s. Kortom, een groene buitenruimte met veel rust en privacy.

TOT SLOT:
Laathoeve 28 is een uitzonderlijke woning waarin architectuur, luxe en leefcomfort in perfecte balans zijn. Een woning die je moet ervaren.

Interesse?

Voor meer informatie of het plannen van een bezichtiging helpen we je graag verder.

Heb je liever direct contact met ons team?
Deel deze woning

Kenmerken

Overdacht
Vraagprijs € 1.275.000
Prijs per m² € 4.489
Koopconditie Kosten koper
Status Onder bod
Aanvaarding In overleg
Bouw
Object type Vrijstaande woning
Type Vrijstaande woning
Soort Villa
Bouwtype Bestaande bouw
Bouwjaar 2021
Soort dak Zadeldak
Oppervlakten en inhoud
Wonen 284 m²
Externe bergruimte 15 m²
Perceel 509 m²
Inhoud 1.053 m²
Indeling
Aantal kamers 7
Aantal slaapkamers 5
Aantal badkamers 2
Aantal woonlagen 3
Voorzieningen Dakraam, Glasvezel kabel
Energie
Energielabel A++
Isolatie Dakisolatie, Muurisolatie, Vloerisolatie, Dubbel glas, Volledig geisoleerd
Verwarming Vloerverwarming geheel, Aardwarmte, Gashaard
Warm water Elektrische boiler eigendom
Kadastrale gegevens
Helmond U 7717
Oppervlakte 509 m²
Eigendomssituatie Volle eigendom
Buitenruimte
Liggingen Aan rustige weg, In woonwijk
Tuin Achtertuin, Voortuin
Oppervlakte 154 m²
Breedte 14 meter
Diepte 11 meter
Ligging tuin West
Heeft achterom Ja
Berging
Soort Vrijstaand hout
Voorzieningen Voorzien van elektra
Parkeergelegenheid
Soort parkeergelegenheid Openbaar parkeren, Op eigen terrein
Locatie
Adres Laathoeve 28
Postcode 5708 SK
Plaats Helmond
Provincie Noord-Brabant
Land Nederland

Bekijk alle woningen in Helmond

Bekijk aanbod

Niet gevonden wat je zocht?

We helpen je graag met het zoeken naar de perfecte woning voor jou!

Gratis zoekopdracht

Gratis waardebepaling

Wil je graag jouw huis verkopen in Helmond, Eindhoven, de Peel of de Kempen en ben je benieuwd wat jouw huis waard is? Ontvang binnen 5 minuten de geschatte waarde van jouw woning.

Bereken het nu
Adriaan van den Heuvel - Agrarisch - Sfeerbeeld 3