Verkocht onder voorbehoud

Nierslaan 22 5704 NK Helmond

139 m²wonen 206 m² perceel 4 slaapkamers Bouwjaar 1989

Omschrijving

Wanneer u op zoek bent naar een grote twee-onder-een-kapwoning in gewilde woonomgeving in Brouwhuis, dan heeft u het hier wellicht gevonden. Deze uitgebouwde tweekapper biedt u onder andere een prachtige keuken en badkamer, carport, garage en maar liefst 3 slaapkamers en een grote zolder waar u met gemak een 4e slaapkamer kan creëren. Wat ons betreft praten we hier over een fantastische woning voor gezinnen. Kom snel kijken!

BIJZONDERHEDEN:
– Energielabel A, o.a. voorzien van 13 zonnepanelen en dubbele beglazing;
– Uitstekend onderhouden geheel;
– Eigen oprit met carport en garage;
– De woning is gelegen op rustige woonlocatie nabij klein bosje en het centrum van Brouwhuis met haar winkelcentrum en NS station. Zodoende staat u binnen 20 minuten in het centrum van Eindhoven.

BEGANE GROND
HAL & ENTREE:
U betreedt de woning via een zijentree in de hal. In de hal bevinden zich de trapopgang naar de 1e verdieping, de vernieuwde meterkast en het toilet met wandcloset en fonteintje. Vanuit de hal kunt u verder naar de woonkamer en de keuken.

WOONKAMER:
Doordat de woning is uitgebouwd is er meer dan voldoende ruimte voor het opstellen van een zit- en eetgedeelte. Zoals op de foto’s is te zien kunt u een grote hoekbank plaatsen en blijft er daarnaast nog voldoende ruimte over voor het plaatsen van een royale eettafel waaraan u met een groot gezelschap heerlijk kunt dineren.

Door de aanwezigheid van een schuifpui heeft u vanuit hier een prettig contact met de achtertuin. Middels de grote raampartijen en de lichtstraat in de aanbouw is zowel het zit- als eetgedeelte voorzien van veel natuurlijke lichtinval, waardoor het huis heel prettig aanvoelt. De vloer in de woonkamer is belegd met een fraaie parketvloer.

KEUKEN:
Gelegen aan de voorzijde treffen we de ruime keuken. De open keuken is door middel van de vele raampartijen voorzien van veel lichtinval, daarnaast kijkt u hierdoor fijn weg over de straat. De luxe keukeninrichting met kookeiland is uitgerust met veel kastruimte, een vaatwasser, een combi-oven, een inductiekookplaat, een afzuigkap en een koelkast.

BIJKEUKEN & GARAGE:
De bijkeuken is lekker ruim en heeft een tweede keukenblok met inbouwkoelkast. De inpandige garage is zowel vanuit de bijkeuken als de voorzijde van de woning te bereiken. De garage is voorzien van elektra en beschikt over een loopdeur. Aansluitend aan de garage een grote carport waaronder u uw auto kunt plaatsen.

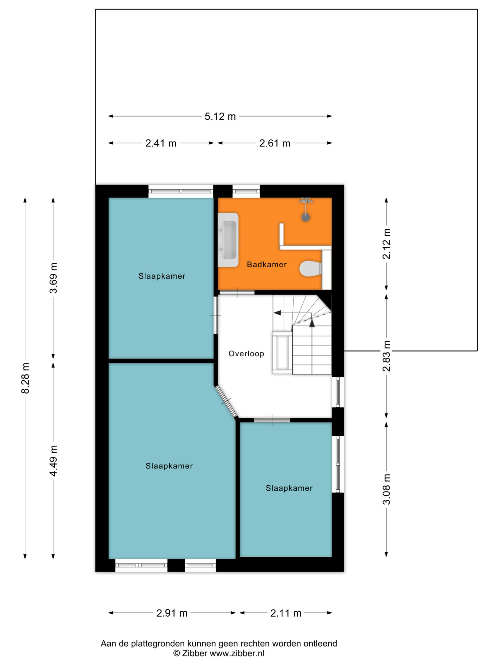
EERSTE VERDIEPING:
Vervolgens via de trap naar de 1e verdieping: Overloop waaraan gelegen 3 slaapkamers en de modern uitgevoerde badkamer. Voor afmetingen van de slaapkamers kunt u de bijgevoegde indelingsplattegronden raadplegen.

BADKAMER:
De gemoderniseerde badkamer is voorzien van een inloopdouche, een wandcloset, een dubbele wastafel met meubel, een luxe spiegelkast met verlichting, elektrische vloerverwarming en mechanische ventilatie. Hier komt u niks tekort.

TWEEDE VERDIEPING:
Vervolgens bereikt u via een vaste trap de tweede verdieping. Deze prachtige ruimte kan eventueel worden omgebouwd tot een vierde slaapkamer. Daarnaast is hier ook ruimte voor het plaatsen van een wasmachine en droger.

TUIN:
Terug naar de begane grond waar u vanuit de woonkamer en de bijkeuken toegang heeft tot de tuin. De tuin op het westen is lekker zonnig en heeft een betegeld terras en een kunstgras gazon. Vanwege de ligging op het westen heeft u heerlijk de middag- en avondzon. Het geheel is uitermate onderhoudsvriendelijk aangelegd.

Helaas, dit object is al verkocht

Bekijk hieronder ons actuele aanbod

Bekijk ons aanbod

Bekijk alle woningen in Helmond

Bekijk aanbod

Niet gevonden wat je zocht?

We helpen je graag met het zoeken naar de perfecte woning voor jou!

Gratis zoekopdracht

Gratis waardebepaling

Wil je graag jouw huis verkopen in Helmond, Eindhoven, de Peel of de Kempen en ben je benieuwd wat jouw huis waard is? Ontvang binnen 5 minuten de geschatte waarde van jouw woning.

Bereken het nu
Adriaan van den Heuvel - Agrarisch - Sfeerbeeld 3