Makreelstraat 7 5706 BE Helmond
160 m²wonen 320 m² perceel 4 slaapkamers Bouwjaar 1974€ 550.000 k.k.
Omschrijving
In het gewilde en kindvriendelijke Mierlo-Hout ligt aan een doodlopende, rustige straat deze grote twee-onder-een-kapwoning met fijne praktijkruimte aan huis, tuin op het zonnige Zuiden en een fraaie tuinoverkapping! Is uw interesse gewekt? Plan dan snel uw bezichtiging, wij heten u van harte welkom!
BIJZONDERHEDEN:
– Aan een rustige, verkeersluwe woonstraat in het gewilde Mierlo-Hout bevindt zich deze ruime twee-onder-een-kapwoning;
– Mogelijkheid tot het uitvoeren van uw beroep aan huis vanwege de praktijkruimte;
– Ruime oprit met mogelijkheid tot het parkeren van meerdere auto’s;
– Aanwezigheid van maar liefst 20 zonnepanelen en energielabel A wat de leencapaciteit kan verhogen, informeer bij uw hypotheekadviseur;
– Privacy biedende, zonnige achtertuin op het Zuiden gelegen met twee grote terrasoverkappingen;
– Gelegen te midden van het hoge wijkvoorzieningsniveau van Mierlo-Hout, basisscholen, supermarkten, naschoolse opvang en sportverenigingen binnen handbereik;
ALGEMEEN:
Een twee-onder-een-kapwoning met deze talloze mogelijkheden en gebruiksfuncties zien wij maar zelden, ook nog eens gelegen op een geweldige woonlocatie op steenworp afstand van alle gewenste voorzieningen welke Mierlo-Hout te bieden heeft. Zo bevinden zich diverse supermarkten, speciaalzaken en horecagelegenheden op loopafstand binnen de winkelkern van de wijk, hier bevindt zich tevens een N.S.-station welke direct richting Eindhoven rijdt.
In de directe omgeving van deze leuke en vooral grote woning bevinden zich diverse basisscholen, sportverenigingen en kinderopvanglocaties! Dat is nog niet alles, de woning beschikt over een hoogwaardig uitgevoerde en ingerichte praktijkruimte voor het uitvoeren van uw beroep aan huis.
AANKOMST & ENTREE:
Bij aankomst parkeert u uw auto op de eigen oprit waar plaats is voor meerdere auto’s. In de straat is het tevens mogelijk om vrij te parkeren, ideaal voor uw gasten en mede in relatie tot de aanwezige praktijkruimte van deze woning.
Via de verzorgde voortuin bereiken we de overdekte entree van deze woning, waaraan gelegen: de meterkast, toiletruimte voorzien van strak tegelwerk en een wandcloset, trapopgang en toegang tot de woonkamer.
WOONKAMER:
Vanuit de entree betreden we de zitruimte, gelegen aan de voorzijde van de woonkamer, met uitzicht over de rustige woonstraat waar zich voornamelijk bestemmingsverkeer bevindt. Deze zitruimte biedt diverse indelingsmogelijkheden vanwege de aanwezigheid van meerdere wanden om uw meubilair te plaatsen.
De woonkamer betreft een zogenaamde ‘’Z-kamer’’ en staat in open verbinding met de dinerruimte. Deze dinerruimte bevindt zich aan de achterzijde van de woning verzorgt via prachtige dubbele tuindeuren toegang tot het overdekt terras van de achtertuin. De deur in de dinerruimte verzorgt toegang tot de trapkast en de woonkamer staat in open verbinding met de keuken aan de rechterzijde van deze woning. De gehele begane grond is voorzien van een strakke pvc-vloer, uitstekend stucwerk en voorzien van een fraaie lijst rondom in het plafond!
KEUKEN:
In hoekopstelling doch in open verbinding bevindt zich de keuken, deze keuken is voorzien van een groot raamkozijn met uitzicht over de achtertuin en beschikt over veel berg- en werkruimte dankzij zijn ruime opstelling. Aan inbouwapparatuur treffen we:
– Koelkast;
– Vaatwasser;
– Combi-oven;
– Gaskookplaat;
– Quooker;
– Afzuiginstallatie (geïntegreerd in het plafond).
EERSTE VERDIEPING:
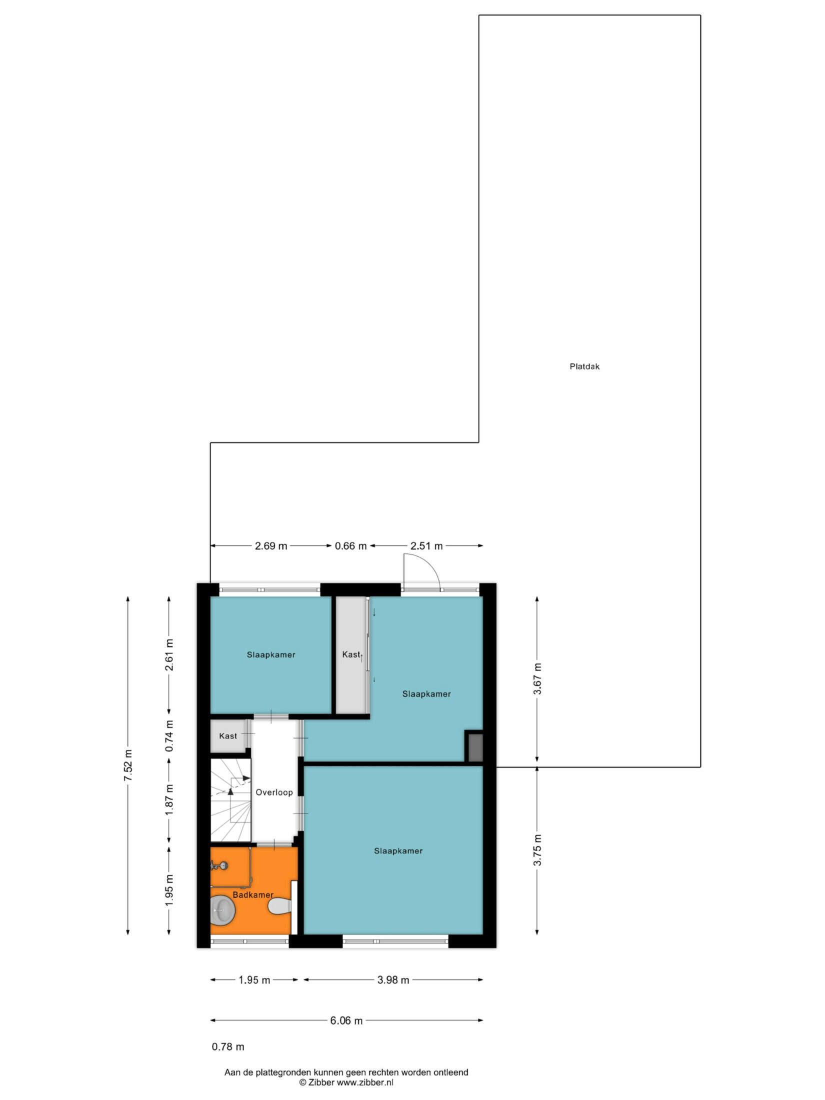
Via de trapopgang in de entree bereiken we de overloop van de eerste verdieping. Aan deze overloop voorzien van inbouwkast zijn gelegen de vaste trapopgang naar de tweede verdieping, de badkamer en de drie slaapkamers.
SLAAPKAMERS I, II & III:
Aan de voorzijde bevindt zich de eerste slaapkamer, voorzien van een airconditioningssysteem en een oppervlakte van maar liefst circa 15 m², betreft dit een perfecte slaapkamer! Aan de achterzijde bevinden zich de tweede en derde slaapkamer, voorzien van oppervlakten van respectievelijk 13 m² en 7 m²!
De tweede slaapkamer beschikt over een fijne inbouwkast! Om een goede indruk van de fijne afmetingen van deze slaapkamers te verkrijgen verwijzen wij graag naar de bijgevoegde indelingsplattegronden.
BADKAMER:
Aan de voorzijde van deze eerste verdieping bevindt zich de badkamer, geheel voorzien van strak tegelwerk en een raam ten behoeve van ventilatie en toetreding van natuurlijk daglicht. De badkamer is verder voorzien van een wandcloset, inloopdouche en een wastafelmeubel met planchet.
TWEEDE VERDIEPING:
Via de vaste trap op de eerste verdieping krijgen we toegang tot de overloop van de tweede verdieping. Op deze overloop bevinden zich de was- en technische ruimte, evenals de toegang tot de vierde slaapkamer.
SLAAPKAMER IV:
De vierde slaapkamer is over de gehele diepte van de woning uitgevoerd en voorzien van een groot dakraam ten behoeve van natuurlijk lichtinval en ventilatie. Deze slaapkamer is wederom perfect te gebruiken en in te delen vanwege zijn aanwezige oppervlakte. Daarbij beschikt deze verdieping ook over op maat gemaakte hoge MDF-kasten voor extra bergruimte.
TUIN:
De achtertuin betreft een uitzonderlijke kans en een ware toevoeging aan deze al zo fijne woning! Op het zuiden gelegen met een oppervlakte van circa 92 m² heeft u hier de perfecte gelegenheid om heerlijk in de zon, doch voorzien van volop privacy, te genieten van het buitenleven! De tuin is voorzien van een grote terrasoverkapping, grenzend aan de woning en doorgetrokken langs de woning waardoor er een overdekte achterom mogelijk is!
Deze overkapping is voorzien van lichtspots en fraai straatwerk. Vanuit deze overkapping krijgt u tevens toegang tot de terrasoverkapping achterin de tuin en de bergingsruimte welk aan de praktijkruimte grenst, deze bergingsruimte is voorzien van een kelder en beschikt over ruime bergingsmogelijkheden.
Interesse?
Voor meer informatie of het plannen van een bezichtiging helpen we je graag verder.
Heb je liever direct contact met ons team?
Deel deze woning
Kenmerken
Overdacht
| Vraagprijs | € 550.000 |
| Prijs per m² | € 3.438 |
| Koopconditie | Kosten koper |
| Status | Beschikbaar |
| Aanvaarding | In overleg |
Bouw
| Object type | Twee onder een kapwoning |
| Type | Twee onder een kapwoning |
| Soort | Eengezinswoning |
| Bouwtype | Bestaande bouw |
| Bouwjaar | 1974 |
| Soort dak | Samengesteld dak |
Oppervlakten en inhoud
| Wonen | 160 m² |
| Gebouwgebonden buitenruimte | 52 m² |
| Perceel | 320 m² |
| Inhoud | 641 m² |
Indeling
| Aantal kamers | 6 |
| Aantal slaapkamers | 4 |
| Aantal badkamers | 1 |
| Aantal woonlagen | 2 |
| Voorzieningen | Zonnepanelen |
Energie
| Energielabel | A |
| Isolatie | Dakisolatie, Muurisolatie, Dubbel glas |
| Verwarming | CV Ketel |
| Warm water | CV Ketel |
CV Ketel
| Brandstof | Gas |
| Bouwjaar | 2010 |
| Eigendom | Eigendom |
| Type | Vaillant Hr Solide VHRNL24-28/3C |
Kadastrale gegevens
| Helmond T 4146 | |
| Oppervlakte | 297 m² |
| Eigendomssituatie | Volle eigendom |
| Helmond T 7264 | |
| Oppervlakte | 23 m² |
| Eigendomssituatie | Volle eigendom |
Buitenruimte
| Liggingen | Aan rustige weg, In woonwijk |
| Tuin | Achtertuin, Voortuin |
| Oppervlakte | 92 m² |
| Breedte | 11 meter |
| Diepte | 12 meter |
| Ligging tuin | Zuid |
Berging
| Soort | Aangebouwd hout |
Parkeergelegenheid
| Soort parkeergelegenheid | Openbaar parkeren, Op eigen terrein |
Locatie
| Adres | Makreelstraat 7 |
| Postcode | 5706 BE |
| Plaats | Helmond |
| Provincie | Noord-Brabant |
| Land | Nederland |
Vergelijkbaar in de buurt
Bekijk alle woningen in Helmond
Bekijk aanbodNiet gevonden wat je zocht?
We helpen je graag met het zoeken naar de perfecte woning voor jou!
Gratis zoekopdracht